Трехкомнатная квартира Jesenice, Dugi Rat, Dugi Rat

€ 650 000
3
111 m²
2
3
Нет
Балкон
Терраса

Пометка

Объявление обновлено 23.04.2026
Описание

This description has been translated automatically and may not be accurate

ID: 137-150

Kaiser Immobilien proudly presents: Spacious two-bedroom apartment with panoramic views, first row to the sea, Krilo Jesenice
In the quiet coastal village of Krilo Jesenice, a premium residential project is located. Kaiser Immobilien proudly offers for sale this exclusive two-bedroom apartment that offers the perfect combination of modern luxury, comfort and spectacular views of the Adriatic Sea.
ABOUT THE APARTMENT:
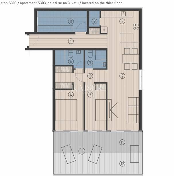
The apartment, marked S303, is located on the third floor of a modern six-story building, currently under excavation, with planned completion in late 2026 or early 2027. Each unit in the building is designed to make maximum use of natural light, privacy and stunning views.
The net selling area of the apartment with coefficients is 111.69 m².
LAYOUT OF THE ROOMS:
Living room and dining room: 24.97 m² – Spacious open space with access to the outdoor areas.
Kitchen: 10.41 m²
Bedroom 1: 15.55 m²
Bedroom 2: 8.93 m²
Bathroom 1: 4.06 m²
Bathroom 2: 3.45 m²
Wardrobe: 9.34 m²
Storage room: 1.52 m²
Corridor 1: 10.24 m²
Corridor 2: 2.56 m²
Loggia: 16.70 m² (net usable area 12.52 m²)
Balcony: 16.27 m² (net usable area 8.14 m²)
LOCATION AND ADDITIONAL BENEFITS:
Sea view: Each apartment offers an unobstructed, panoramic view of the sea.
New residential building: Planned completion of construction in 2026/2027. year.
Modern and luxurious design: The project offers top quality construction and contemporary design.
Energy certificate: The building will have an energy certificate.
Parking: Parking space available.
Peaceful location: Located in a peaceful environment, yet close to all essential amenities.
First row to the sea: Direct proximity to the beach and the sea.
This property is a perfect opportunity for those looking for a luxurious vacation home, permanent residence or smart investment in one of the most beautiful locations on the Dalmatian coast.
The agency commission for the buyer is 3% + VAT and is paid in the case of purchasing a property, upon conclusion of the first legal act. Viewing the property is possible only with the prior signing of a real estate brokerage contract.
If you would like to visit the property in person, please contact:
Joško Bašić
E-mail: josko@kaiser-immobilien.hr
Tel: +385-91-511-2993
http://kaiser-immobilien.hr/

ID CODE: 137-150

Joško Bašić
Agent posredovanja u prometu nekretnina
Mob: +385915112693, +385995677888
E-mail: josko@kaiser-immobilien.hr
www.kaiser-immobilien.hr
Если вы хотите узнать больше, вы можете поговорить с Joško Bašić.
Характеристики
Типология
Квартира
Договор
Продажа
Этаж
3 этаж
Этажность здания
6
Лифт
Нет
Площадь
111 m²
Помещения
3
Спальни
2
Ванные
2
Балкон
Да
Терраса
Да
Гараж, машиноместа
1 в частный гараж/парковка, 1 в общая парковка/гараж
Информация о ценах
Цена
€ 650 000
Цена за м²
5 856 €/m²
Энергоэффективность

Потребление энергии

A+

Планировка
Откройте для себя каждый уголок объекта недвижимости
+4
Доп. опции

Свяжитесь с рекламодателем

Или