Трехкомнатная квартира Permani, Matulji, Matulji

€ 210 000
3
75 m²
1
1
Нет
Балкон

Пометка

Объявление обновлено 24.03.2026
Описание

This description has been translated automatically and may not be accurate

ID: 3001-80

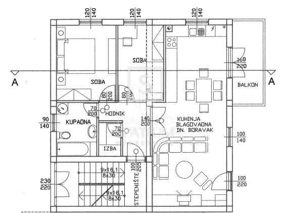
Two-Bedroom Apartment in a New Building – Permanima, 75 m², First Floor

For sale is a modern two-bedroom apartment with a living room in a high-quality new building in a quiet location in Permanima. The apartment is located on the first floor and covers 75 m². It consists of a spacious living room with access to the balcony, a kitchen with a dining area, two bedrooms, a bathroom, and a storage room.

The apartment comes with one parking space. It is sold on a turnkey basis, and at this stage, it is possible to participate in the selection of flooring and sanitary ware, allowing you to personalize the interior to your taste.

The expected move-in date is the end of 2025.

The location is ideal for those who want peace and privacy while still being well-connected to the city. The center of Rijeka is just a 15-minute drive away.

For more information and to arrange a viewing, feel free to contact us.

ID CODE: 3001-80
Характеристики
Типология
Квартира
Договор
Продажа
Этаж
1 этаж
Этажность здания
2
Лифт
Нет
Площадь
75 m²
Помещения
3
Спальни
2
Ванные
1
Балкон
Да
Терраса
Нет
Информация о ценах
Цена
€ 210 000
Цена за м²
2 800 €/m²
Энергоэффективность
  • Год постройки

    2025
  • Энергетическая сертификация

    Не классифицирована
Планировка
Откройте для себя каждый уголок объекта недвижимости
+2
Доп. опции

Свяжитесь с рекламодателем

Или