Трехкомнатная квартира Poreč, Luka, Пореч

€ 308 770
3
80 m²
1
Нет
Балкон
Терраса

Пометка

Объявление обновлено 14.04.2026
Описание

This description has been translated automatically and may not be accurate

ID: ID02277

Poreč (surroundings) - Modern 2-bedroom apartment in a great location with a sea view! New construction!

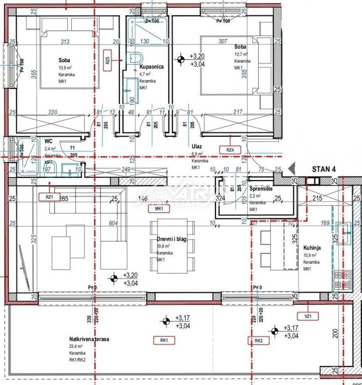
Welcome to this beautiful apartment with a total area of ​​80 m2, located in a great location, within walking distance of all necessary amenities, and 8 km from the sea and the city center. The apartment is located in a building with only 6 apartments, in a location that ideally combines a quiet environment, proximity to the coast and easy access to all amenities needed for everyday life.

The apartment is located on the first floor of the building, and consists of a large open space that combines the kitchen, dining room and living room with access to the outdoor covered terrace through large glass walls that allow plenty of natural light throughout the day. The apartment also has two bedrooms, one bathroom, one guest toilet, and two storage rooms.

In addition, the apartment comes with two outdoor parking spaces with preparation for an electric car charger, and there is also the possibility of purchasing an additional outdoor storage room. The apartment is being sold unfurnished with the bathroom fixtures included. Air conditioning units are provided in all rooms for cooling, and the entire apartment has electric underfloor heating for maximum comfort. Each apartment will be prepared for solar panels.

The apartments are currently under construction and are scheduled for completion by July 2026. When purchasing this apartment, the new owner is exempt from paying real estate tax because the investor is a legal entity.

This apartment provides the ideal home for all those who strive for a relaxing lifestyle in beautiful surroundings. Whether you are looking for a peaceful retreat to get away from the hustle and bustle of everyday life or are looking to invest, this property will surely meet and exceed all your expectations.

ID CODE: ID02277

Daniel Matković
Agent s licencom
Mob: +385 95 506 58 05
Tel: +385 52 417 779
E-mail: daniel@matrixrealestate.hr
https://matrixrealestate.hr/

Matrix Real Estate
Voditelj ureda
Mob: +385 52 417 779
Tel: +385 52 417 779
E-mail: info@matrixrealestate.hr
https://matrixrealestate.hr/
Характеристики
Типология
Квартира
Договор
Продажа
Этаж
1 этаж
Этажность здания
2
Лифт
Нет
Площадь
80 m²
Помещения
3
Спальни
2
Балкон
Да
Терраса
Да
Гараж, машиноместа
2 в общая парковка/гараж
Кондиционер
Автономное, холод/тепло
Информация о ценах
Цена
€ 308 770
Цена за м²
3 860 €/m²
Энергоэффективность
  • Год постройки

    2026
  • Кондиционер

    Автономное, холод/тепло
  • Энергетическая сертификация

    Не классифицирована
Планировка
Доп. опции

Свяжитесь с рекламодателем

Или