Трехкомнатная квартира 85 m², Nova Ves - Gupčeva zvijezda, Загреб

€ 424 000
3
85 m²
2
Нет

Пометка

Объявление обновлено 02.03.2026
Описание

ID: I34082

PRODAJA, STAN, ZAGREB, CENTAR, Ribnjak.
U ponudi je stan od 85m2, u visokom prizemlju dobro održavane zgrade sa samo četiri stana.

Stan je trenutno u turističkom najmu i funkcionira kao dvije zasebne cjeline.
Po želji novog vlasnika može se jednostavnim preinakama vratiti opet u jednu cjelinu.

Kompletno je adaptiran 2018. godine - sve instalacije- elektro, plin, novi radijatori i bojleri, keramika i stolarija, Kvalitetna PVC stolarija.
Postavljena su i protuprovalna vrata s digitalnom bravom.

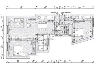
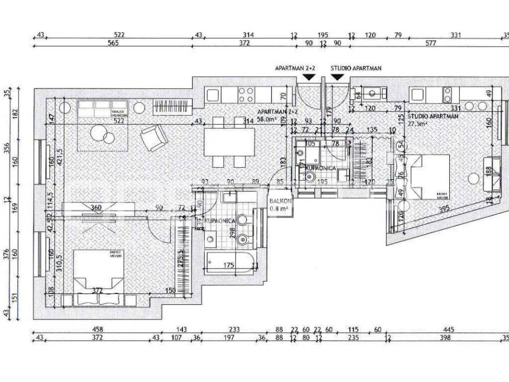
STAN 1: studio apartman, cca 30m2
Sastoji se od ulaznog prostora, kupaonice i openspace prostorom za spavaći i dnevni dio s kuhinjom.
STAN br. 2: dvosoban stan, cca 55 m2
Sastoji se od ulaznog prostora, dnevnog boravka s kuhinjom i prostorom za blagovanje, spavaće sobe i kupaonice

Orijentacija na zapad s pogledom na park Ribnjak i istok i dvorišnu zelenu stranu.

Prozračan, svijetao, u blizini svih sadržaja, tramvaja, javnih garaža, šoping centara, te do Trga bana Jelačića samo par minuta šetnje.
Dokumentacija uredna.
Prodaje se namješten kako je prikazano.

Prilika za život ili kao investicija.




Характеристики
Типология
Квартира
Договор
Продажа
Лифт
Нет
Площадь
85 m²
Помещения
3
Спальни
2
Ванные
2
Меблировано
Нет
Отопление
Централизованное, на газу
Кондиционер
Холод/тепло
Информация о ценах
Цена
€ 424 000
Цена за м²
4 988 €/m²
Энергоэффективность
  • Год постройки

    1938
  • Отопление

    Централизованное, на газу
  • Кондиционер

    Холод/тепло
  • Энергетическая сертификация

    Не подлежащий
Откройте для себя каждый уголок объекта недвижимости
+16
Доп. опции

Свяжитесь с рекламодателем

Или