Двухкомнатная квартира новое, первый этаж, Centar - Gulići, Пореч

€ 320 000
2
88 m²
2
1

Пометка

Объявление обновлено 24.03.2026
Описание

This description has been translated automatically and may not be accurate

ID: 2151

Istria, Poreč Modern two-bedroom apartment with a spacious terrace

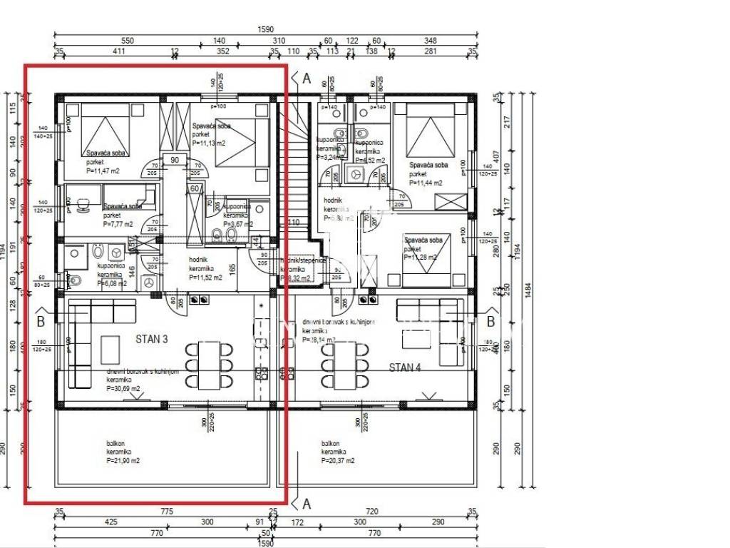
An apartment is for sale, located on the first floor of a smaller residential building with a total of four apartments, only 2 km from the centre of Poreč and the sea.

The apartment has a total area of 82.33 m and consists of an entrance hall, two bathrooms, two bedrooms, and a spacious living room with kitchen and dining area, with access to a spacious terrace.
Terrace area: (actual size 21.90 m: 18% covered, 82% uncovered) 6.45 m calculated using coefficients of 0.25 and 0.50.
Total apartment area including coefficients: 88.78 m.

High-quality materials and equipment are used in construction:

Daikin air-conditioning units are planned in every room,

bathrooms will be equipped with higher-standard sanitary ware,

LVT click-system vinyl flooring is planned in the bedrooms, with the possibility of choosing another type of flooring upon agreement or with an additional charge agreed with the investor.

The apartment is sold on a turnkey basis, without furniture and lighting fixtures.
The apartment includes a parking space in front of the building.

Thanks to its quiet location and immediate proximity to all amenities necessary for everyday living, this apartment represents an ideal solution for family living as well as a safe investment for the future.

The completion of construction is planned by 1 October 2026.

Viewing the property is possible with a signed mediation agreement, which is the basis for further action in connection with the sale and commission in accordance with the Act on mediation in real estate transactions. In the case of sales, the agency commission amounts to 3% + VAT and is charged when concluding the pre-contract/sales contract.
Если вы хотите узнать больше, вы можете поговорить с Ivica Barić.
Характеристики
Типология
Квартира
Договор
Продажа
Этаж
1 этаж
Площадь
88 m²
Помещения
2
Спальни
2
Ванные
2
Меблировано
Нет
Гараж, машиноместа
1 в общая парковка/гараж
Отопление
Автономное, блок питания
Кондиционер
Холод/тепло
Информация о ценах
Цена
€ 320 000
Цена за м²
3 636 €/m²
Энергоэффективность
  • Год постройки

    2026
  • Состояние

    Новое / На стадии строительства
  • Отопление

    Автономное, блок питания
  • Кондиционер

    Холод/тепло
Откройте для себя каждый уголок объекта недвижимости
+5
Доп. опции

Свяжитесь с рекламодателем

Или