Участок под застройку Продажа

€ 230 000
511 m²

Пометка

Объявление обновлено 28.04.2026
Описание

ID: 10606

Na prodaju je građevinsko zemljište u Medulinu, smješteno u mirnom dijelu novoizgrađenog naselja s modernim vilama. Zemljište je pravilnog oblika i ima pristup s asfaltnog puta, što ga čini iznimno pristupačnim.

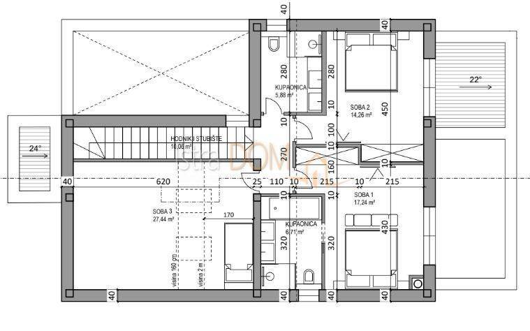
Uz zemljište dolazi i projekt s pravomoćnom građevinskom dozvolom, a komunalni doprinos je već plaćen. Predviđeni projekt uključuje izgradnju katnice s bazenom, ukupne površine od 200 m². Kuća će se sastojati od tri spavaće sobe, dvije kupaonice, prostranog dnevnog boravka s kuhinjom i blagovaonicom, dodatnog WC-a, ostave, terase, kao i vanjskog tuša, kuhinje i sunčališta.

Ova nekretnina predstavlja idealnu priliku za izgradnju obiteljske kuće ili kuće za iznajmljivanje, s obzirom na blizinu prelijepih plaža, koje su udaljene samo 1,5 km, kao i raznih drugih sadržaja. Ako ste u potrazi za savršenim mjestom za gradnju, ovo zemljište nudi brojne mogućnosti za investiciju. Ne propustite ovu jedinstvenu priliku!

Saša Nanovski
Licencirani agent
Kontakt: +385/99-444-5435
email: istradom.sasan@gmail.com

ID CODE: 10606

Saša Nanovski
Agent s licencom
Mob: 099 444 5435
Tel: 0994445435
E-mail: istradom.sasan@gmail.com
www.istra-dom.com
Характеристики
Договор
Продажа
Типология
Участок под застройку
Площадь
511 m²
Информация о ценах
Цена
€ 230 000
Цена за м²
450 €/m²
Откройте для себя каждый уголок объекта недвижимости
+6
Доп. опции

Свяжитесь с рекламодателем

Или