Участок под застройку Продажа

€ 88 000
512 m²

Пометка

Объявление обновлено 28.04.2026
Описание

ID: 10799

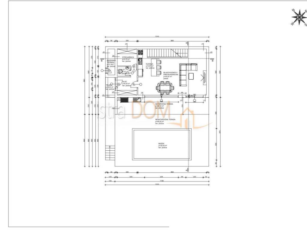
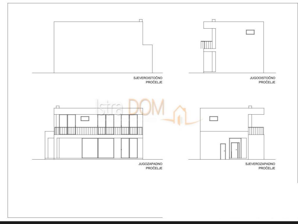
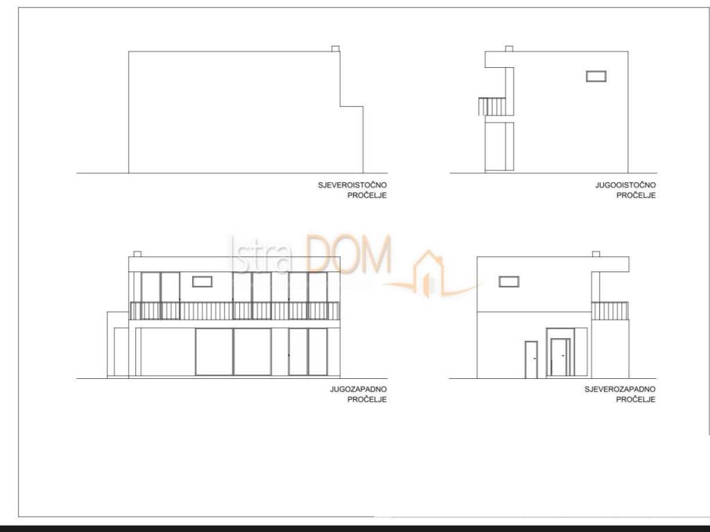
Na prodaju je građevinsko zemljište (512 m²) s gotovim idejnim projektom i modernim vizualizacijama interijera i eksterijera.
Smješteno u blizini samog centra Kanfanara, pruža savršenu kombinaciju dostupnosti i privatnosti.
Izvrsna prilika za izgradnju kuće za odmor ili investiciju u turističku namjenu.

Saša Nanovski
Licencirani agent
Kontakt: +385/99-444-5435
email: istradom.sasan@gmail.com

ID CODE: 10799

Saša Nanovski
Agent s licencom
Mob: 099 444 5435
Tel: 0994445435
E-mail: istradom.sasan@gmail.com
www.istra-dom.com
Характеристики
Договор
Продажа
Типология
Участок под застройку
Площадь
512 m²
Информация о ценах
Цена
€ 88 000
Цена за м²
172 €/m²
Откройте для себя каждый уголок объекта недвижимости
+10
Доп. опции

Свяжитесь с рекламодателем

Или