Двухкомнатная квартира Vodice, Vodice

€ 169 000
2
50 m²
1
2
Нет
Терраса

Пометка

Объявление обновлено 03.03.2026
Описание

This description has been translated automatically and may not be accurate

ID: A-702-S4

✨NEW PROJECT✨

VODICE - Modern apartment on the 2nd floor with a bedroom and a nice terrace!

The property is located in a quiet part of the town of Vodice and is 900 m from the city beach and 1100 m from the center.

A new modern project of a small residential building with 6 residential units is located in a quiet location. It will consist of three floors: ground floor + 1st floor + 2nd floor. The ground floor will be a business space, and each floor will have three apartments. The construction will use quality materials according to the latest building standards: thermal facade for high energy efficiency, modern-looking glass balcony railings, ALU sliding balcony doors, Sika and Mapei insulation systems, burglar-proof and fire-resistant entrance doors, large-format ceramics, separate electricity and water meters, video intercom, TV connections in every room and living room, preparation for a solid fuel stove, WiFi inverter air conditioners - GREE or Midea, air conditioners in all bedrooms and living room, underfloor heating in bathrooms, electric water heater, top-quality sanitary ware: Grohe / Hansgrohe / Voxort, electric shutters, mosquito nets on the windows. Each apartment has a paved parking space, but there is the option to purchase an additional parking space. Buyers have the option to choose the ceramics and color of the sanitary ware according to their own wishes, depending on the construction phase. Planned completion of construction and move-in: July 1, 2027.

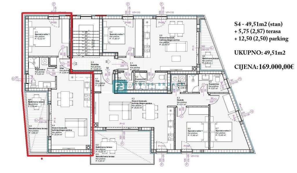
Apartment S4 with a total usable area of ​​50.27 m2 (living area 44.14 m2 + terrace 9.41 m2 + parking 12.50 m2) is located on the 2nd floor. The functionally arranged apartment consists of an entrance, bathroom, bedroom, kitchen with dining room, living room with access to a terrace of 9.41 m2. The apartment has one parking space.

The price is €169,000.
Reservations are accepted, and payment is made in stages of construction.

OTHER AVAILABLE IN THE BUILDING

GROUND FLOOR

Business space - SOLD

1ST FLOOR

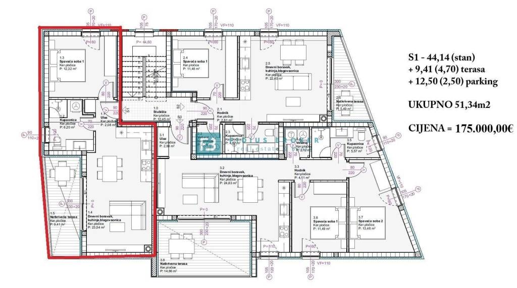
Apartment S1 with a total usable area of ​​51.34 m2 (living area 44.14 m2 + terrace 9.41 m2 + parking 12.50 m2) is located on the 1st floor. The functionally designed apartment consists of an entrance hall, bathroom, bedroom, kitchen with dining room, living room with access to a 9.41 m2 terrace. The apartment has one parking space. The price is €175,000.

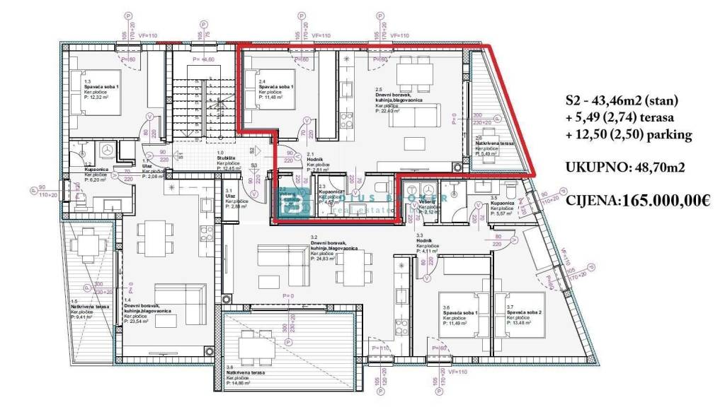
Apartment S2 with a total usable area of ​​48.70 m2 (living area 43.46 m2 + terrace 5.49 m2 + parking 12.50 m2) is located on the 1st floor. The functionally designed apartment consists of a hallway, bathroom, bedroom, laundry room, kitchen with dining room, living room with access to a 5.49 m2 terrace. The apartment has one parking space. The price is €165,000.

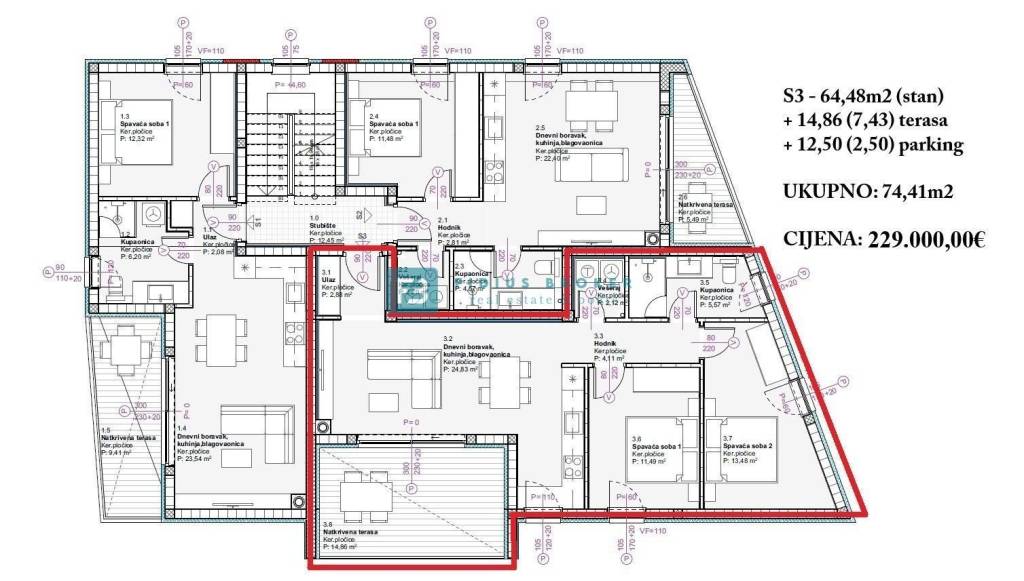
Apartment S3 with a total usable area of ​​74.41 m2 (living area 64.48 m2 + terrace 14.86 m2 + parking 12.50 m2) is located on the 1st floor. The functionally designed apartment consists of an entrance hall, bathroom, two bedrooms, laundry room, kitchen with dining room, living room with access to a spacious covered terrace of 14.86 m2. The apartment has one parking space. The price is €229,000.

2ND FLOOR

Apartment S5 with a total usable area of ​​48.67 m2 (living area 43.43 m2 + terrace 5.49 m2 + parking 12.50 m2) is located on the 2nd floor. The functionally designed apartment consists of a hallway, bathroom, bedroom, laundry room, kitchen with dining room, living room with access to a terrace of 5.49 m2. The apartment has one parking space. The price is €165,000.

Apartment S6 with a total usable area of ​​73.36 m2 (living area 64.45 m2 + terrace 14.86 m2 + parking 12.50 m2) is located on the 2nd floor. The functionally arranged apartment consists of an entrance, bathroom, two bedrooms, laundry room, kitchen with dining room, living room with access to a spacious covered and uncovered terrace of 14.86 m2. The apartment has one parking space. The price is €219,000.

For more information, please contact us via e-mail or phone.

ID CODE: A-702-S4

Fidius Broker
Voditelj ureda
Mob: ++385 91 3375522
Tel: ++385 91 5135719
E-mail: info@fidiusbroker.hr
www.fidiusbroker.hr
Характеристики
Типология
Квартира
Договор
Продажа
Этаж
2 этаж
Этажность здания
2
Лифт
Нет
Площадь
50 m²
Помещения
2
Спальни
1
Ванные
1
Балкон
Нет
Терраса
Да
Гараж, машиноместа
1 в общая парковка/гараж
Отопление
Автономное, воздушное
Кондиционер
Автономное, холод/тепло
Информация о ценах
Цена
€ 169 000
Цена за м²
3 380 €/m²
Энергоэффективность
  • Отопление

    Автономное, воздушное
  • Кондиционер

    Автономное, холод/тепло
  • Энергетическая сертификация

    Не классифицирована
Планировка
Откройте для себя каждый уголок объекта недвижимости
+7
Доп. опции

Свяжитесь с рекламодателем

Или