Магазин - Коммерческое помещение Продажа

€ 590 000
4
407 m²
2

Пометка

Объявление обновлено 01.05.2026
Описание

ID: 952-1


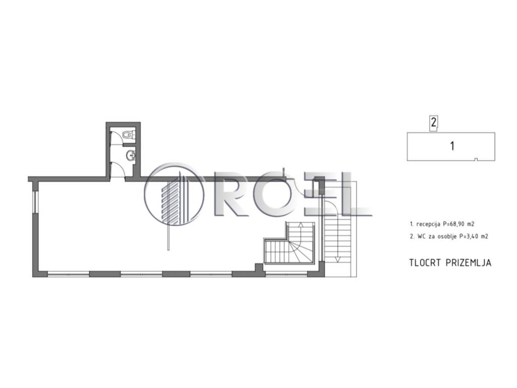
Prodaje se atraktivan poslovni prostor na Stenjevcu, ukupne neto korisne površine 405 m, raspoređene na dvije etaže prizemlje i suteren. Prostor je prostran i funkcionalan, s odličnim rasporedom i velikim potencijalom za razne djelatnosti te mu pripada četiri vanjska parkirna mjesta. Svježe je renoviran u 2025. godini te je opremljen novim sustavom grijanja i hlađenja putem dizalice topline, što osigurava energetsku učinkovitost i ugodan boravak tijekom cijele godine.
U prizemlju se nalazi prostor površine 72,03 m koji se sastoji od radnog dijela, sanitarnog čvora i reprezentativnog ulaznog prostora koji je povezan s donjom etažom. Donja etaža obuhvaća 333,07 m i sastoji se od velike open space prostorije te dodatnih prostorija sa sanitarnim čvorovima, trenutno uređenih kao svlačionice, što omogućuje razne mogućnosti budućem korisniku.
Zahvaljujući poziciji i rasporedu osim za teretanu idealan je i za druge poslovne djelatnosti poput fitnessa, wellnessa, uredskog prostora, showrooma, skladišta, trgovine ili slično. Prostor se prodaje prazan, što omogućuje novom vlasniku da ga uredi i organizira prema vlastitim potrebama.
Lokacija nudi izvrsnu prometnu povezanost s centrom grada i obilaznicom, a u neposrednoj blizini nalazi se niz poslovnih i komercijalnih sadržaja. Pozicija je vrlo prepoznatljiva i lako dostupna, što dodatno povećava atraktivnost same nekretnine.
Za sve dodatne informacije i dogovor oko razgledavanja slobodno nas kontaktirajte.
Если вы хотите узнать больше, вы можете поговорить с Maja Nikolić.
Характеристики
Договор
Продажа
Площадь
407 m²
Помещения
4 помещения, 2 ванные
Информация о ценах
Цена
€ 590 000
Цена за м²
1 450 €/m²
Энергоэффективность
  • Год постройки

    2008
  • Состояние

    Отличное / Отремонтированное
  • Отопление

    Централизованное, на газу
  • Энергетическая сертификация

    Не классифицирована
Откройте для себя каждый уголок объекта недвижимости
+19
Доп. опции

Свяжитесь с рекламодателем

Или