Отдельный дом на одну семью 196 m², новая, Malinska-Dubašnica

€ 895 000
5
196 m²
3+

Пометка

Объявление обновлено 12.04.2026
Описание

This description has been translated automatically and may not be accurate

ID: EI-5448

Island of Krk, Malinska - Mediterranean villa with pool!

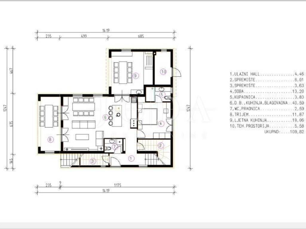
The villa has an area of 196.58 m2 and consists of a ground and an upper floor. On the ground floor is an entrance area, a toilet with a laundry room, two storage rooms, a bedroom with a bathroom, a kitchen with a dining room and a living room with access to a covered terrace. A part of the ground floor is also an outdoor kitchen and a technical room. On the first floor, connected by an internal and external staircase, are three bedrooms and three bathrooms. Two rooms have access to a covered terrace with sea view.
A pool and a landscaped parking space will in the Garden area.
Quality construction and equipment, top-quality ceramics, sanitary facilities and underfloor heating with a heat pump.
Nice location in a quiet island settlement, not far from all amenities, only 2 km from the center and the sea.
Completion is scheduled at the end of 2024.

ID CODE: EI-5448
Характеристики
Типология
Отдельный дом на одну семью
Договор
Продажа
Этаж
1
Площадь
196 m² | коммерческая 828 m²
Помещения
5
Спальни
4
Ванные
3+
Балкон
Нет
Терраса
Нет
Кондиционер
Автономное, холод/тепло
Другие характеристики
  • Бассейн
Деталь поверхности

Жилой фонд

Этаж
1
Площадь
196,0 m²
Коэффициент
100%
Тип площади
Основная
Коммерческая площадь
196,0 m²

Участок

Этаж
Нулевой этаж
Площадь
632,0 m²
Коэффициент
100%
Тип площади
Дополнительная
Коммерческая площадь
632,0 m²
Информация о ценах
Цена
€ 895 000
Цена за м²
1 081 €/m²
Энергоэффективность
  • Год постройки

    2024
  • Состояние

    Новое / На стадии строительства
  • Кондиционер

    Автономное, холод/тепло
  • Энергетическая сертификация

    Не подлежащий
Откройте для себя каждый уголок объекта недвижимости
+15
Доп. опции

Свяжитесь с рекламодателем

Или