Отдельный дом на одну семью 159 m², новая, Malinska-Dubašnica

€ 620 000
5
159 m²
3+

Пометка

Объявление обновлено 12.04.2026
Описание

This description has been translated automatically and may not be accurate

ID: EI-5457

New construction in Malinska - semi-detached house with pool and garden
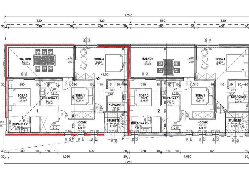
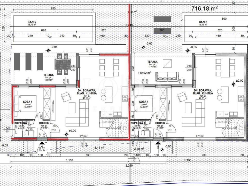
The house has an area of 159 m2 and extends over the ground and the first floor. On the ground floor is the entrance hall, a bedroom with bathroom and a large open space room that combines the living area with kitchen and dining room and a covered terrace of 18.60 m2. On the first floor is a hallway, three bedrooms, each with its own bathroom and a balcony. The house is sold turnkey and has a landscaped garden with a swimming pool and two parking spaces. High quality construction with underfloor heating using a heat pump system, PVC windows with blinds, air conditioning in all rooms, VAT included in the price.
Move-in is planned by the end of 2024.

ID CODE: EI-5457
Характеристики
Типология
Отдельный дом на одну семью
Договор
Продажа
Этаж
1
Площадь
159 m² | коммерческая 359 m²
Помещения
5
Спальни
4
Ванные
3+
Балкон
Нет
Терраса
Нет
Кондиционер
Автономное, холод/тепло
Другие характеристики
  • Бассейн
Деталь поверхности

Жилой фонд

Этаж
1
Площадь
159,0 m²
Коэффициент
100%
Тип площади
Основная
Коммерческая площадь
159,0 m²

Участок

Этаж
Нулевой этаж
Площадь
200,0 m²
Коэффициент
100%
Тип площади
Дополнительная
Коммерческая площадь
200,0 m²
Информация о ценах
Цена
€ 620 000
Цена за м²
1 727 €/m²
Энергоэффективность
  • Год постройки

    2024
  • Состояние

    Новое / На стадии строительства
  • Кондиционер

    Автономное, холод/тепло
  • Энергетическая сертификация

    Не подлежащий
Откройте для себя каждый уголок объекта недвижимости
+8
Доп. опции

Свяжитесь с рекламодателем

Или