Трехкомнатная квартира новое, нулевой этаж, Privlaka

€ 360 000
3
100 m²
2
1

Пометка

Объявление обновлено 18.04.2026
Описание

This description has been translated automatically and may not be accurate

ID: 32286

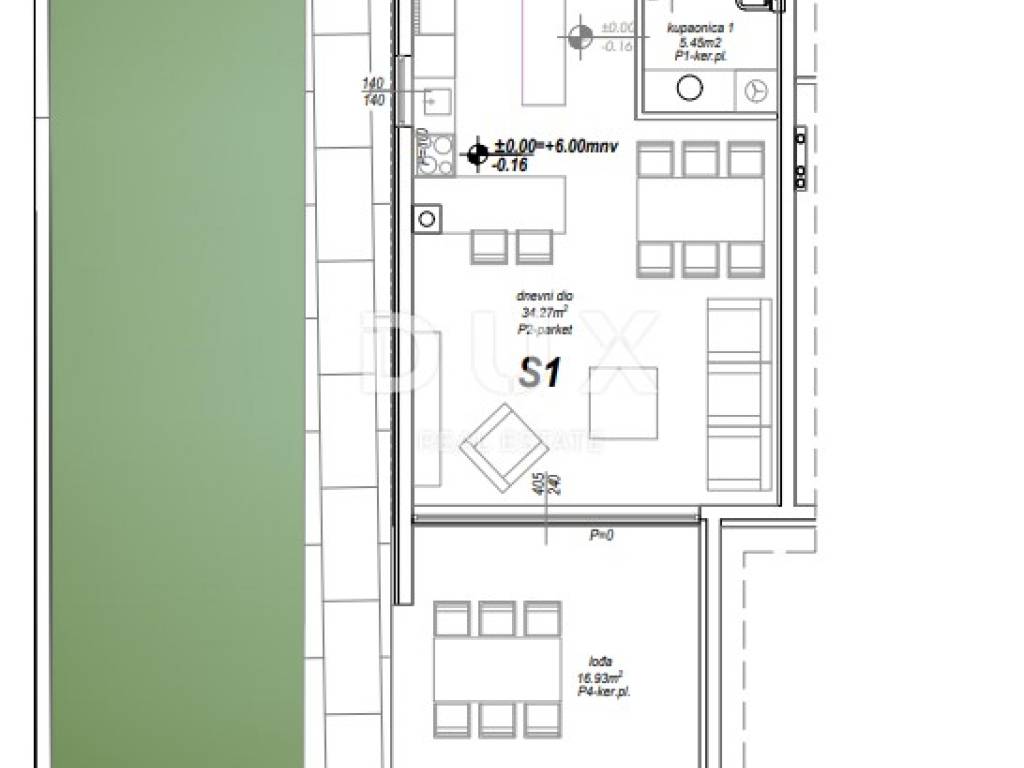
ZADAR, PRIVLAKA - Exclusive Opportunity for a Luxurious Life Next to the Beach in a Modern New Construction! S1

Welcome to your future dream home! We present to you apartment S1, which embodies a combination of top quality, modern architecture and the natural beauty of the Adriatic coast. Located in an extremely attractive location, just 120 meters from the sparkling beach, this apartment offers everything you need for a luxurious lifestyle full of comfort and elegance. This property, located on the ground floor of an exclusive new building, extends to a spacious 100.09 m2 of net living space. Upon entering the apartment, you will be greeted by a spacious and bright living room, the perfect place to relax and spend time with family and friends. The living room is enriched with a beautiful view of its own yard of 132.97 m2, where you can enjoy the fresh air and privacy. The apartment offers two spacious bedrooms, designed with special emphasis on comfort and privacy. Each room exudes warmth and elegance, providing the perfect haven for rest. The two luxurious bathrooms are equipped with modern sanitary ware and designed to provide maximum functionality and style. An additional advantage of this apartment is a practical wardrobe, which will satisfy all your needs for storing clothes and shoes. Enjoy the comfort and elegance of every room thanks to a modern air conditioning unit that provides an optimal temperature in every corner of your new home. The entire apartment is equipped with underfloor heating, providing you with a sense of comfort throughout the year. Electric blinds and mosquito nets on PVC carpentry ensure ease of use and protection from unwanted external influences. The architecture of the building stands out for its uniqueness and elegance, making it a real architectural gem in this area. The combination of contemporary design and top quality construction gives you a sense of security and longevity, as well as the pride of ownership of this type of property. This exclusive property comes with one parking space, which is extremely important in today's dynamic world. Do not miss the opportunity to become the owner of this apartment in an oasis of luxury and comfort. Construction is scheduled for completion in the spring of 2026, giving you plenty of time to plan your perfect move. Contact us today and secure yourself a life of luxury, where all details are carefully designed to provide you with maximum comfort and satisfaction. This is your moment, your dream place - your new address by the sea!

Dear clients, the agency commission is charged in accordance with the General Business Conditions www.dux-nekretnine.hr/opci-uvjeti-poslovanja

ID CODE: 32286

Josip Šestan
Agent s licencom
Mob: +385 91 799 6986
Tel: +385 91 480 8808
E-mail: josip@dux-dalmacija.com
www.dux-dalmacija.com
Если вы хотите узнать больше, вы можете поговорить с Josip Šestan.
Характеристики
Типология
Квартира
Договор
Продажа
Этаж
1
Площадь
100 m² | коммерческая 250 m²
Помещения
3
Спальни
2
Ванные
2
Балкон
Нет
Терраса
Нет
Кондиционер
Автономное, холод/тепло
Деталь поверхности

Жилой фонд

Этаж
1
Площадь
100,0 m²
Коэффициент
100%
Тип площади
Основная
Коммерческая площадь
100,0 m²

Участок

Этаж
Нулевой этаж
Площадь
150,0 m²
Коэффициент
100%
Тип площади
Дополнительная
Коммерческая площадь
150,0 m²
Информация о ценах
Цена
€ 360 000
Цена за м²
1 440 €/m²
Энергоэффективность
  • Год постройки

    2024
  • Состояние

    Новое / На стадии строительства
  • Кондиционер

    Автономное, холод/тепло
  • Энергетическая сертификация

    Не подлежащий
Откройте для себя каждый уголок объекта недвижимости
+15
Доп. опции

Свяжитесь с рекламодателем

Или