Участок под застройку Продажа

€ 85 000
2 065 m²

Пометка

Объявление обновлено 31.12.2025
Описание

ID: IS1517980

Na rubu malog, mirnog mjesta Orihi, okruženog zelenilom i tišinom, prodaje se građevinsko zemljište od 2065 m, spremno za gradnju s pravomoćnom građevinskom dozvolom iz srpnja 2025 i svom potrebnom infrastrukturom.

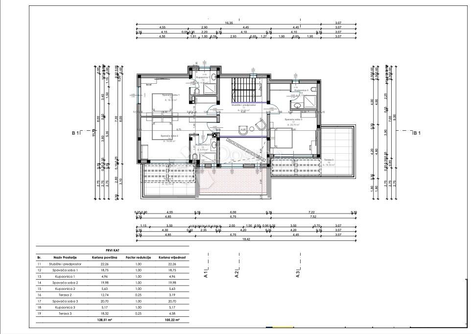
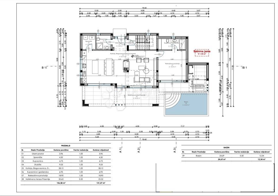
Građevinska dozvola je izdana za objekt od 400 m bruto, sa 6 spavaćih soba i 6 kupaonica koje se protežu na 3 etaže, visine do 7,5 m, s prostorom za 3 parkirna mjesta i bazenom dimenzija 3,27 x 6,32 m (neto 20,66 m).

Voda je spojena i struja je dovedena na parcelu, a kolno-pješački pristup je osiguran.
Kanalizacije nema, ali predviđeno je rješenje putem sabirne jame.

Parcela ima blagi južni nagib, savršena za sunčane dane, pogled i osjećaj prostora. Lokacija je tiha, u prirodnom okruženju, daleko od gradske gužve, ali dovoljno blizu svega potrebnog.

Vlasništvo uredno.

Sve je spremno za gradnju bez dodatnih čekanja ili komplikacija.

Za više informacija i dogovor oko razgledavanja s veseljem očekujem vaš poziv na +385 98 353968, Zdenka Gold, licencirana agentica

ID KOD AGENCIJE: IS1517980

Branka Rušnov
Agent s licencom
Mob: 097/6992-696
Tel: 052 770 811
E-mail: branka.rusnov@dogma-nekretnine.com
www.dogma-istra.com

Zdenka Gold
Agent s licencom
Mob: 098/353-968
Tel: 052 770 811
E-mail: zdenka.gold@dogma-nekretnine.com
www.dogma-istra.com
Если вы хотите узнать больше, вы можете поговорить с Branka Rušnov.
Характеристики
Договор
Продажа
Типология
Участок под застройку
Площадь
2 065 m²
Информация о ценах
Цена
€ 85 000
Цена за м²
41 €/m²
Откройте для себя каждый уголок объекта недвижимости
+4
Доп. опции

Свяжитесь с рекламодателем

Или