Участок под застройку Продажа

€ 71 000
712 m²

Пометка

Объявление обновлено 04.05.2026
Описание

ID: IS1517949

Na prodaju je građevinsko zemljište površine 712 m, smješteno u mirnom naselju 5 km od Barbana i 12 km od mora. Lokacija je idilična okružena zelenilom, u selu s nekoliko lijepo uređenih kuća za odmor, što ovom zemljištu daje poseban šarm i idealne uvjete za život ili turističko ulaganje.

Zemljište se nalazi unutar građevinske stambene zone, uz asfaltiranu cestu, s uređenim pristupnim putem. Sva infrastruktura je lako dostupna voda i struja nalaze se na svega 20 metara, kod prve susjedne kuće, dok se svi ostali sadržaji nalaze u Barbanu, udaljenom samo 8 minuta vožnje. Prve plaže dostupne su za manje od 20 minuta vožnje automobilom.

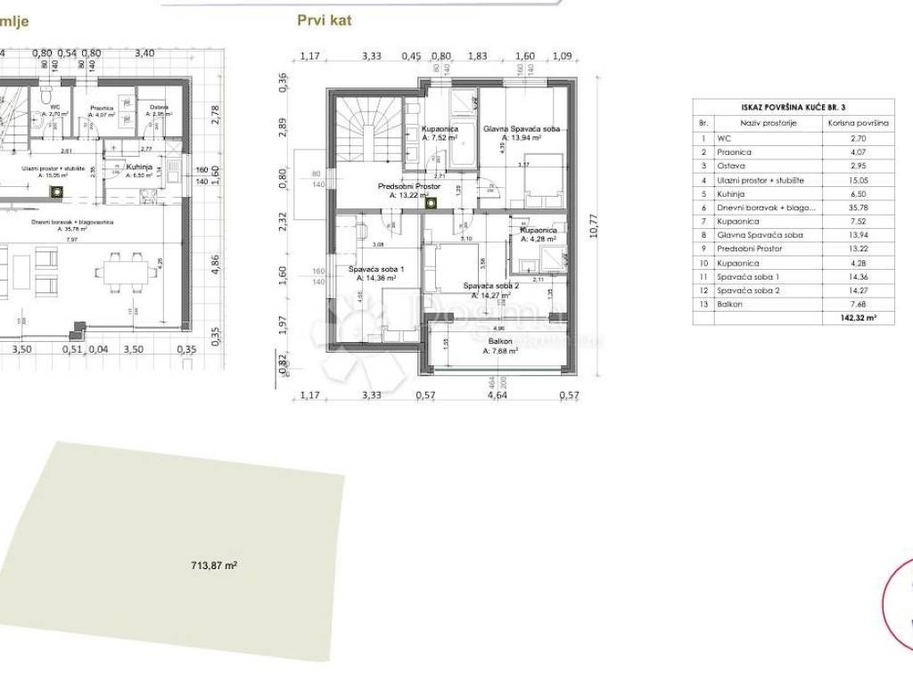
Posebna prednost ove parcele je već izrađen idejni projekt za modernu katnicu s mediteranskim elementima vila s bazenom, tri spavaće sobe i tri kupaonice te prekrasnim pogledom na more. Projekt je pažljivo osmišljen za maksimalnu udobnost i funkcionalnost. Budući kupac može preuzeti postojeći projekt ili, prema želji, izraditi novi, prilagođen vlastitim potrebama.

Parcela posjeduje svu potrebnu dokumentaciju, uključujući lokacijsku informaciju. Vlasništvo je uredno i bez tereta.

Moguća je gradnja prizemlja i dva kata s maksimalno tri stambene jedinice, što ostavlja široke mogućnosti bilo za obiteljsku kuću, vilu za odmor ili višestambeni objekt.

Za dodatne informacije, dokumentaciju i dogovor oko razgledavanja, slobodno me kontaktirajte.

ID KOD AGENCIJE: IS1517949

Eleonora Dobrović
Agent s licencom
Mob: 099/296-9844
Tel: 052 645 444
E-mail: eleonora.dobrovic@dogma-nekretnine.com
www.dogma-istra.com

LUKA BRGIĆ
Asistent u posredovanju
Mob: 098/902-8832
Tel: 052 645 444
E-mail: luka.brgic@dogma-nekretnine.com
www.dogma-istra.com
Если вы хотите узнать больше, вы можете поговорить с Eleonora Dobrović.
Характеристики
Договор
Продажа
Типология
Участок под застройку
Площадь
712 m²
Информация о ценах
Цена
€ 71 000
Цена за м²
100 €/m²
Откройте для себя каждый уголок объекта недвижимости
+12
Доп. опции

Свяжитесь с рекламодателем

Или