Отдельный дом на одну семью 274 m², Labin

€ 825 000
5+
274 m²
3+
Да
Балкон

Пометка

Объявление обновлено 08.04.2026
Описание

This description has been translated automatically and may not be accurate

ID: IS1514410

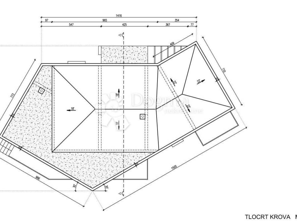
Nestled in the beautiful surroundings of Labin, this unique house covers an area of 274.75 m with a garden of 1554 m, representing a perfect blend of modern design and functionality. The house stands out with its unusual shape and appearance, captivating all who appreciate originality. The planned completion date is by the end of the second year, providing buyers with the opportunity to own a distinctive home.

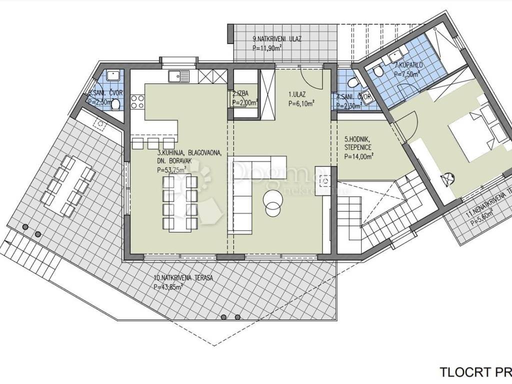
The ground floor spans 135.45 m and includes a spacious kitchen, a living room, and one bedroom with its own bathroom, ensuring comfortable and private space. Additionally, there are two separate WCs, ideal for family life or guests.

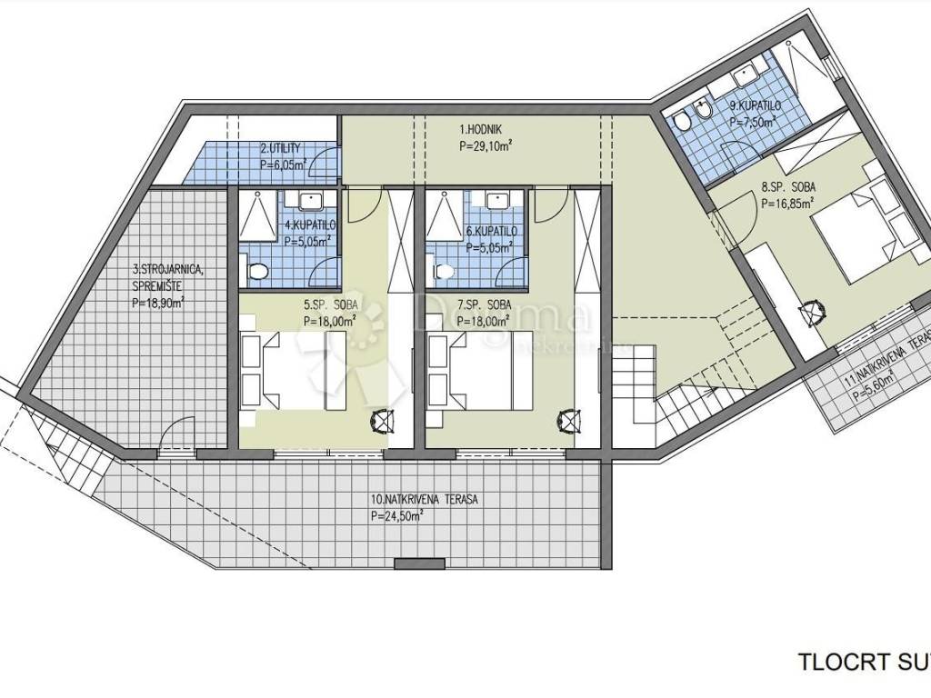
The basement, which covers 139.3 m, contains three bedrooms, each with its own bathroom, providing extra comfort and privacy. This space is perfectly suited for families or as an ideal place for guests, allowing them complete freedom and comfort.

One of the advantages of this house is the possibility of choosing the interior, allowing future owners to customize their home according to their desires and needs. The house will be connected to the municipal water supply and will have a septic tank.

This unique house in the vicinity of Labin is an ideal opportunity for anyone looking for a home that stands out, offering not only comfortable living but also the possibility for creative expression through their choice of interior design. Dont miss the chance to become the owner of this extraordinary space!

ID CODE: IS1514410

Karlo Šestan
Asistent u posredovanju
Mob: 091/361-1922
Tel: +385 52 771 458
E-mail: karlo.sestan@dogma-nekretnine.com
www.dogma-nekretnine.com
Если вы хотите узнать больше, вы можете поговорить с Karlo Šestan.
Характеристики
Типология
Отдельный дом на одну семью
Договор
Продажа
Этаж
1
Лифт
Да
Площадь
274 m² | коммерческая 1 828 m²
Помещения
5+
Спальни
4
Ванные
3+
Балкон
Да
Терраса
Нет
Другие характеристики
  • Бассейн
Деталь поверхности

Жилой фонд

Этаж
1
Площадь
274,0 m²
Коэффициент
100%
Тип площади
Основная
Коммерческая площадь
274,0 m²

Участок

Этаж
Нулевой этаж
Площадь
1 554,0 m²
Коэффициент
100%
Тип площади
Дополнительная
Коммерческая площадь
1 554,0 m²
Информация о ценах
Цена
€ 825 000
Цена за м²
451 €/m²
Энергоэффективность
  • Год постройки

    2025
  • Энергетическая сертификация

    Не подлежащий
Откройте для себя каждый уголок объекта недвижимости
+21
Доп. опции

Свяжитесь с рекламодателем

Или