Трехкомнатная квартира новое, нулевой этаж, Žitnjak, Загреб

€ 129 520
3
32 m²
1
T

Пометка

Объявление обновлено 05.12.2025
Описание

This description has been translated automatically and may not be accurate

ID: 1169-1

Apartment for sale New construction, Resnik (Zagreb)
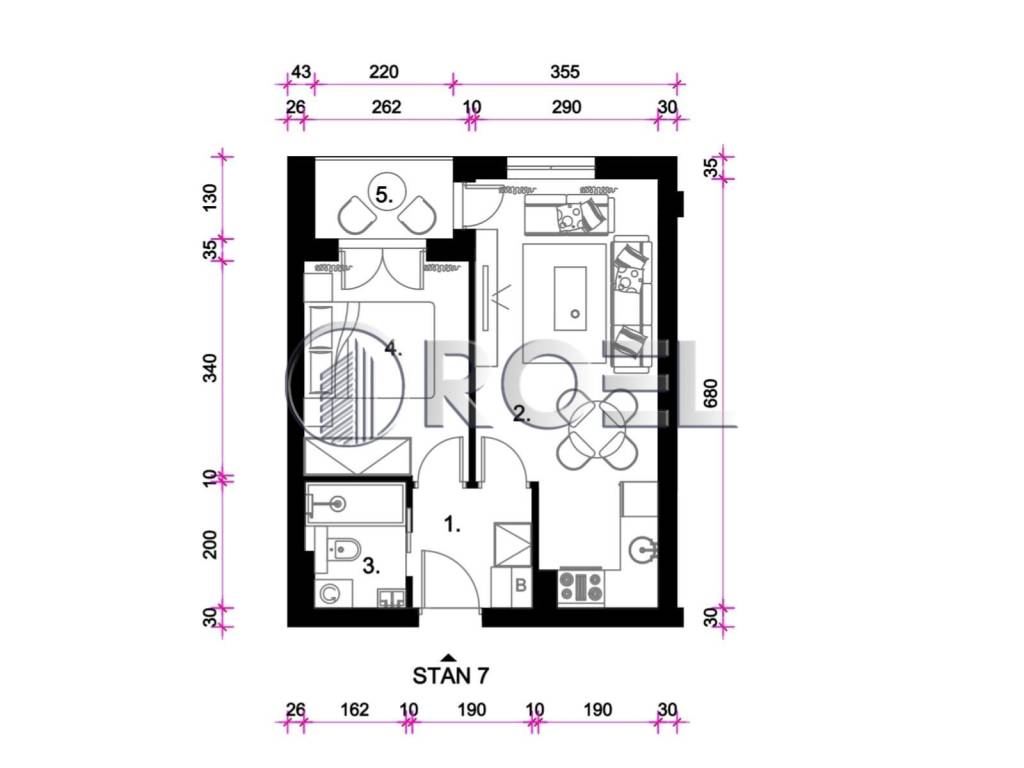
In a quiet and urban location in the Resnik settlement, we offer a two-bedroom apartment in a new building located on the ground floor of a modern residential building consisting of a ground floor, first and second floors. Total net usable area of 32.38 m2.
The apartment is extremely functionally organized and consists of an entrance area, a living room connected to the kitchen and dining room, a bedroom, a modern bathroom, and a loggia. The spaces are designed to make maximum use of natural light, thus achieving a pleasant and warm home atmosphere.
The interior is planned to include parquet and ceramic tiles, which ensures an elegant and long-lasting floor finish, while heating via a heat pump provides high energy efficiency and low maintenance costs. A parking space and storage room can be provided with the apartment, upon agreement with the investor, which further increases the functionality and comfort of everyday life.
The Resnik settlement is characterized by a quiet family environment, in the immediate vicinity of all important amenities for life schools, kindergartens, shops and public transport. The location combines the advantages of a quiet suburban neighborhood and quick access to the center of Zagreb, making this apartment an ideal choice for families and individuals looking for a quality new home in a green environment.
The Resnik neighborhood also has excellent transport connections to the rest of Zagreb and its surroundings. It is located in the eastern part of the city, near Slavonska Avenue and the ring road, which provides quick access to the center of Zagreb, as well as the A3 highway (ZagrebLipovac) and the bypass. There are also bus lines nearby that connect Resnik with the neighborhoods of Dubec, Borongaj and Kvaternikov trg, while the Zagreb-Resnik train station is available for those who prefer rail transport.
Thanks to this connection, the location allows for quick and easy movement to business zones, schools, shopping centers and recreational areas, making it an extremely practical choice for everyday life.
For more information and to arrange a viewing of the apartment, contact us - the new Resnik building represents the perfect opportunity for a comfortable and modern life in Zagreb.
Maja 091 888 4643
Если вы хотите узнать больше, вы можете поговорить с Maja Nikšić.
Характеристики
Типология
Квартира
Договор
Продажа
Этаж
Нулевой этаж
Площадь
32 m²
Помещения
3
Спальни
1
Ванные
1
Информация о ценах
Цена
€ 129 520
Цена за м²
4 048 €/m²
Энергоэффективность
  • Год постройки

    2026
  • Состояние

    Новое / На стадии строительства
  • Энергетическая сертификация

    Не классифицирована
Откройте для себя каждый уголок объекта недвижимости
+6
Доп. опции

Свяжитесь с рекламодателем

Или