Einfamilienhaus 416 m², neu, Premantura, Pomer, Medulin

€ 1.350.000
5
416 m²
3+
Terrasse

Notiz

Anzeige aktualisiert am: 28.04.2026
Beschreibung

This description has been translated automatically and may not be accurate

Referenz: 16265

ISTRIEN - POMER, moderne Villa mit beheiztem Pool direkt am Meer und Yachthafen

ISTRIEN POMER

MODERNE VILLA MIT POOL, DACHTERRASSE UND TRAUM-MEERBLICK

Zum Verkauf steht eine elegante, moderne Villa mit Swimmingpool und einer großzügigen Dachterrasse mit herrlichem Panoramablick auf das Meer und den Yachthafen. Die Villa befindet sich in außergewöhnlicher Lage, nur 75 Meter vom Meer und wenige Gehminuten vom Yachthafen ACI Pomer entfernt die ideale Kombination aus Komfort, Privatsphäre und unmittelbarer Nähe zum Meer.

HAUPTMERKMALE
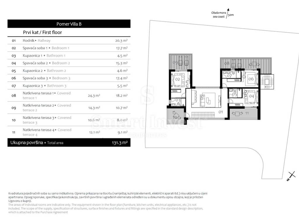
4 Schlafzimmer, 4 Badezimmer, 2 WCs
Wohnfläche: 416,8 m
Grundstücksfläche: 814 m
Beheizter Swimmingpool
Dachterrasse
Meerblick
4 Parkplätze (2 überdacht, 2 nicht überdacht)

Im Erdgeschoss befinden sich eine Eingangshalle, ein Gäste-WC, ein Hauswirtschaftsraum, ein Abstellraum und ein Schlafzimmer mit eigenem Bad. Das Herzstück des Erdgeschosses bildet ein helles und geräumiges Wohnzimmer mit angrenzender Küche und Essbereich. Von hier aus gelangt man direkt auf die überdachte Terrasse und zum Pool. Dieser Teil des Hauses lädt zum Verweilen, zu geselligen Sommerabenden und zum Entspannen ein. Auf dieser Ebene befinden sich außerdem ein Gäste-WC und ein Abstellraum mit Außenzugang eine praktische Lösung für den Alltag und die Zeit am Pool.

Im ersten Stock erwartet Sie eine Galerie mit Zugang zu einer überdachten Terrasse sowie drei komfortable Schlafzimmer mit jeweils eigenem Bad und Zugang zu einer privaten Terrasse der ideale Ort für den Morgenkaffee.

Eine Außentreppe verbindet die Poolterrasse mit einer großen Dachterrasse, von der aus man einen atemberaubenden Ausblick genießt: auf den Yachthafen, eine ruhige Bucht und das kristallklare Wasser der Adria. Der perfekte Ort, um den Sonnenuntergang mit Freunden zu genießen oder einen entspannten Abend ausklingen zu lassen.

Der liebevoll gestaltete Garten bietet alles, was man für einen mediterranen Lebensstil braucht: einen Swimmingpool, eine Liegewiese, eine Sommerküche, Grünflächen und vier Parkplätze, davon zwei überdacht.

AUSSTATTUNG UND WOHNQUALITÄT
Die Villa wurde mit Fokus auf Komfort und Langlebigkeit konzipiert. Fußbodenheizung und Klimaanlage in allen Räumen sorgen ganzjährig für eine optimale Temperatur, während hochwertige Aluminiumfenster exzellente Wärme- und Schalldämmung gewährleisten und den Ausblick perfekt einrahmen. Für die Innenausstattung wurden bewährte, elegante Materialien ausgewählt: italienische Fliesen, Armaturen von Grohe und dreilagiges Parkett in den Schlafzimmern, die den Räumen Raffinesse und Funktionalität im Alltag verleihen.

LAGE
Pomer ist einer jener Orte, die mit ihrer Schlichtheit und ihrem Charme bezaubern. Ruhig, idyllisch und inmitten der Natur gelegen, ist es ideal für alle, die Ruhe suchen, aber dennoch alle Annehmlichkeiten in der Nähe haben möchten. Der Ort bietet hervorragende Tavernen, gepflegte Strände, einen Yachthafen und Strandpromenaden alles in entspannter, mediterraner Atmosphäre.

Gleichzeitig ist von hier aus alles in unmittelbarer Nähe:
Pula ist nur 8 km entfernt.
Der Flughafen Pula ist in ca. 15 Minuten mit dem Auto zu erreichen.
Dank der schnellen Anbindung an das istrische Y sind die bekanntesten istrischen Reiseziele Rovinj, Poreč, Fažana, Premantura und das istrische Hinterland sowie Österreich, Slowenien und Deutschland schnell und bequem zu erreichen.

Diese Lage vereint auf perfekte Weise ein ruhiges mediterranes Leben am Meer mit der Nähe zu größeren Städten, erstklassigen Restaurants, Sehenswürdigkeiten und unberührter Natur. Die Villa eignet sich daher ideal sowohl als luxuriöses Familiendomizil als auch als prestigeträchtige Investition für die touristische Vermietung.

PREIS
Der angegebene Preis bezieht sich auf den Verkauf von 100 % der Geschäftsanteile der Gesellschaft, der die Immobilie gehört.

Für weitere Informationen und zur Vereinbarung eines Besichtigungstermins rufen Sie bitte an: +385/99/320-0008.

ID CODE: 16265

Agencija Opatija
Ovlašteni posrednik
Mob: +385/99/320-0008
E-mail: office@smart-invest.hr
www.smart-invest.hr
Wenn Sie mehr wissen möchten, können Sie mit Agencija Opatija. sprechen
Merkmale
Art
Einfamilienhaus
Vertrag
Verkauf
Etage
1
Fläche
416 m² | gewerblich 1.230 m²
Zimmer
5
Schlafzimmer
4
Badezimmer
3+
Balkon
Nein
Terrasse
Ja
Klimaanlage
Eigenständig, kalt / warm
Andere Merkmale
  • Pool
Oberflächendetail

Wohnung

Etage
1
Fläche
416,0 m²
Koeffizient
100%
Flächenart
Hauptsächlich
Verkaufsfläche
416,0 m²

Grundstück

Etage
Erdgeschoss
Fläche
814,0 m²
Koeffizient
100%
Flächenart
zusätzlich
Verkaufsfläche
814,0 m²
Preisinformationen
Preis
€ 1.350.000
Preis pro m²
1.098 €/m²
Energieeffizienz
  • Zustand

    Neu / Im Bau
  • Klimatisierung

    Eigenständig, kalt / warm
  • Energieausweis

    Befreit
Entdecken Sie jeden Winkel des Anwesens
+17
Zusätzliche Optionen

Inserenten kontaktieren

Oder