1/47


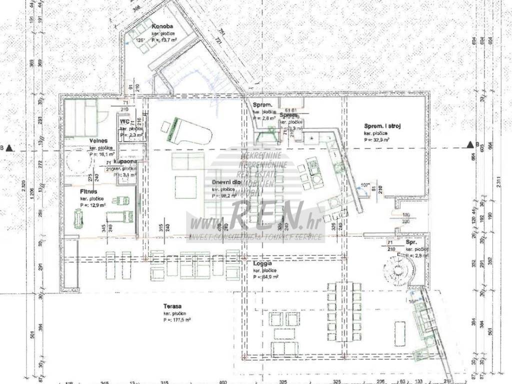
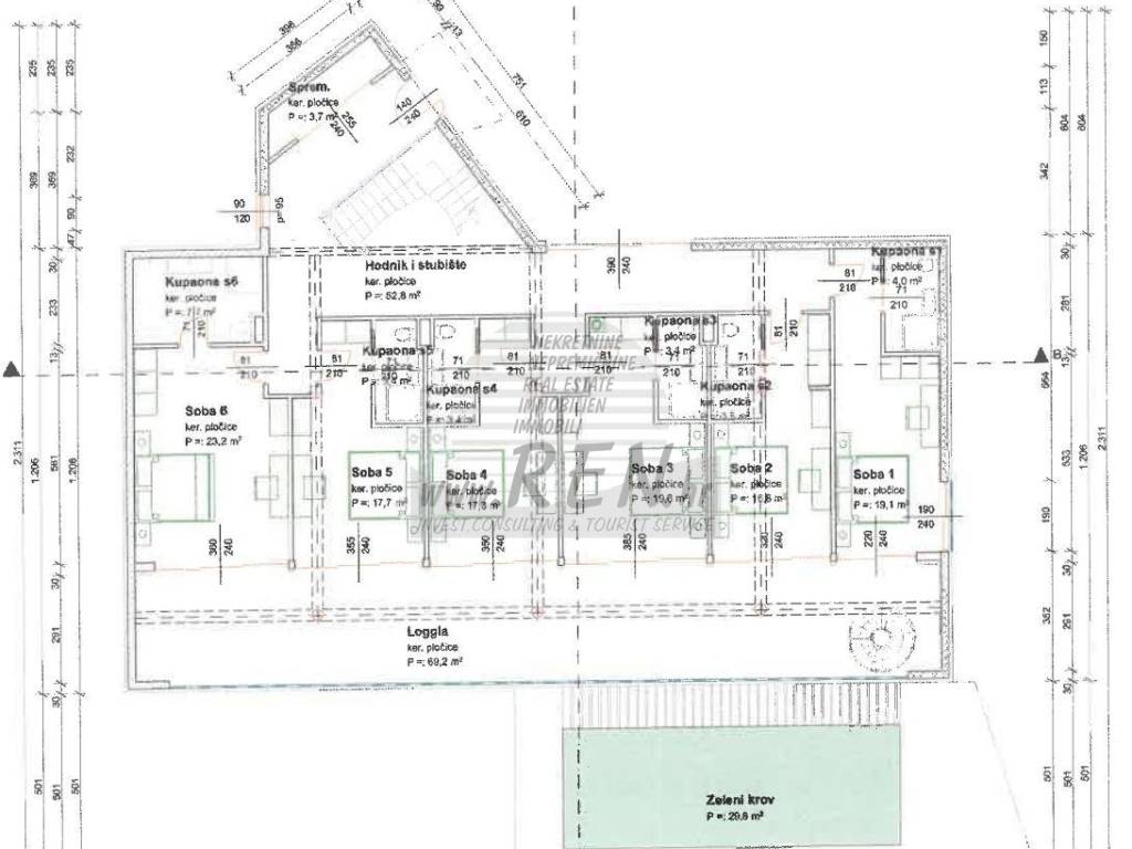
Einfamilienvilla 450 m², Buje
BujePreis auf Anfrage
Anzeige aktualisiert am: 08.05.2026
Merkmale
- Art
- Einfamilienvilla
- Vertrag
- Verkauf
- Etage
- 1
- Stockwerke im Gebäude
- 2
- Fläche
- 450 m² | gewerblich 2.178 m²
- Zimmer
- 5+
- Badezimmer
- 3+
- Garage, parkplätze (auto)
- 1 parkplatz(e)
Oberflächendetail
Wohnung
- Etage
- 1
- Fläche
- 450,0 m²
- Koeffizient
- 100%
- Flächenart
- Hauptsächlich
- Verkaufsfläche
- 450,0 m²
Grundstück
- Etage
- Erdgeschoss
- Fläche
- 1.728,0 m²
- Koeffizient
- 100%
- Flächenart
- zusätzlich
- Verkaufsfläche
- 1.728,0 m²
Preisinformationen
- Preis
- Preis auf Anfrage
Energieeffizienz
Baujahr
2023Energieausweis
Nicht klassifizierbar
Entdecken Sie jeden Winkel des Anwesens
Zusätzliche Optionen