Dreizimmerwohnung neu, Vodice

€ 400.000
3
139 m²
2
Nein
Balkon

Notiz

Anzeige aktualisiert am: 30.01.2026
Beschreibung

This description has been translated automatically and may not be accurate

Referenz: S2250

Srima, Vodice – 2-Zimmer-Wohnung mit Dachterrasse in Neubau

Vodice, SRIMA – Wohnungen in einem Neubau in Strandnähe werden zum Verkauf angeboten. Das Projekt mit modernem Design umfasst drei Etagen: Erdgeschoss + Obergeschoss + Dachterrasse und besteht aus drei Wohneinheiten. Jede Einheit verfügt über einen kleinen Gartenanteil und zwei Parkplätze. Das Projekt wird derzeit mit hochwertigen Materialien gebaut und nach den neuesten Baustandards ausgestattet. Die geplante Fertigstellung ist im Sommer 2026.

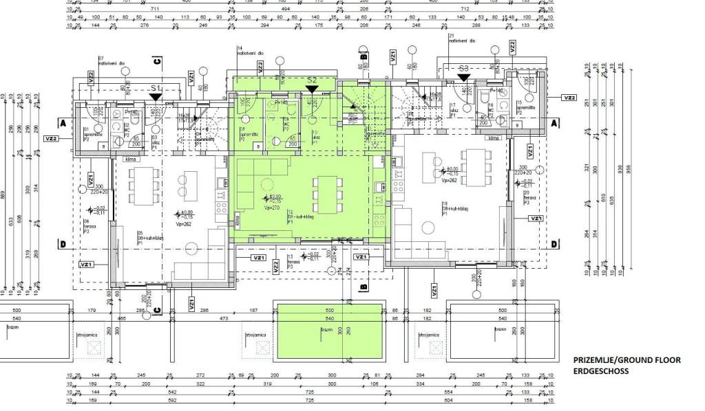
=Die Wohnung S2 hat eine gesamte Nettowohnfläche von 139,02 m² und besteht aus drei Etagen: Erdgeschoss + Obergeschoss + 2. Obergeschoss. Das Erdgeschoss mit einer Nettowohnfläche von 53,44 m² besteht aus Eingang, Abstellraum, WC, Abstellraum unter der Treppe, Küche mit Essbereich und Wohnzimmer mit Ausgang zur überdachten Terrasse. Über eine Innentreppe gelangt man in das Obergeschoss mit einer Nettowohnfläche von 56,12 m², das aus Treppenhaus, Flur, zwei Schlafzimmern, Badezimmer und Hauptschlafzimmer mit eigenem Bad sowie einer unüberdachten Terrasse besteht. Das 2. Obergeschoss mit einer Nettowohnfläche von 29,46 m² umfasst Treppenhaus mit Podest, überdachten Teil der Dachterrasse und unüberdachten Teil der Dachterrasse mit einer Fläche von 49,25 m².

Das Objekt befindet sich in ruhiger Lage inmitten neuer Einfamilienvillen, etwa 300 m vom Strand und 800 m vom Zentrum entfernt.

WEITERE VERFÜGBARE EINHEITEN:

=Die Wohnung S1 hat eine gesamte Nettowohnfläche von 126,53 m² und besteht aus drei Etagen: Erdgeschoss + Obergeschoss + 2. Obergeschoss. Das Erdgeschoss mit einer Nettowohnfläche von 52,50 m² besteht aus Eingang, Abstellraum, WC, Abstellraum unter der Treppe, Küche mit Essbereich und Wohnzimmer mit Ausgang zur überdachten Terrasse mit 13,28 m². Über eine Innentreppe gelangt man in das Obergeschoss mit einer Nettowohnfläche von 52,06 m², das aus Treppenhaus, Flur, zwei Schlafzimmern, Badezimmer und Hauptschlafzimmer mit eigenem Bad sowie einer unüberdachten Terrasse mit 7,90 m² besteht. Das 2. Obergeschoss mit einer Nettowohnfläche von 21,97 m² umfasst Treppenhaus mit Podest, überdachten Teil der Dachterrasse mit 5,29 m² und unüberdachten Teil der Dachterrasse mit 46,21 m².

=Die Wohnung S3 hat eine gesamte Nettowohnfläche von 127,43 m² und besteht aus drei Etagen: Erdgeschoss + Obergeschoss + 2. Obergeschoss. Das Erdgeschoss mit einer Nettowohnfläche von 53,13 m² besteht aus Eingang, Abstellraum, WC, Abstellraum unter der Treppe, Küche mit Essbereich und Wohnzimmer mit Ausgang zur überdachten Terrasse. Über eine Innentreppe gelangt man in das Obergeschoss mit einer Nettowohnfläche von 52,36 m², das aus Treppenhaus, Flur, zwei Schlafzimmern, Badezimmer und Hauptschlafzimmer mit eigenem Bad sowie einer unüberdachten Terrasse besteht. Das 2. Obergeschoss mit einer Nettowohnfläche von 21,94 m² umfasst Treppenhaus mit Podest, überdachten Teil der Dachterrasse und unüberdachten Teil der Dachterrasse mit einer Fläche von 46,26 m².
Merkmale
Art
Wohnung | Durchschnittliche immobilienklasse
Vertrag
Verkauf
Aufzug
Nein
Fläche
139 m²
Zimmer
3
Schlafzimmer
3
Badezimmer
2
Balkon
Ja
Terrasse
Nein
Heizung
Unabhängige heizung, heizkörper, stromversorgung
Klimaanlage
Eigenständig
Aussicht
Meer
Entfernung vom Meer
300 m
Andere Merkmale
  • Pool
Preisinformationen
Preis
€ 400.000
Preis pro m²
2.878 €/m²
Energieeffizienz

Energieverbrauch

A

Grundriss
Zusätzliche Optionen

Inserenten kontaktieren

Oder