Zweizimmerwohnung neu, dritte Etage, Dubrava – Klaka - Miroševac, Zagreb

€ 311.224
2
64 m²
1
3
Ja
Balkon

Notiz

Anzeige aktualisiert am: 16.03.2026
Beschreibung

This description has been translated automatically and may not be accurate

Referenz: iro-699091

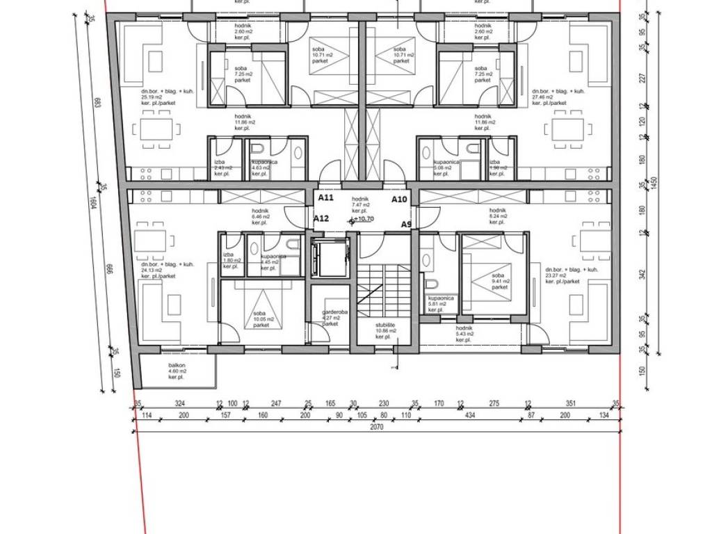
Zagreb - Donja Dubrava, two-bedroom apartment of 53.46 m2 for sale on the fifth floor of a residential building with a total of twenty apartments under construction, construction begins 03/2025 - move-in begins 2026.
.
It consists of: one bedroom, living room + kitchen + dining room, hallway, utility room, wardrobe, bathroom and balcony.
.
It is located in a great location, close to schools, kindergartens, shops and all other amenities necessary for a comfortable life!
.
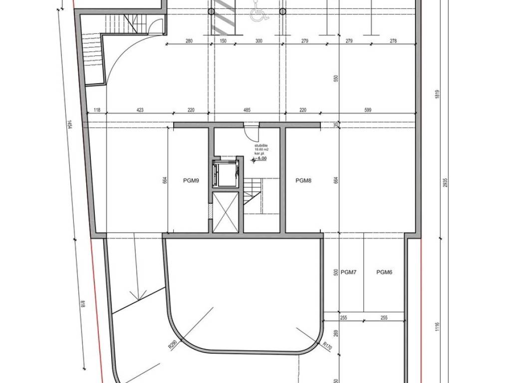
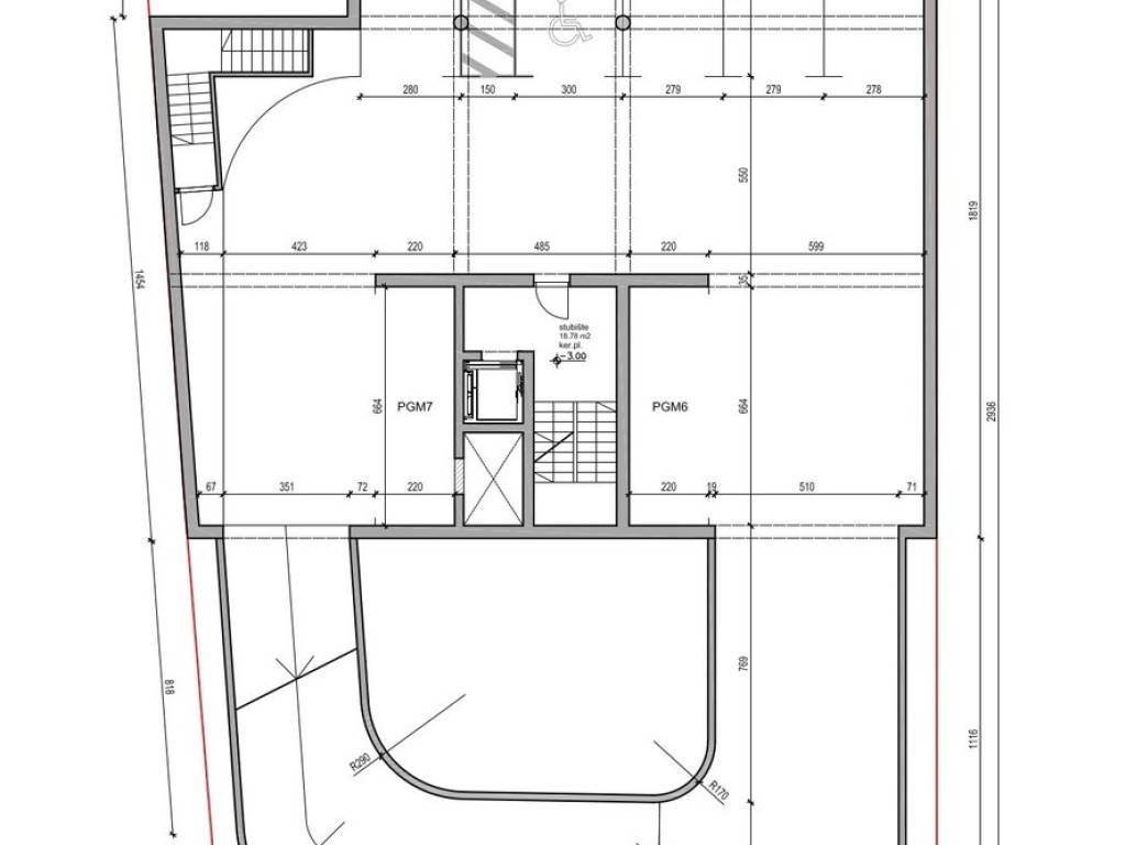
It has a covered parking space.
.
The building has an elevator.
.
Documentation in order.
.
Floor plan view apartment marked A20.
Merkmale
Art
Wohnung | Durchschnittliche immobilienklasse
Vertrag
Verkauf
Etage
3 etage
Aufzug
Ja
Fläche
64 m²
Zimmer
2
Schlafzimmer
2
Badezimmer
1
Balkon
Ja
Terrasse
Nein
Heizung
Zentralheizung, heizkörper
Preisinformationen
Preis
€ 311.224
Preis pro m²
4.863 €/m²
Energieeffizienz
  • Baujahr

    2026
  • Zustand

    Neu / Im Bau
  • Heizung

    Zentralheizung, heizkörper
  • Energieausweis

    Auf Zertifizierung wartend
Entdecken Sie jeden Winkel des Anwesens
+9
Zusätzliche Optionen

Inserenten kontaktieren

Oder