Bauland zur Verkauf

€ 159.000
980 m²

Notiz

Anzeige aktualisiert am: 14.04.2026
Beschreibung

This description has been translated automatically and may not be accurate

Referenz: 1361

Baugrundstück mit Konzeptentwurf und bezahlten Anschlüssen

Nur 5 km von Vodnjan entfernt, befindet sich dieses großzügige Baugrundstück mit einer Fläche von 980 m², das in der Nähe der Hauptstraße liegt, die die Siedlung mit der Stadt verbindet.

Zu den weiteren Vorteilen dieses Grundstücks gehören das bereits auf dem Grundstück verfügbare Wasser, der bezahlte Stromanschluss, der jedoch noch herbeigeführt werden muss, sowie ein fertiger Konzeptplan.

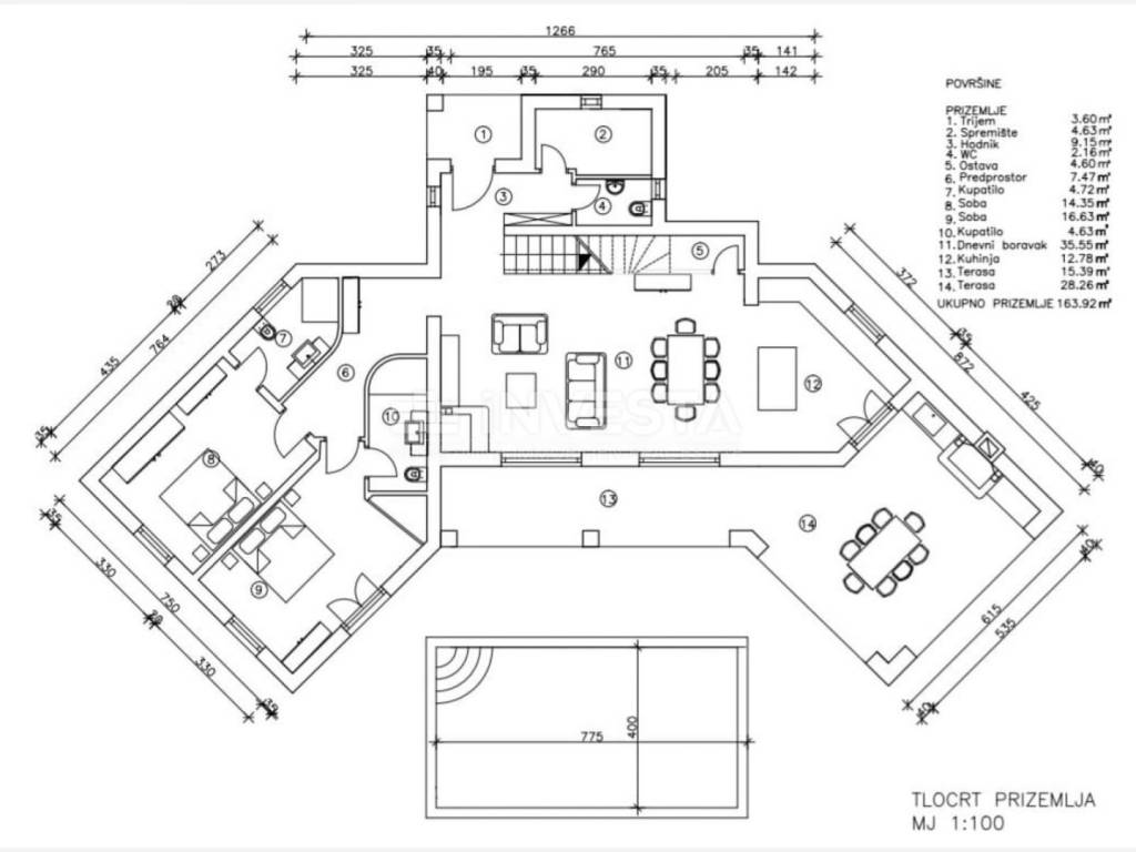
Das Haus im Projekt erstreckt sich über 164 m² Erdgeschoss, das eine Küche mit Essbereich umfasst, von dem aus man auf eine großzügige überdachte Terrasse mit Sommerküche gelangt, ein Wohnzimmer mit einer Innentreppe, die in das Obergeschoss führt, zwei Schlafzimmer mit eigenem Bad und ein Gäste-WC. Die Treppe im Wohnzimmer führt in das Obergeschoss, wo sich zwei weitere Schlafzimmer mit eigenen Badezimmern befinden. Auf dem großzügigen Grundstück von 810 m² ist der Bau eines 28 m² großen Schwimmbads mit Sonnenterrasse und zwei Parkplätzen vorgesehen.

Diese Immobilie bietet dem zukünftigen Besitzer die Möglichkeit, ein Familienhaus zu bauen, oder stellt eine ausgezeichnete Investition im Tourismussektor mit schneller Rentabilität dar.

**Die aktuellen Eigentümer sind offen für verschiedene Optionen, einschließlich des Austauschs gegen ein anderes Grundstück oder eine Immobilie sowie für eine Zusammenarbeit beim zukünftigen Bau des Hauses auf dem derzeitigen Grundstück.

Für weitere Informationen oder zur Vereinbarung eines Besichtigungstermins, kontaktieren Sie uns mit Vertrauen!

ID CODE: 1361

Anais Naimarević Ramljak
Mob: +385 99 825 2485
Tel: +385 52 33 00 33
E-mail: anais@investa.hr
www.investa.hr
Wenn Sie mehr wissen möchten, können Sie mit Anais Naimarević Ramljak. sprechen
Merkmale
Vertrag
Verkauf
Art
Bauland
Fläche
980 m²
Preisinformationen
Preis
€ 159.000
Preis pro m²
162 €/m²
Entdecken Sie jeden Winkel des Anwesens
+3
Zusätzliche Optionen

Inserenten kontaktieren

Oder