Einfamilienhaus Kašćerga, Pazin - Okolica, Pazin

€ 1
5+
565 m²
3+
Nein
Terrasse

Notiz

Anzeige aktualisiert am: 22.01.2026
Beschreibung

This description has been translated automatically and may not be accurate

Referenz: 5581

ZAMASK, EXKLUSIVE VILLA IN TOPLAGE MIT PANORAMABLICK

ZAMASK, EXKLUSIV IN UNSEREM ANGEBOT im Herzen der Halbinsel Istrien, eingebettet in unberührte Natur und umgeben von sanften Hügeln und mittelalterlichen Städtchen, präsentieren wir ein einzigartiges Villenprojekt, das zeitlose Eleganz mit absoluter Privatsphäre vereint. Das 5.800 m² große Grundstück bietet einen spektakulären 360-Grad-Blick auf die istrische Landschaft und ist der perfekte Rahmen für exklusives Wohnen.

Der Entwurf stammt von einem renommierten Architekten und wird mit einer bereits genehmigten Baugenehmigung und vollständigen Projektplänen angeboten. In dieser Phase hat der zukünftige Eigentümer die Möglichkeit, das Konzept individuell anzupassen – sei es hinsichtlich Raumaufteilung, Ausstattung oder Design – ganz nach den eigenen Vorstellungen und Wünschen.

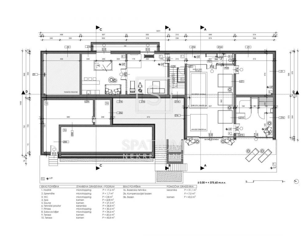
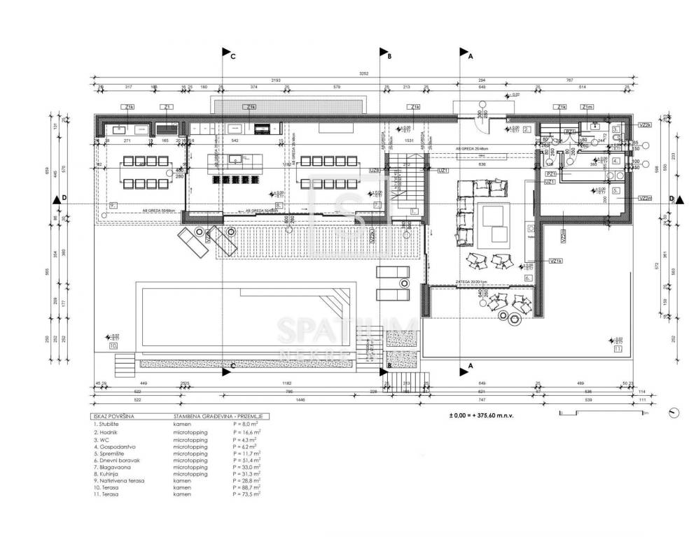
Die geplante Aufteilung erstreckt sich über drei Etagen mit großzügigen Innenräumen, die Innen- und Außenleben harmonisch miteinander verbinden. Wellnessbereiche, stilvolle Wohnräume und Schlafzimmer mit eigenen Badezimmern sind Bestandteil des durchdachten Konzepts. Hochwertige Naturmaterialien, klare Linien und moderne Technik verleihen der Villa ihren eleganten, istrischen Charakter.

Diese Immobilie ist weit mehr als ein Haus – sie ist Ausdruck eines erlesenen Lebensstils in einer der authentischsten Regionen Istriens.

Für weitere Informationen oder eine Projektpräsentation stehen wir Ihnen gerne zur Verfügung.

Petra Juričić
Zertifizierte Immobilienmaklerin
+385 91 185 1211
petra@spatium.hr

Spatium nekretnine
+385 51 272 903
info@spatium.hr

ID CODE: 5581

Petra Juričić
Agent s licencom
Mob: +385 91 185 1211
Tel: +385 51 272 903
E-mail: petra@spatium.hr
www.spatium.hr
Merkmale
Art
Einfamilienhaus
Vertrag
Verkauf
Stockwerke im Gebäude
3
Aufzug
Nein
Fläche
565 m²
Zimmer
5+
Schlafzimmer
4
Badezimmer
3+
Balkon
Nein
Terrasse
Ja
Garage, parkplätze (auto)
1 in lager/garage, 5 parkplatz(e)
Heizung
Unabhängige heizung, heißluft heizung
Klimaanlage
Eigenständig, kalt / warm
Andere Merkmale
  • Alarmanlage
Preisinformationen
Preis
€ 1
Preis pro m²
0 €/m²
Energieeffizienz
  • Heizung

    Unabhängige heizung, heißluft heizung
  • Klimatisierung

    Eigenständig, kalt / warm
  • Energieausweis

    Nicht klassifizierbar
Grundriss
Entdecken Sie jeden Winkel des Anwesens
+14
Zusätzliche Optionen

Inserenten kontaktieren

Oder