Einfamilienhaus Labin, Labin

€ 780.000
5
335 m²
3+
Nein
Terrasse

Notiz

Anzeige aktualisiert am: 10.02.2026
Beschreibung

This description has been translated automatically and may not be accurate

Referenz: 1437

Umgebung von Labin, moderne Villa mit Pool und Dachterrasse

Labin Umgebung, elegante Villa mit Pool und Dachterrasse – Villa D

In einer ruhigen Umgebung in der Nähe von Labin befindet sich die Villa D, eine modern gestaltete Immobilie, die außergewöhnlichen Komfort und Funktionalität auf einem großzügigen Grundstück bietet. Diese wunderschöne Villa vereint modernen Luxus mit einer natürlichen Umgebung und stellt eine hervorragende Gelegenheit für Familienleben oder eine Investition in Tourismusvermietung dar. Die Villa D ist eines von fünf Villenprojekten, die in der Umgebung von Labin gebaut werden.

Hauptmerkmale

Bruttofläche: 335 m²
Nettogeschossfläche: 293 m²
Grundstücksfläche: 2.365 m²
Gartenfläche: 590 m² (460 m² Grünfläche und 130 m² gepflasterte Terrassen)
Parkplätze: 74 m²
Außenbereich Der Garten ist sorgfältig angelegt und umfasst:

Ein 9 x 5,3 m großer Pool mit flachem Kinderbereich und tieferem Teil sowie einer Außendusche, ideal für Familienentspannung.
Eine überdachte Außenküche auf der Terrasse, perfekt für gesellige Zusammenkünfte und Mahlzeiten im Freien.
Ein 12 m² großer Nebengebäuderaum, der als Abstellraum dient, mit Möglichkeit zur Umnutzung.
Eine 17 m² große Dachterrasse mit wunderschönem Blick auf die Natur.
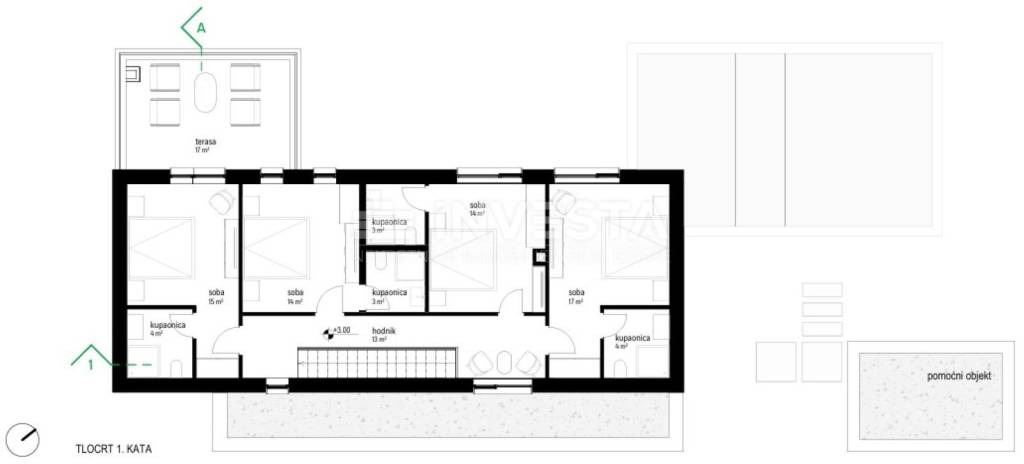
Innenbereich Die Villa D ist auf zwei Etagen organisiert:

Erdgeschoss:

Großzügiges Open-Space-Wohnzimmer mit Küche und Essbereich, das auf zwei überdachte Terrassen führt.
Ein Abstellraum in der Küche für zusätzliche Funktionalität.
Ein Raum für eine Sauna oder ein Fitnessstudio mit Zugang zur Terrasse.
Gäste-WC.
Obergeschoss:

Vier komfortable Schlafzimmer, jedes mit eigenem Badezimmer.
Ein Schlafzimmer hat Zugang zur 17 m² großen Dachterrasse, die ideal für private Entspannung ist.
Technische Merkmale

Pool: Wasserfläche von 48 m², unterteilt in einen flachen Kinderbereich und einen tieferen Teil.
Energieeffizienz: Solarpaneele mit einer Leistung von 5,46 kWp reduzieren den Energieverbrauch.
Heizung und Kühlung: Inverter-Klimaanlage und Fußbodenheizung über das Fan-Coil-System.
Anpassungsfähigkeit: Käufern wird die Möglichkeit gegeben, die Oberflächenmaterialien nach eigenen Wünschen auszuwählen.
Lage Die Villa befindet sich in der Nähe aller notwendigen Annehmlichkeiten wie Geschäfte, Schulen, Postämter, Restaurants und Sporteinrichtungen. Diese ruhige, aber äußerst funktionale Lage bietet ideale Bedingungen für ein komfortables Leben oder eine lukrative touristische Vermietung.

Fazit Die Villa D ist eine einzigartige Immobilie, die Luxus, Funktionalität und eine natürliche Umgebung vereint. Das großzügige Grundstück, der Pool, die Dachterrasse und die modernen technischen Standards machen diese Villa zu einer außergewöhnlichen Gelegenheit für den Lebensstil oder eine Investition mit schneller Kapitalrendite.

Fertigstellung des Bauprojekts: Juni 2025.

Für weitere Informationen oder zur Vereinbarung einer Besichtigung stehen wir Ihnen gerne zur Verfügung!

ID CODE: 1437

Đankarlo Čekić
Mob: +385 99 237 6130
Tel: +385 52 33 00 33
E-mail: dan@investa.hr
www.investa.hr
Merkmale
Art
Einfamilienhaus
Vertrag
Verkauf
Stockwerke im Gebäude
1
Aufzug
Nein
Fläche
335 m²
Zimmer
5
Schlafzimmer
4
Badezimmer
3+
Balkon
Nein
Terrasse
Ja
Klimaanlage
Eigenständig, kalt / warm
Andere Merkmale
  • Gepanzerte Tür
Preisinformationen
Preis
€ 780.000
Preis pro m²
2.328 €/m²
Energieeffizienz
  • Klimatisierung

    Eigenständig, kalt / warm
  • Energieausweis

    Nicht klassifizierbar
Grundriss
Entdecken Sie jeden Winkel des Anwesens
+19
Zusätzliche Optionen

Inserenten kontaktieren

Oder