Mehrfamilienhaus Malinska, Malinska-Dubašnica, Malinska

€ 750.000
4
140 m²
3
Nein
Terrasse

Notiz

Anzeige aktualisiert am: 22.01.2026
Beschreibung

This description has been translated automatically and may not be accurate

Referenz: 221

MALINSKA, INSEL KRK - Doppelhaushälfte mit Pool und Meerblick

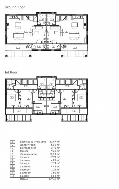
In attraktiver Lage in Malinska auf der Insel Krk steht eine moderne Doppelhaushälfte auf zwei Etagen zum Verkauf, ideal für Urlaub und ganzjähriges Wohnen. Das Anwesen besticht durch seinen privaten Pool, den angelegten Garten und den wunderschönen Meerblick. Im Erdgeschoss befinden sich ein geräumiges Wohnzimmer, verbunden mit Küche und Esszimmer, ein Flur und ein Gäste-WC. Vom Esszimmer aus gelangt man auf eine überdachte Terrasse mit Pergola, Liegewiese, Pool und Außengrill – der perfekte Ort, um den mediterranen Lebensstil zu genießen. Eine Innentreppe führt in den ersten Stock, wo sich drei Schlafzimmer und drei Badezimmer befinden. Zwei Zimmer haben Zugang zu einem Balkon mit freiem Meerblick, der für zusätzlichen Luxus und Privatsphäre sorgt. Der Garten ist sorgfältig mit mediterranen Pflanzen angelegt und mit einer automatischen Bewässerung ausgestattet. Außerdem gibt es eine Außendusche und zwei Parkplätze. Der Pool ist mit einem Elektrolysesystem für eine einfache Wartung ausgestattet. Das Haus ist komplett ausgestattet für einen komfortablen Aufenthalt: Elektrische Fußbodenheizung, Klimaanlage, PVC-Fenster und elektrische Rollläden sorgen für hohen Komfort und Energieeffizienz. Dieses elegante Doppelhaus vereint modernes Design, Funktionalität und eine ruhige Lage am Meer – eine perfekte Wahl für eine Familie oder als Investition für eine touristische Vermietung.

Sehr geehrte Kunden, die Vermittlungsprovision wird gemäß den Allgemeinen Geschäftsbedingungen berechnet:
www.myadriatic.hr/opci-uvjeti-poslovanja

ID CODE: 221

Igor Popović
Mob: +385 91 500 8728
Tel: +385 91 500 8728
E-mail: info@myadriatic.hr
www.myadriatic.hr
Merkmale
Art
Mehrfamilienhaus
Vertrag
Verkauf
Stockwerke im Gebäude
1
Aufzug
Nein
Fläche
140 m²
Zimmer
4
Schlafzimmer
3
Badezimmer
3
Balkon
Nein
Terrasse
Ja
Garage, parkplätze (auto)
2 parkplatz(e)
Heizung
Unabhängige heizung, heißluft heizung
Preisinformationen
Preis
€ 750.000
Preis pro m²
5.357 €/m²
Energieeffizienz
  • Baujahr

    2025
  • Heizung

    Unabhängige heizung, heißluft heizung
  • Energieausweis

    Nicht klassifizierbar
Grundriss
Entdecken Sie jeden Winkel des Anwesens
+13
Zusätzliche Optionen

Inserenten kontaktieren

Oder