Mehrfamilienhaus Malinska, Malinska-Dubašnica, Malinska

€ 495.000
4
116 m²
2
Nein
Terrasse

Notiz

Anzeige aktualisiert am: 22.01.2026
Beschreibung

This description has been translated automatically and may not be accurate

Referenz: 441

MALINSKA - Neubau! Doppelhaushälfte mit Pool und Meerblick

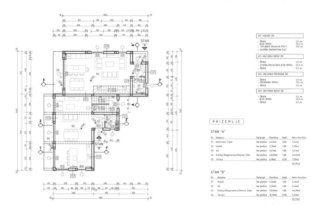
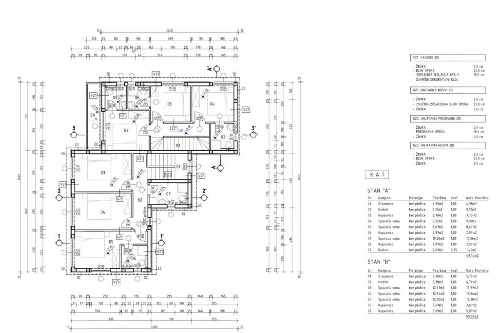
Dieses moderne Doppelhaus in einem ruhigen Teil von Malinska vereint perfekt Komfort und modernes Design. Im Erdgeschoss befindet sich ein geräumiges Wohnzimmer, das mit dem Esszimmer und der Küche verbunden ist und einen funktionalen und offenen Raum für Familientreffen schafft. Auf dieser Etage gibt es außerdem ein praktisches Gäste-WC und eine überdachte Terrasse, die zu einem privaten Pool und einem angelegten Garten führt, ideal zum Entspannen und Genießen der Privatsphäre. Im Obergeschoss befinden sich drei Schlafzimmer, von denen eines über ein eigenes Badezimmer verfügt, während sich die anderen beiden ein gemeinsames Badezimmer teilen. Die Aufteilung ist so gestaltet, dass sie allen Familienmitgliedern oder Gästen Bequemlichkeit und Komfort bietet. Das Haus verfügt über keinen Balkon, aber das Design ermöglicht eine maximale Nutzung des Innenraums für einen komfortablen Aufenthalt. Das Haus ist mit hochwertigen Materialien ausgestattet, darunter moderne Keramik und Sanitärartikel, Fußbodenheizung mit intelligenter WLAN-Steuerung und Klimaanlage in jedem Raum. Mit zwei privaten Parkplätzen ist das Anwesen nur 600 Meter vom Zentrum von Malinska und dem Meer entfernt und bietet eine ideale Balance zwischen Ruhe und Nähe zu allen Annehmlichkeiten. Die geplante Fertigstellung der Bauarbeiten ist Dezember 2025. Wenn Sie auf der Suche nach einem modernen Zuhause in toller Lage sind oder in eine Immobilie mit hohem Potenzial investieren möchten, sollten Sie sich diese Gelegenheit nicht entgehen lassen. Kontaktieren Sie uns für weitere Informationen und sichern Sie sich rechtzeitig Ihr neues Haus!

Sehr geehrte Kunden, die Vermittlungsprovision wird gemäß den Allgemeinen Geschäftsbedingungen berechnet:
www.myadriatic.hr/opci-uvjeti-poslovanja

ID CODE: 441

Igor Popović
Mob: +385 91 500 8728
Tel: +385 91 500 8728
E-mail: info@myadriatic.hr
www.myadriatic.hr
Merkmale
Art
Mehrfamilienhaus
Vertrag
Verkauf
Aufzug
Nein
Fläche
116 m²
Zimmer
4
Schlafzimmer
3
Badezimmer
2
Balkon
Nein
Terrasse
Ja
Garage, parkplätze (auto)
2 parkplatz(e)
Heizung
Unabhängige heizung, heißluft heizung
Klimaanlage
Eigenständig, kalt / warm
Preisinformationen
Preis
€ 495.000
Preis pro m²
4.267 €/m²
Energieeffizienz
  • Baujahr

    2025
  • Heizung

    Unabhängige heizung, heißluft heizung
  • Klimatisierung

    Eigenständig, kalt / warm
  • Energieausweis

    Nicht klassifizierbar
Grundriss
Entdecken Sie jeden Winkel des Anwesens
+10
Zusätzliche Optionen

Inserenten kontaktieren

Oder