Dreizimmerwohnung Njivice, Omišalj, Njivice, Omišalj

€ 585.000
3
106 m²
2
0
Nein
Balkon
Terrasse

Notiz

Anzeige aktualisiert am: 22.01.2026
Beschreibung

This description has been translated automatically and may not be accurate

Referenz: 2688

INSEL KRK, NJIVICE, NEU GEBAUTE WOHNUNG, EXKLUSIV BEI SPATIUM AGENCY

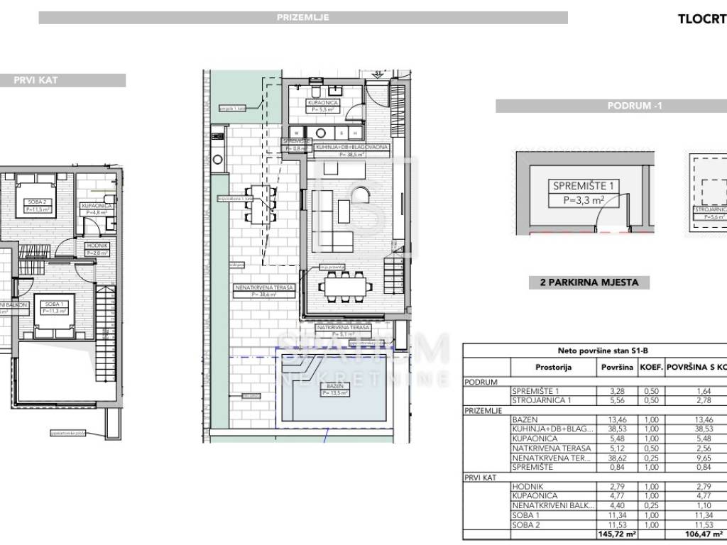
NJIVICE, INSEL KRK, in einem exklusiven Angebot ist eine zweistöckige Wohnung mit Pool in einem kleinen Neubau. Die Fläche beträgt 104,45 m2 und verteilt sich wie folgt: Küche mit Esszimmer und Wohnzimmer 38,55 m2, zwei Schlafzimmer von 11,34 und 11,52 m2, zwei Badezimmer von 5,48 und 4,78 m2, Flur 2,8 m2, Abstellraum 0,84 m2, Terrasse von 66,10 m2 m2, Balkon 5,25 m2 und Schwimmbad von 11,30 m2. Die Wohnung wird mit Aluminiumschreinereiarbeiten, erstklassigen Bodenbelägen und erstklassigen Sanitäranlagen ausgestattet. Über eine Wärmepumpe wird eine Fußbodenheizung installiert, zur Kühlung kommt ein Fan-Coil-System zum Einsatz. Alles wird zu einem intelligenten System zusammengefasst, wodurch dieses innovative Konzept die Verwaltung aller Geräte verbessert und für mehr Systemsicherheit und Energieeffizienz sorgt. In einer ruhigen Straße, umgeben von Einfamilienhäusern und luxuriösen Neubauten, direkt am Grüngürtel gelegen, bietet dieser Standort alles, was Sie sich im Urlaub, aber auch bei einem ganzjährigen Aufenthalt wünschen. Der geplante Abschluss der Arbeiten ist August 2025. Erleben Sie einen echten Sommerurlaub im bezaubernden Ambiente eines Ferienortes direkt am Meer! Wunderschöne Strände, außergewöhnlich blaues Meer, viel Schatten und ein mildes Klima locken jedes Jahr mehr Gäste nach Njivice, was heute ein Synonym für Familientourismus ist. Einst ein kleines Fischerdorf, ist Njivice heute ein bekanntes Touristenziel, ein Badeort mit Seele, den Gäste aus Europa und anderen Ländern gerne besuchen. Für weitere Informationen wenden Sie sich bitte vertrauensvoll an uns. Azalea Kegalj Lizenzierter Vertreter +385 95 905 5464 azalea@spatium.hr Jana Hodak lizenzierter Vertreter 098/1671-888 jana@spatium.hr Spatium nekretnine +385 51 272 903 info@spatium.hr

ID CODE: 2688

Azalea Kegalj
Agent s licencom
Mob: +385 95 905 5464
Tel: +385 51 272 903
E-mail: azalea@spatium.hr
www.spatium.hr

Jana Hodak
Agent s licencom
Mob: +385 98 167 1888
Tel: +385 51 272 903
E-mail: jana@spatium.hr
www.spatium.hr
Merkmale
Art
Wohnung
Vertrag
Verkauf
Etage
Erdgeschoss
Stockwerke im Gebäude
2
Aufzug
Nein
Fläche
106 m²
Zimmer
3
Schlafzimmer
2
Badezimmer
2
Balkon
Ja
Terrasse
Ja
Garage, parkplätze (auto)
1 in lager/garage, 2 parkplatz(e)
Heizung
Unabhängige heizung, heißluft heizung
Preisinformationen
Preis
€ 585.000
Preis pro m²
5.519 €/m²
Energieeffizienz
  • Baujahr

    2024
  • Heizung

    Unabhängige heizung, heißluft heizung
  • Energieausweis

    Nicht klassifizierbar
Entdecken Sie jeden Winkel des Anwesens
+5
Zusätzliche Optionen

Inserenten kontaktieren

Oder