Bauland zur Verkauf

€ 134.750
612 m²

Notiz

Anzeige aktualisiert am: 22.01.2026
Beschreibung

This description has been translated automatically and may not be accurate

Referenz: 752

Zum Verkauf steht ein Baugrundstück mit 612 m² und wunderschönem Blick auf Motovun

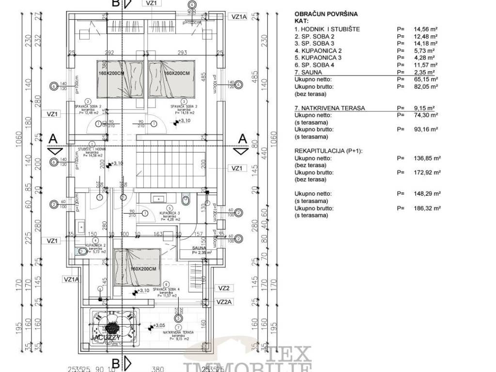
Zum Verkauf steht ein Baugrundstück mit 612 m² und wunderschönem Blick auf Motovun. Das Grundstück verfügt über eine gültige Baugenehmigung für den Bau eines Hauses mit Pool, mit einer Bruttofläche von 186 m².
Laut Projekt umfasst das geplante Haus 4 Schlafzimmer, 3 Badezimmer, ein großzügiges Wohnzimmer mit Küche und Essbereich sowie eine überdachte Terrasse und einen Pool.
Eine ideale Gelegenheit zum Bau einer Familienvilla oder eines Ferienhauses in ruhiger und malerischer Lage im Herzen Istriens.

ID CODE: 752

Tex Immobilie
Agent s licencom
Mob: 0989826003
Tel: 0994705455
E-mail: info@tex-immobilie.com
www.tex-immobilie.com
Merkmale
Vertrag
Verkauf
Art
Bauland
Fläche
612 m²
Preisinformationen
Preis
€ 134.750
Preis pro m²
220 €/m²
Entdecken Sie jeden Winkel des Anwesens
+3
Zusätzliche Optionen

Inserenten kontaktieren

Oder