Vierzimmerwohnung Poreč, Luka, Parenzo

€ 590.000
4
152 m²
3
0
Nein
Terrasse

Notiz

Anzeige aktualisiert am: 22.01.2026
Beschreibung

This description has been translated automatically and may not be accurate

Referenz: 873069

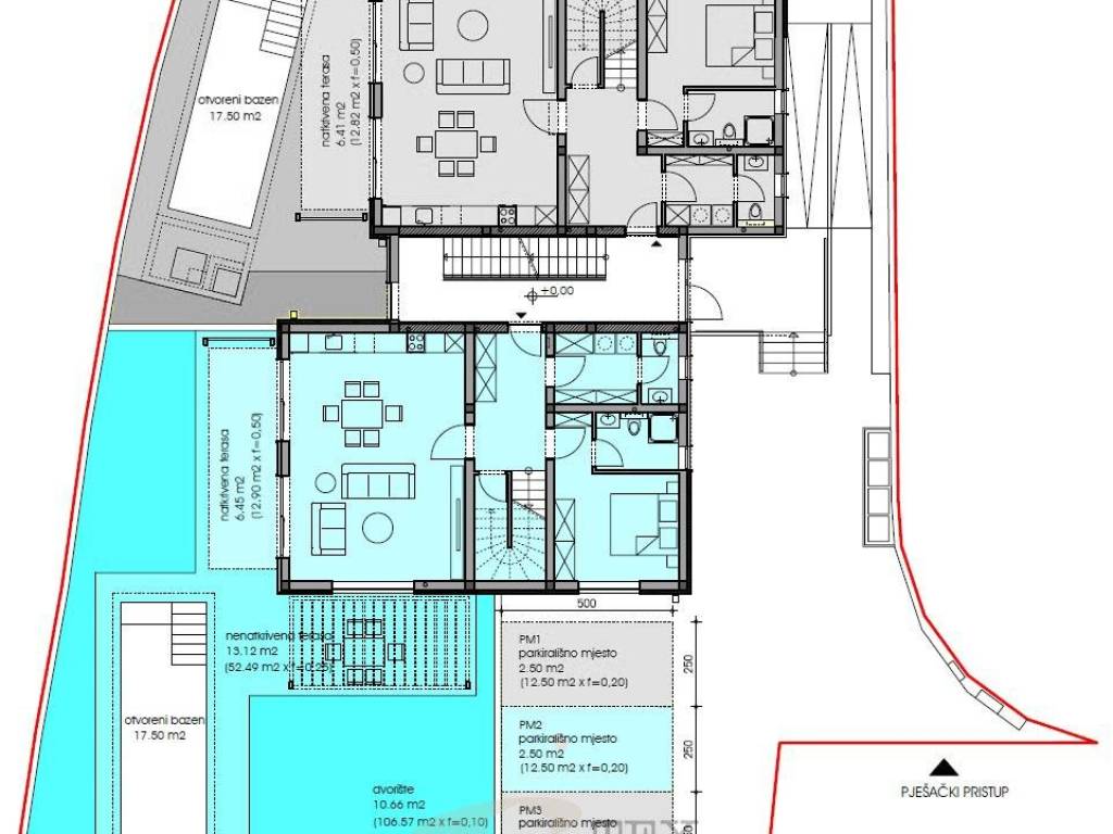
Bereich Poreč, Neubau, zweistöckige Wohnung mit Swimmingpool

Zum Verkauf steht eine moderne, neu gebaute Wohnung im Ort Tar bei Poreč, nur 3 km vom Meer entfernt.
Die Wohnung befindet sich in einem hochwertig gebauten Gebäude und verfügt über einen eigenen Parkplatz.

Im Erdgeschoss befinden sich ein großzügiges Wohnzimmer mit Küche und Essbereich (37,60 m²), ein Schlafzimmer mit eigenem Bad, ein Flur, ein Gäste-WC und ein Technikraum. Vom Wohnzimmer gelangt man in den Garten (110,22 m²), der einen privaten Pool von 17,50 m² und eine überdachte Terrasse von 12,82 m² umfassen wird.

Im ersten Stock befinden sich zwei Schlafzimmer, jeweils mit eigenem Bad, sowie eine gemeinsame Terrasse. Im Kellergeschoss gibt es einen Abstellraum von 5,80 m².

Die Wohnung ist vollständig möbliert, ausgestattet und in allen Räumen klimatisiert.

ID CODE: 873069

Tex Immobilie
Agent s licencom
Mob: 0989826003
Tel: 0994705455
E-mail: info@tex-immobilie.com
www.tex-immobilie.com
Merkmale
Art
Wohnung
Vertrag
Verkauf
Etage
Erdgeschoss
Stockwerke im Gebäude
2
Aufzug
Nein
Fläche
152 m²
Zimmer
4
Schlafzimmer
3
Badezimmer
3
Balkon
Nein
Terrasse
Ja
Garage, parkplätze (auto)
1 parkplatz(e)
Klimaanlage
Eigenständig, kalt / warm
Preisinformationen
Preis
€ 590.000
Preis pro m²
3.882 €/m²
Energieeffizienz
  • Baujahr

    2023
  • Klimatisierung

    Eigenständig, kalt / warm
  • Energieausweis

    Nicht klassifizierbar
Entdecken Sie jeden Winkel des Anwesens
+20
Zusätzliche Optionen

Inserenten kontaktieren

Oder