Bauland zur Verkauf

€ 180.000
404 m²

Notiz

Anzeige aktualisiert am: 22.01.2026
Beschreibung

This description has been translated automatically and may not be accurate

Referenz: 7013

Srima – attraktives Baugrundstück mit Baugenehmigung, 180 m vom Strand

Srima – attraktives Baugrundstück mit Baugenehmigung, 180 m vom Strand entfernt

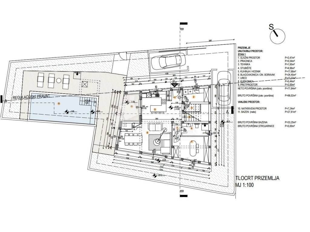
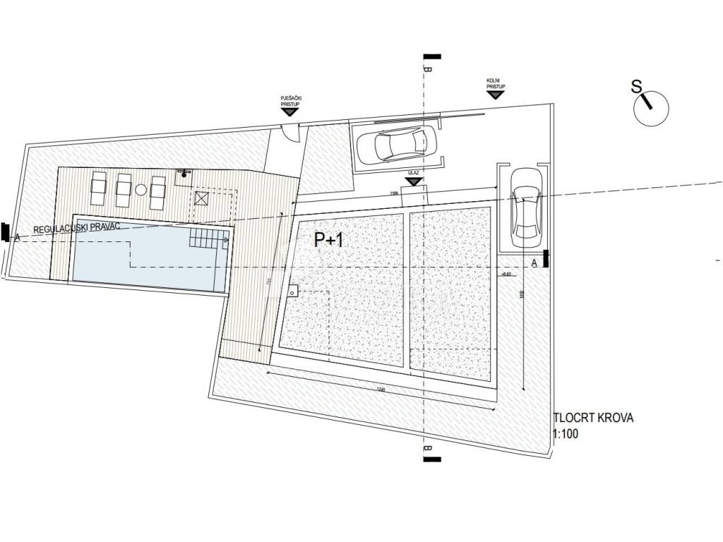
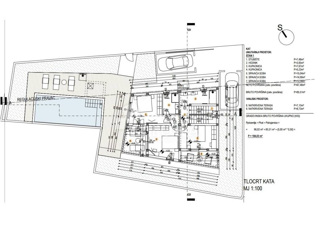
In ruhiger Lage in Srima, nur 180 m vom Strand entfernt, befindet sich ein Baugrundstück mit einer Fläche von 404 m². Das Grundstück hat eine regelmäßige Form, ist eben und auf drei Seiten mit einer Betonmauer eingefasst. Die gesamte öffentliche Infrastruktur befindet sich in unmittelbarer Nähe.

Für das Grundstück wurde eine Baugenehmigung für den Bau eines freistehenden Objekts (Erdgeschoss + Obergeschoss) mit einer Bruttogesamtfläche von 157 m² sowie einem 27 m² großen Pool erteilt. Der Baubeginn kann sofort erfolgen.

Die Entfernung zum Ortszentrum beträgt 450 m.

ID CODE: 7013

Dijana Banović
Agent s licencom
Mob: +385 98 192 6220
E-mail: dijana@litora-nekretnine.hr
www.litora-nekretnine.hr

Divna Bulat
Agent s licencom
Mob: +385 91 6367 574
E-mail: divna@litora-nekretnine.hr
www.litora-nekretnine.hr

Milica Štrkalj
Agent s licencom
Mob: +385 95 342 5722
E-mail: milica@litora-nekretnine.hr
www.litora-nekretnine.hr
Merkmale
Vertrag
Verkauf
Art
Bauland
Fläche
404 m²
Preisinformationen
Preis
€ 180.000
Preis pro m²
446 €/m²
Entdecken Sie jeden Winkel des Anwesens
+13
Zusätzliche Optionen

Inserenten kontaktieren

Oder