Vierzimmerwohnung Poreč, Luka, Parenzo

€ 450.000
4
147 m²
2
3
Nein

Notiz

Anzeige aktualisiert am: 22.01.2026
Beschreibung

This description has been translated automatically and may not be accurate

Referenz: 873400784

Umgebung von Poreč – Penthouse im Neubau mit drei Schlafzimmern

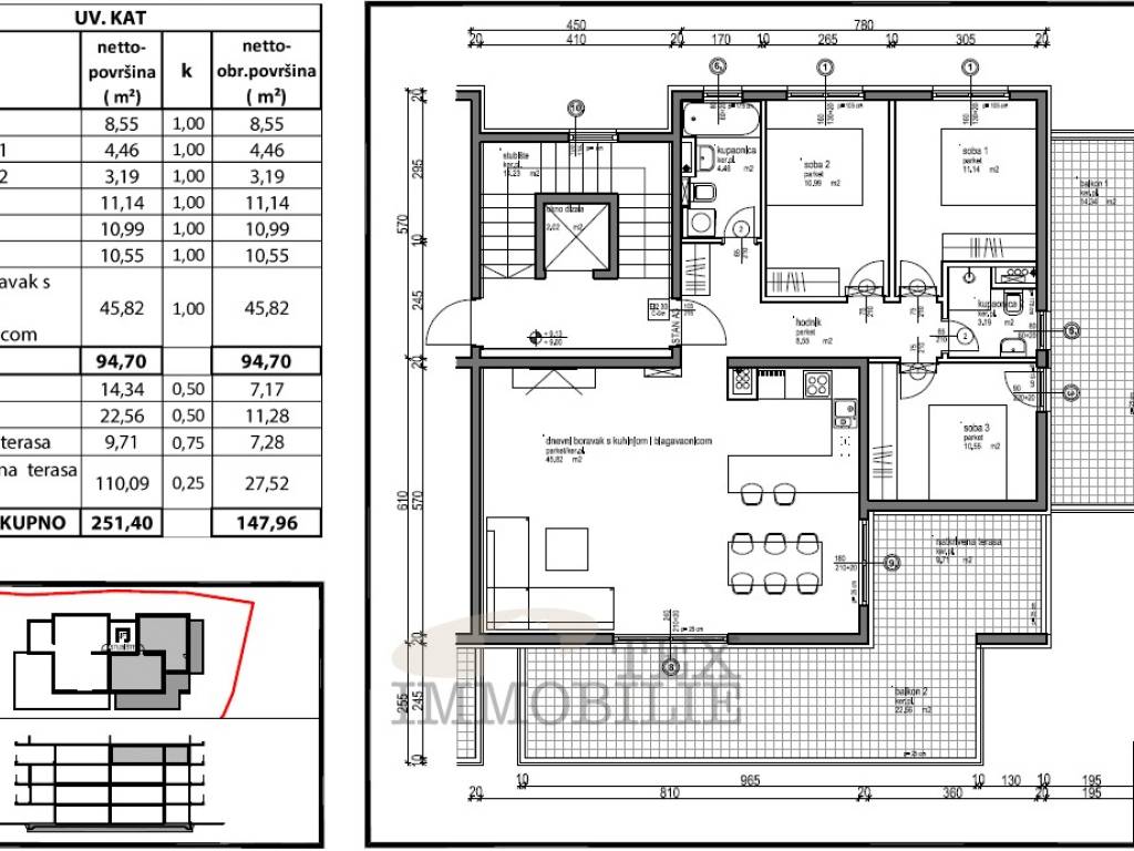
In einer ruhigen und gepflegten Gegend von Poreč, nur 1.400 Meter vom Meer entfernt, steht ein exklusives Penthouse mit drei Schlafzimmern und herrlichem Meerblick zum Verkauf. Es befindet sich im dritten Stock eines modernen und hochwertig gebauten Neubaus.

Die Gesamtfläche von 147,96 m² beeindruckt durch den funktionalen Grundriss, die ausgezeichnete Raumaufteilung und viel Tageslicht während des ganzen Tages. Es besteht aus einem Eingangsbereich, drei geräumigen und komfortablen Schlafzimmern, zwei elegant ausgestatteten Badezimmern sowie einem lichtdurchfluteten Wohnbereich, der mit der Küche und dem Esszimmer verbunden ist. Vom Wohnbereich gelangt man auf die überdachte Terrasse, ideal zum Entspannen und Genießen des Meerblicks. Ein besonderes Highlight ist die großzügige Dachterrasse von 110 m², die die Möglichkeit bietet, eine luxuriöse Outdoor-Oase mit Panoramablick zu gestalten.

Zur Wohnung gehören ein Parkplatz und ein Abstellraum, und das Gebäude ist mit einem Aufzug ausgestattet, was zusätzlichen Komfort und Barrierefreiheit bietet.

Die Wohnung verfügt über Klimaanlagen in allen Räumen zum Heizen und Kühlen, während im Wohnzimmer, in der Küche, im Essbereich und in den Badezimmern eine elektrische Fußbodenheizung installiert ist.

Die hervorragende Lage, die hochwertige Bauweise, das moderne Design, die großen Terrassen und der hohe Ausstattungsstandard machen diese Immobilie ideal als luxuriöses Familienheim, zur touristischen Vermietung oder als Investition mit hohem Potenzial.

ID CODE: 873400784

Tex Immobilie
Agent s licencom
Mob: 0989826003
Tel: 0994705455
E-mail: info@tex-immobilie.com
www.tex-immobilie.com
Merkmale
Art
Wohnung
Vertrag
Verkauf
Etage
3 etage
Stockwerke im Gebäude
3
Aufzug
Nein
Fläche
147 m²
Zimmer
4
Schlafzimmer
3
Badezimmer
2
Balkon
Nein
Terrasse
Nein
Garage, parkplätze (auto)
1 parkplatz(e)
Heizung
Unabhängige heizung, heißluft heizung
Preisinformationen
Preis
€ 450.000
Preis pro m²
3.061 €/m²
Energieeffizienz
  • Baujahr

    2025
  • Heizung

    Unabhängige heizung, heißluft heizung
  • Energieausweis

    Nicht klassifizierbar
Entdecken Sie jeden Winkel des Anwesens
+12
Zusätzliche Optionen

Inserenten kontaktieren

Oder