Einfamilienhaus Krk, Centar, Krk

€ 1.850.000
5+
311 m²
3+
Nein
Terrasse

Notiz

Anzeige aktualisiert am: 06.02.2026
Beschreibung

This description has been translated automatically and may not be accurate

Referenz: 3936

Umgebung von Krk, ein imposantes Haus mit herrlichem Blick auf das Meer!

Krk, Umgebung, Verkauf eines schönen modernen Hauses mit Swimmingpool und Panoramablick auf das Meer.

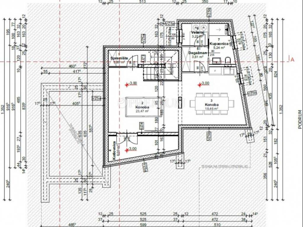
Das Haus besteht aus Keller, Erdgeschoss und 1. Stock mit einer Gesamtnettofläche von 311,4 m2.

Im Untergeschoss mit einer Nettofläche von 33,93 m2 befinden sich Nebenräume; 2 Tavernen, Heizraum, Abstellraum, Waschküche und Badezimmer.
Eine Innentreppe führt ins Erdgeschoss, das aus einem Eingangsbereich, einem großzügigen Wohnzimmer, einer Küche und einem Esszimmer besteht. Das Wohnzimmer führt zu einer überdachten Terrasse (13m2). Es gibt auch ein kleineres Studio-Apartment (35m2) im Erdgeschoss.
Im Obergeschoss befinden sich 3 Schlafzimmer, jedes mit eigenem Bad und Terrasse.

Der geplante Abschluss der Arbeiten ist 2026.
Es wird nach dem "schlüsselfertigen" System verkauft.
Das Haus ist mit einem modernen Projekt, hochwertiger Konstruktion, bei der nur die besten Materialien verwendet werden, hochwertiger ALU + PVC-Tischlerei, Klimaanlage in allen Zimmern,...
Ausgezeichnete, ruhige Lage, Rand einer Bauzone, 1,3 km vom Meer entfernt.

Wenn der Käufer eine Immobilie in gutem Zustand kaufen möchte, würde der Preis 950.000 € betragen.

ID CODE: 3936

Premium nekretnine Malinska
Mob: +385915474709
Tel: +38551858364
E-mail: info@premium-nekretnine.com
Merkmale
Art
Einfamilienhaus
Vertrag
Verkauf
Stockwerke im Gebäude
1
Aufzug
Nein
Fläche
311 m²
Zimmer
5+
Schlafzimmer
3
Badezimmer
3+
Balkon
Nein
Terrasse
Ja
Garage, parkplätze (auto)
2 parkplatz(e)
Heizung
Unabhängige heizung, heißluft heizung
Klimaanlage
Eigenständig, kalt / warm
Andere Merkmale
  • Alarmanlage
  • Gepanzerte Tür
Preisinformationen
Preis
€ 1.850.000
Preis pro m²
5.949 €/m²
Energieeffizienz
  • Heizung

    Unabhängige heizung, heißluft heizung
  • Klimatisierung

    Eigenständig, kalt / warm
  • Energieausweis

    Nicht klassifizierbar
Entdecken Sie jeden Winkel des Anwesens
+7
Zusätzliche Optionen

Inserenten kontaktieren

Oder