1/28


Einfamilienhaus Labin, Labin
€ 750.000
Anzeige aktualisiert am: 22.01.2026
Beschreibung
Referenz: 13
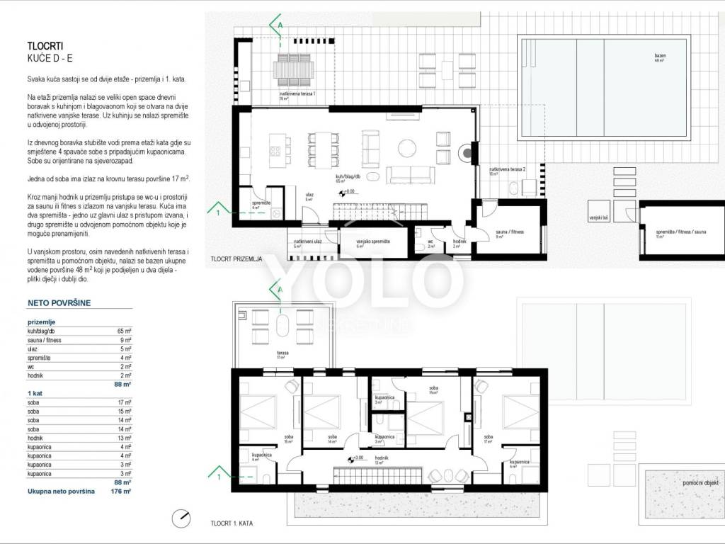
Haus Labin, 283m2
ID CODE: 13
Zoran Vukušić
Agent s licencom
Mob: +385 91 538 75 05
Tel: +385 91 538 75 05
E-mail: zoran@yolo.hr
www.yolo.hr
Merkmale
- Art
- Einfamilienhaus
- Vertrag
- Verkauf
- Stockwerke im Gebäude
- 1
- Aufzug
- Nein
- Fläche
- 283 m²
- Zimmer
- 5
- Schlafzimmer
- 4
- Badezimmer
- 3+
- Balkon
- Nein
- Terrasse
- Nein
- Garage, parkplätze (auto)
- 2 parkplatz(e)
- Heizung
- Unabhängige heizung, heißluft heizung
Preisinformationen
- Preis
- € 750.000
- Preis pro m²
- 2.650 €/m²
Energieeffizienz
Entdecken Sie jeden Winkel des Anwesens
Zusätzliche Optionen