1/9


Wohnung Dramalj, Crikvenica, Dramalj, Klanfari, Crikvenica
€ 585.000
5
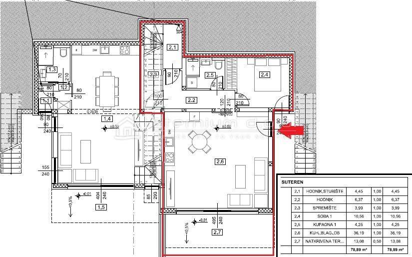
152 m²
2
0
Nein
Balkon
Terrasse
Anzeige aktualisiert am: 19.04.2026
Beschreibung
Referenz: MS-78
Wohnung Dramalj, Crikvenica, 152m2
ID CODE: MS-78
Mauro Slavić
Agent s licencom
Mob: +385 95 111 0 555
E-mail: mauro@eternium.hr
www.eternium.hr
Merkmale
- Art
- Wohnung
- Vertrag
- Verkauf
- Etage
- Erdgeschoss
- Stockwerke im Gebäude
- 4
- Aufzug
- Nein
- Fläche
- 152 m²
- Zimmer
- 5
- Schlafzimmer
- 4
- Badezimmer
- 2
- Balkon
- Ja
- Terrasse
- Ja
- Garage, parkplätze (auto)
- 2 parkplatz(e)
- Heizung
- Unabhängige heizung, heißluft heizung
- Klimaanlage
- Eigenständig, kalt / warm
Preisinformationen
- Preis
- € 585.000
- Preis pro m²
- 3.849 €/m²
Energieeffizienz
Entdecken Sie jeden Winkel des Anwesens
Zusätzliche Optionen