Vierzimmerwohnung Volosko, Opatija, Pobri, Volosko, Opatija

€ 1.310.000
4
201 m²
2
3
Ja
Balkon
Terrasse

Notiz

Anzeige aktualisiert am: 16.04.2026
Beschreibung

This description has been translated automatically and may not be accurate

Referenz: 3386

Wohnung Volosko, Opatija, 155,30m2

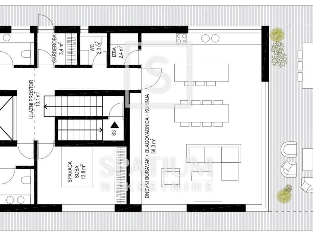
VOLOSKO, wir haben ein exklusives Penthouse mit einer Gesamtfläche von 201,47m2 mit Panoramablick auf das Meer. Es befindet sich im dritten Stock, der direkt mit einem Aufzug erreichbar ist, und besteht aus drei Schlafzimmern, einem Gäste-WC, einem Zimmer, einer Garderobe, zwei Badezimmern, einem Flur und einem „Open Space“-Wohnzimmer mit Küche und ein Esszimmer mit Zugang zu einer 140 m² großen Terrasse, auf der sich ein beheizter Pool mit Panoramablick auf die Kvarner-Bucht befindet. Dieser moderne Neubau zeichnet sich durch eine hervorragende Raumaufteilung und hochwertige Bauweise (ALU-Zimmerei, Wärmepumpen, erstklassige Bodenbeläge, Videoüberwachung...) aus. Den Mietern steht ein gemeinsamer Fitnessraum mit Spa-Bereich zur Verfügung. Zur Wohnung gehören drei Parkplätze in der Garage. In dieser Bauphase besteht die Möglichkeit, den Innenraum nach Ihren eigenen Wünschen anzupassen. Die Fertigstellung der Arbeiten ist für Ende 2025 geplant. OPATIJA, eine wunderschöne Küstenstadt an der Adria und berühmter Kurort des 19. Jahrhunderts, ist ein beliebtes Reiseziel für Touristen aus aller Welt. Die Stadt ist von einzigartigen Naturschönheiten umgeben. Es liegt unterhalb des Učka-Gebirges, das ein beliebtes Ziel für Bergsteiger und Wanderer ist. Es liegt am Übergang zwischen der grünen Region Istriens und der Küste und bildet eine perfekte Balance der Landschaft. Die Stadt bietet einen wunderschönen Blick auf das Meer und die nahegelegenen Inseln Krk und Cres. Es ist umgeben von charmanten historischen Städten mit engen Gassen und einer reichen Geschichte. Opatija ist mit einer Vielzahl ungewöhnlicher Sehenswürdigkeiten, zahlreichen Stränden und klarem Meer geschmückt und die Straßen der Stadt sind übersät mit Häusern interessanter Architektur und Villen aus der Habsburgerzeit. Für alle weiteren Informationen wenden Sie sich bitte vertrauensvoll an uns. Sanjin Latinčić +385912899599 sanjin@spatium.hr Spatium nekretnine +38551272903 info@spatium.hr

ID CODE: 3386

Sanjin Latinčić
Agent s licencom
Mob: +385 91 289 9599
Tel: +385 51 272 903
E-mail: sanjin@spatium.hr
www.spatium.hr
Merkmale
Art
Wohnung
Vertrag
Verkauf
Etage
3 etage
Stockwerke im Gebäude
3
Aufzug
Ja
Fläche
201 m²
Zimmer
4
Schlafzimmer
3
Badezimmer
2
Balkon
Ja
Terrasse
Ja
Garage, parkplätze (auto)
1 in lager/garage, 3 parkplatz(e)
Heizung
Unabhängige heizung, heißluft heizung
Klimaanlage
Eigenständig, kalt / warm
Andere Merkmale
  • Alarmanlage
Preisinformationen
Preis
€ 1.310.000
Preis pro m²
6.517 €/m²
Energieeffizienz
  • Baujahr

    2025
  • Heizung

    Unabhängige heizung, heißluft heizung
  • Klimatisierung

    Eigenständig, kalt / warm
  • Energieausweis

    Nicht klassifizierbar
Entdecken Sie jeden Winkel des Anwesens
+45
Zusätzliche Optionen

Inserenten kontaktieren

Oder