Bauland zur Verkauf

€ 103.000
784 m²

Notiz

Anzeige aktualisiert am: 22.01.2026
Beschreibung

This description has been translated automatically and may not be accurate

Referenz: ID06011

Umgebung von Barban, Baugrundstück mit Projekt

Dieses Baugrundstück befindet sich in einem ruhigen Dorf in der Nähe von Barban und eignet sich ideal für den Bau eines Einfamilienhauses oder einer Ferienvilla. Mit einer Fläche von 784 m² ist das Grundstück bereits mit allen erforderlichen Genehmigungen und dem Hauptprojekt ausgestattet, was bedeutet, dass der Bau sofort beginnen kann.

Die Lage bietet die perfekte Mischung aus Ruhe und Natur, während sie in der Nähe wichtiger Annehmlichkeiten liegt – nur 25 km von Pula und 12 km vom Meer in Krnica entfernt. Das Grundstück ist von Wiesen und Wäldern umgeben, und der Zugang erfolgt direkt von der asphaltierten Straße. In der Nähe befinden sich Einfamilienhäuser und Ferienhäuser, die für Ruhe sorgen und gleichzeitig eine gute Anbindung an die Region gewährleisten.

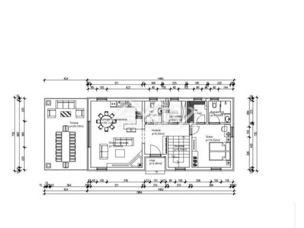
Das Projekt sieht ein Haus mit Erdgeschoss, erster Etage und Pool vor. Im Erdgeschoss befinden sich eine großzügige Terrasse von 30 m², ein Wohnzimmer und Essbereich in einem offenen Raum mit großen Glaswänden, die direkten Zugang zur Terrasse bieten, ein WC, ein Badezimmer, ein Hauswirtschaftsraum und ein Schlafzimmer. Im ersten Stock gibt es drei Schlafzimmer, jedes mit eigenem Bad, sowie eine Loggia von 12 m².

Das Grundstück ist eine ausgezeichnete Gelegenheit für Investoren, die nach einem Standort für den Bau einer Ferienimmobilie oder eines touristischen Unterkommens suchen, sowie für private Käufer, die ein Haus oder eine Ferienvilla in einer ruhigen, natürlichen Umgebung bauen möchten. Aufgrund der Nähe zu Pula und dem Meer bietet dieses Grundstück die ideale Balance zwischen Privatsphäre und der Nähe zu wichtigen Annehmlichkeiten, und das Projekt ermöglicht einen schnellen Baubeginn.

ID CODE: ID06011

Ivana Mohorović
Suradnik u procesu obuke
Mob: +385 95 370 44 46
Tel: +385 52 417 779
E-mail: ivana@matrixrealestate.hr
https://matrixrealestate.hr/

Matrix Real Estate
Voditelj ureda
Mob: +385 52 417 779
Tel: +385 52 417 779
E-mail: info@matrixrealestate.hr
https://matrixrealestate.hr/
Merkmale
Vertrag
Verkauf
Art
Bauland
Fläche
784 m²
Preisinformationen
Preis
€ 103.000
Preis pro m²
131 €/m²
Entdecken Sie jeden Winkel des Anwesens
+11
Zusätzliche Optionen

Inserenten kontaktieren

Oder