Mehrfamilienhaus Vrbnik, Vrbnik

€ 880.000
4
172 m²
3
Nein
Balkon
Terrasse

Notiz

Anzeige aktualisiert am: 22.01.2026
Beschreibung

This description has been translated automatically and may not be accurate

Referenz: 102565

Vrbnik, luxuriöse Doppelhaushälfte am Meer mit offenem Meerblick

Aus dem breiten Immobilienangebot der Agentur Stan Grad Immobilien sticht eine luxuriöse Doppelhaushälfte in der Region der Insel Krk hervor. Dieses schöne Haus befindet sich in einer sehr attraktiven Lage nahe dem Meer und dem Zentrum des Touristenzentrums Vrbnik. Das Luxushaus ist nicht insgesamt auf 2 Etagen gebaut. Das Haus umfasst eine Gesamtfläche von 172 m2. Im Erdgeschoss umfasst dieser Bereich die Eingangshalle, Abstellraum, Hauswirtschaftsraum, Waschküche, WC, Wohnzimmer und Küche mit Zugang zur Terrasse. Im Obergeschoss befinden sich 3 Etagen, 3 Badezimmer, Zugang zu einer nicht überdachten Terrasse und einem überdachten Balkon. Das Anwesen hat auch einen wunderschön angelegten Garten mit Swimmingpool, Sonnendeck und Pergola. Mehrere Autos können bequem auf dem genannten Grundstück des Anwesens geparkt werden. Außerdem ist es wichtig hervorzuheben, dass das Haus einen fantastischen Panoramablick auf das Meer hat. Das Objekt befindet sich in der ersten Bauphase, die geplante Fertigstellung der Arbeiten ist im Frühjahr 2024. Der Verkäufer des Hauses garantiert eine ordnungsgemäße Eigentumsdokumentation und einen schnellen Eigentumsübergang des Objekts. Die Agentur Stan Grad Immobilien bietet Ihnen alle notwendigen Dienstleistungen bei der Registrierung und Übertragung von Immobilien.

ID CODE: 102565

Ivan Radman
Direktor, agent
Mob: +385 91 605 1497
Tel: +385 51 677 809
Fax: +385 51 677 809
E-mail: ivan.radman@stangrad.hr
www.stangrad.hr
Merkmale
Art
Mehrfamilienhaus
Vertrag
Verkauf
Aufzug
Nein
Fläche
172 m²
Zimmer
4
Schlafzimmer
3
Badezimmer
3
Balkon
Ja
Terrasse
Ja
Garage, parkplätze (auto)
2 parkplatz(e)
Klimaanlage
Eigenständig, kalt / warm
Preisinformationen
Preis
€ 880.000
Preis pro m²
5.116 €/m²
Energieeffizienz
  • Baujahr

    2023
  • Klimatisierung

    Eigenständig, kalt / warm
  • Energieausweis

    Nicht klassifizierbar
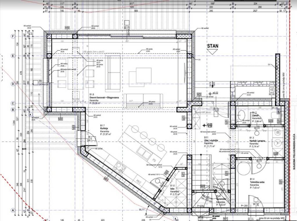
Grundriss
Entdecken Sie jeden Winkel des Anwesens
+3
Zusätzliche Optionen

Inserenten kontaktieren

Oder