Vierzimmerwohnung Kantrida, Rijeka, Turan - Kantrida - Costabella, Rijeka

€ 540.000
4
87 m²
1
Ja

Notiz

Anzeige aktualisiert am: 13.03.2026
Beschreibung

This description has been translated automatically and may not be accurate

Referenz: E3712

Rijeka, Kantrida, Wohnung 87 m2 im Neubau, Garage, Blick

Rijeka, Kantrida – Wohnung mit 87 m² in einem Neubau, Garage, Meerblick

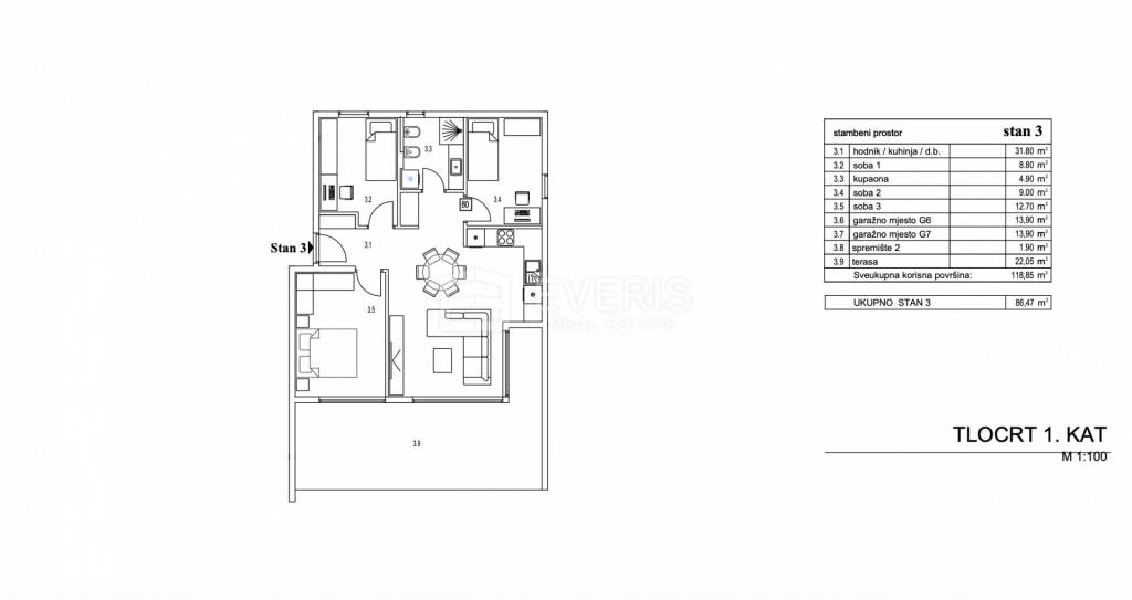
Die Immobilie befindet sich im ersten Stock eines Neubaus mit insgesamt fünf Wohneinheiten. Sie besteht aus: Flur, Küche mit Wohnzimmer, Badezimmer, drei Schlafzimmern mit einer Nettofläche von 67,10 m² sowie dem Nebenbereich der Wohnung: überdachte Terrasse mit einer Gesamt-Nettofläche von 22,05 m² (Wohnwertfläche 5,51 m²).

Zur Wohnung gehören zwei Tiefgaragenstellplätze im Untergeschoss mit Nettoflächen von jeweils 13,90 m² (Wohnwertfläche je 6,95 m²) sowie ein Abstellraum Nr. 2 im Untergeschoss mit einer Nettofläche von 1,90 m² (Wohnwertfläche 0,95 m²).

Die Wohnung ist nach Südwesten ausgerichtet, was reichlich natürliches Licht und einen wunderschönen Meerblick garantiert.

Technische Ausstattung:
Smart-Home-System (Heizung, Kühlung, Beleuchtung, Sicherheit)
Fußbodenheizung + Mitsubishi VRV-System
Holz-Aluminium-Fenster mit dreifach verglasten IZO-Scheiben und elektrischen Rollläden mit Insektenschutz
Hochwertige Keramik und Sanitäranlagen (Laufen, Geberit)
Eichenparkett
Einbruch- und Brandschutztüren
Aufzug direkt von der Garage zur Wohnung

Hinweis: Der Käufer zahlt keine 3 % Grunderwerbsteuer, da der Preis bereits die Mehrwertsteuer (MwSt.) enthält.

Bei Interesse oder weiteren Fragen stehen wir Ihnen gerne zur Verfügung.

ID CODE: E3712

Marin Modić
Agent s licencom
Mob: +385 (91) 5954 045
Tel: +385 (0)91 5954 045
E-mail: m.modic@everis.hr
https://nekretnine.everis.hr/
Merkmale
Art
Wohnung
Vertrag
Verkauf
Etage
1 etage
Aufzug
Ja
Fläche
87 m²
Zimmer
4
Schlafzimmer
3
Balkon
Nein
Terrasse
Nein
Garage, parkplätze (auto)
1 in lager/garage, 2 parkplatz(e)
Klimaanlage
Eigenständig, kalt / warm
Preisinformationen
Preis
€ 540.000
Preis pro m²
6.207 €/m²
Energieeffizienz
  • Klimatisierung

    Eigenständig, kalt / warm
  • Energieausweis

    Nicht klassifizierbar
Grundriss
Entdecken Sie jeden Winkel des Anwesens
+23
Zusätzliche Optionen

Inserenten kontaktieren

Oder