Dreizimmerwohnung Gaišće, Sesvete, Staro Brestje, Zagreb

€ 259.392
3
81 m²
1
0
Ja

Notiz

Anzeige aktualisiert am: 24.03.2026
Beschreibung

This description has been translated automatically and may not be accurate

Referenz: 3030

Gaišće, SESVETE, GAJIŠĆE, ERDGESCHOSS, 81 m², 3-ZIMMER-WOHNUNG, LOGGIA, GARTEN

Eine Dreizimmerwohnung steht im Erdgeschoss eines Wohngebäudes in einem ruhigen und gut angebundenen Teil von Sesvete, Gajišće, zum Verkauf.

Das Gebäude besteht aus einem Erdgeschoss und drei Obergeschossen. Die Wohnungsgrößen reichen von 77 m² bis 171 m².
Die Wohnungen verfügen über eine ausgezeichnete und funktionale Raumaufteilung, sind lichtdurchflutet und besitzen Loggien oder Balkone zur Nutzung im Freien.

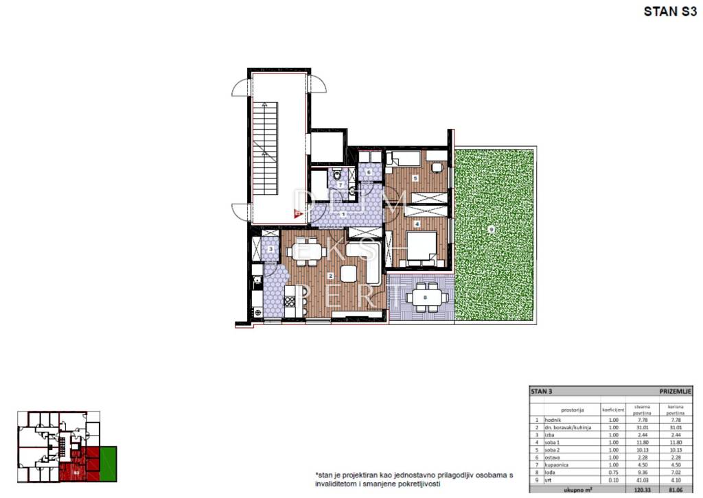
WOHNFLÄCHE:

69,94 m² (Netto-Wohnfläche, beheizt)

die Gesamtfläche der Wohnung beträgt 81,06 m² inklusive einer Loggia von 9,36 m² (berechnet nach entsprechenden Koeffizienten: 7,02 m²) und einem Garten von 41,03 m² (berechnet nach entsprechenden Koeffizienten: 4,10 m²)

DIE WOHNUNG BESTEHT AUS:

Flur (7,78 m²)

Badezimmer (4,50 m²)

Wohnzimmer mit Essbereich und Küche (31,01 m²)

Schlafzimmer (11,80 m²)

Schlafzimmer (10,13 m²)

Abstellraum (2,28 m²)

Speisekammer (2,44 m²)

Die Wohnung ist nach Norden und Westen ausgerichtet.

AUSSTATTUNG:

dreifach verglaste PVC-Fenster mit Isolierglas sowie elektrisch betriebene Rollläden

Stahlbetonkonstruktion des Gebäudes

Fassadendämmung mit einer Stärke von 15 cm

Keramikfliesen 1. Klasse

hochwertiger Eichenparkettboden, 12 mm stark

Badezimmer mit Sanitärausstattung (außer Waschbecken)

zentrale Gasetagenheizung (Heizkörper)

Klimaanlage im Wohnzimmer

einbruchhemmende Eingangstür

Video-Gegensprechanlage

Zusätzlich zur Wohnung kann ein Parkplatz erworben werden. Garagenstellplätze befinden sich im Untergeschoss des Gebäudes.

Das Gebäude ist für eine Erdbebenbeständigkeit von 8,0–9,0 auf der Richterskala ausgelegt.
Das Dach ist als flache Stahlbetonplatte ausgeführt, darüber befindet sich ein nicht begehbares Leichtdach mit geringer Neigung.

Lage:
Das Projekt befindet sich 700 m vom Zentrum von Sesvete entfernt, in ruhiger Umgebung direkt neben einem Wald. Das Viertel ist städtebaulich gut geplant, sodass alle wichtigen Einrichtungen in unmittelbarer Nähe liegen, darunter Grund- und weiterführende Schulen, Einkaufszentren (Kaufland, Konzum…), die Kroatische Post, ein Gesundheitszentrum, Banken und Apotheken.

KONTAKT:
Mirna Poljak
Tel: 01 2013 007
Tel: 091 5444 915
E-mail: mirna.poljak@domekspert.hr

KONTAKT:
Snježana Čabraja
Tel: 01 2013 007
Mob: +385 99 360 1634
E-mail: snjezana.cabraja@domekspert.hr

ID CODE: 3030
Merkmale
Art
Wohnung
Vertrag
Verkauf
Etage
Erdgeschoss
Stockwerke im Gebäude
3
Aufzug
Ja
Fläche
81 m²
Zimmer
3
Schlafzimmer
2
Badezimmer
1
Balkon
Nein
Terrasse
Nein
Heizung
Zentralheizung, fußbodenheizung
Klimaanlage
Eigenständig, kalt / warm
Andere Merkmale
  • Gepanzerte Tür
Preisinformationen
Preis
€ 259.392
Preis pro m²
3.202 €/m²
Energieeffizienz

Energieverbrauch

A

Grundriss
Entdecken Sie jeden Winkel des Anwesens
+8
Zusätzliche Optionen

Inserenten kontaktieren

Oder