Bauland zur Verkauf

€ 123.000
988 m²

Notiz

Anzeige aktualisiert am: 14.04.2026
Beschreibung

This description has been translated automatically and may not be accurate

Referenz: ID0362

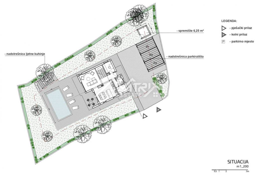
Gebiet Poreč, Baugrundstück mit Baugenehmigung

Gebiet Poreč, Baugrundstück mit aktiver Baugenehmigung für den Bau einer Villa mit Schwimmbad!

In einer ruhigen Siedlung in der Nähe von Poreč, 15 km vom Zentrum von Poreč und den nächsten Stränden entfernt, befindet sich dieses schöne Baugrundstück mit Projekt und Baugenehmigung für eine attraktive Villa mit einer Gesamtfläche von 180 m2, mit einer großer Swimmingpool, Sommerküche und überdachter Parkplatz im Garten.

Das Grundstück liegt am Rande des Dorfes und hat eine Gesamtfläche von 988 m2. Es dient ausschließlich Bau- und Wohnzwecken. Der Grundstückspreis beinhaltet ein Projekt und eine Baugenehmigung, die die Möglichkeit eines sofortigen Baus bietet.

Alle lebensnotwendigen Einrichtungen sind nur wenige Autominuten entfernt, was alle Vorteile eines Wohnens in den Vororten bietet, aber weit weg vom Trubel der Stadt.

Gelegenheit zum Bau eines Traumhauses oder für Investoren.

ID CODE: ID0362

Daniel Matković
Agent s licencom
Mob: +385 95 506 58 05
Tel: +385 52 417 779
E-mail: daniel@matrixrealestate.hr
https://matrixrealestate.hr/

Matrix Real Estate
Voditelj ureda
Mob: +385 52 417 779
Tel: +385 52 417 779
E-mail: info@matrixrealestate.hr
https://matrixrealestate.hr/
Merkmale
Vertrag
Verkauf
Art
Bauland
Fläche
988 m²
Preisinformationen
Preis
€ 123.000
Preis pro m²
124 €/m²
Grundriss
Entdecken Sie jeden Winkel des Anwesens
+9
Zusätzliche Optionen

Inserenten kontaktieren

Oder