Vierzimmerwohnung Sukošan, Sukošan

€ 769.400
4
143 m²
2
2
Nein
Terrasse

Notiz

Anzeige aktualisiert am: 22.01.2026
Beschreibung

This description has been translated automatically and may not be accurate

Referenz: 502

SUKOŠAN - Penthouse 1. Reihe am Meer - Dachterrasse - Garage


Zum Verkauf steht ein Penthouse mit großzügiger Dachterrasse und Meerblick - NEUBAU
Zum Verkauf steht eine Wohnung S3 im zweiten Stock eines Gebäudes mit 3 Wohneinheiten, in der ersten Reihe am Meer im Zentrum von Sukošan gelegen.

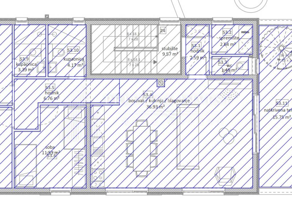
Die gesamte Nettofläche der Wohnung beträgt: 143,65 m² und besteht aus:

Innenwohnfläche (91,85 m²):
Wohnzimmer/Küche/Esszimmer – 36,93 m²
Flur – 6,76 m²
Raum 1 – 11,53 m²
Raum 2 – 11,13 m²
Raum 3 – 11,26 m²
Badezimmer 1 – 3,39 m²
Badezimmer 2 – 4,17 m²
WC – 1,45 m²
Lagerraum – 2,64 m²
Flur – 2,59 m²
Überdachte Terrasse 1 (berechnet 7,88 m²)
Fläche: 15,75 m² (Koeffizient 0,5)
Nicht überdachte Terrasse (berechnet 30,89 m²)
Fläche: 123,54 m² (Koeffizient 0,25)
Zugehörige Teile (berechnet 13,04 m²):
Garagenplatz – 10,62 m² (geschätzt)
Außenparkplatz - 2,42 m² (geschätzt)

Hauptvorteile:
Hervorragendes Penthouse mit drei Schlafzimmern und zwei Badezimmern
Geräumiger Wohnbereich mit Zugang zu einer überdachten Terrasse

Riesige Dachterrasse von 123,54 m² mit der Möglichkeit, eine Sommerküche, einen Whirlpool oder einen Loungebereich einzurichten

Garagenplatz + Außenstellplatz im Preis inbegriffen

Ideal für das Familienleben oder als Luxusinvestition zur touristischen Vermietung

Lage: Das Anwesen befindet sich in einer ruhigen Umgebung und gleichzeitig in einer attraktiven Lage in der Nähe des Meeres und aller notwendigen Annehmlichkeiten (Geschäfte, Restaurants, Promenaden).

Kontaktieren Sie uns für weitere Informationen, Grundrisse und Live-Besichtigungen:
Telefon: +385957355171
E-Mail: info@prestigeinvest.hr

ID CODE: 502

Ivana Ančić
Voditelj ureda
Mob: +385 95 73 55 171
Tel: +385 95 588 8082
E-mail: info@prestigeinvest.hr
www.prestigeinvest.hr
Merkmale
Art
Wohnung
Vertrag
Verkauf
Etage
2 etage
Stockwerke im Gebäude
2
Aufzug
Nein
Fläche
143 m²
Zimmer
4
Schlafzimmer
3
Badezimmer
2
Balkon
Nein
Terrasse
Ja
Garage, parkplätze (auto)
1 in lager/garage, 2 parkplatz(e)
Heizung
Unabhängige heizung, heißluft heizung
Klimaanlage
Eigenständig, kalt / warm
Preisinformationen
Preis
€ 769.400
Preis pro m²
5.380 €/m²
Energieeffizienz

Energieverbrauch

A+

Entdecken Sie jeden Winkel des Anwesens
+29
Zusätzliche Optionen

Inserenten kontaktieren

Oder