Einfamilienhaus Kloštar Ivanić, Kloštar Ivanić

€ 280.000
5+
445 m²
3
Nein
Balkon

Notiz

Anzeige aktualisiert am: 03.02.2026
Beschreibung

This description has been translated automatically and may not be accurate

Referenz: 5812

The offer includes two detached houses with accompanying outbuildings, located on a single plot of land with a total area of 1,817 m² in Kloštar Ivanić.

The plot comprises three residential units and two large garages that can be converted into commercial space.

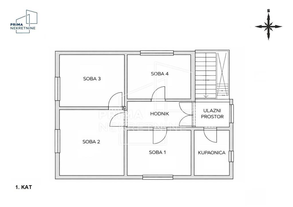
House 1
Ground floor: 70 m²
First floor: 68 m²
Attic: 46 m²
PVC windows and doors
Individual gas-fired central heating

House 2
Ground floor: garage 32 m², garage 33 m², storage room 5 m², storage room 12 m²
First floor: 80 m²
Attic: 65 m²
Wooden windows and doors
No heating installed
Outbuilding: 162 m²

Property advantages:
One plot offering multiple residential and commercial possibilities
Two large garages suitable for business use
Suitable for two families or multi-generational living
Excellent investment opportunity (rental or combined residential/business use)
Quiet location with good transport connections
The property is ideal for two families, multi-generational living, a family home with a business activity, or as a rental investment.

ID CODE: 5812
Merkmale
Art
Einfamilienhaus
Vertrag
Verkauf
Stockwerke im Gebäude
1
Aufzug
Nein
Fläche
445 m²
Zimmer
5+
Schlafzimmer
6
Badezimmer
3
Balkon
Ja
Terrasse
Nein
Garage, parkplätze (auto)
7 parkplatz(e)
Heizung
Zentralheizung, fußbodenheizung
Preisinformationen
Preis
€ 280.000
Preis pro m²
629 €/m²
Energieeffizienz
  • Heizung

    Zentralheizung, fußbodenheizung
  • Energieausweis

    Nicht klassifizierbar
Grundriss
Entdecken Sie jeden Winkel des Anwesens
+31
Zusätzliche Optionen

Inserenten kontaktieren

Oder