Dreizimmerwohnung Primošten, Primošten

€ 330.000
3
90 m²
1
0
Nein
Terrasse

Notiz

Anzeige aktualisiert am: 22.01.2026
Beschreibung

This description has been translated automatically and may not be accurate

Referenz: 190

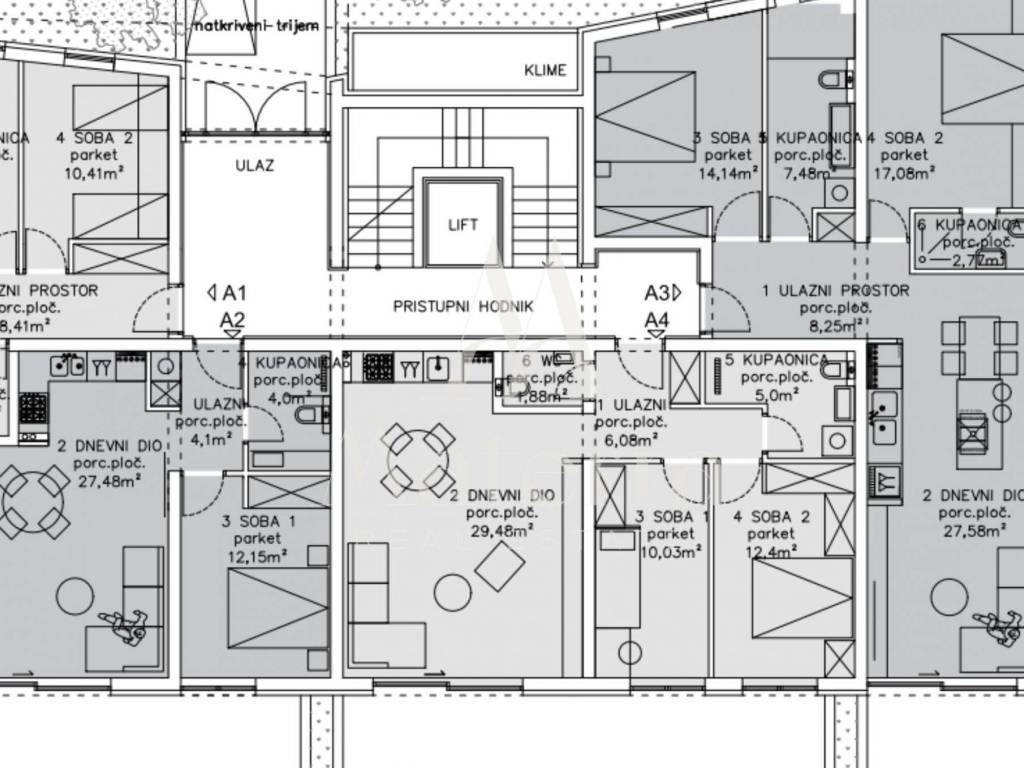
PRIMOŠTEN / MODERNER NEUBAU MIT AUSBLICK (90,88 m² – A4)

Die Wohnung A4 befindet sich im Erdgeschoss eines modernen Wohngebäudes und überzeugt durch ihren funktionalen Grundriss sowie großzügige Außenflächen. Die netto nutzbare Fläche beträgt 90,88 m².

Grundriss und Raumaufteilung:

Eingangsbereich – 6,08 m²

Schlafzimmer 1 – 10,3 m²

Schlafzimmer 2 – 12,4 m²

Badezimmer – 5 m²

WC – 1,88 m²

Wohnzimmer mit Küche und Essbereich – 29,48 m²

Überdachte Terrasse – 22,28 m²

Nicht überdachte Terrasse – 33,18 m²

Abstellraum – 3,54 m²

Garagenstellplatz – 13,5 m²

Von den Terrassen aus genießt man einen freien Blick aufs Meer, was den Wohnwert zusätzlich steigert und die Wohnung ideal für das ganzjährige Leben im mediterranen Ambiente macht.

Technische Merkmale und Ausstattung:

ALU-Fenster mit IZO-Verglasung, LOW-E-Beschichtung und Argonfüllung

Elektrische ALU-Rollläden mit Wärmedämmung und integrierten Insektenschutzgittern

Einbruch- und brandsichere ALU-Eingangstüren (schall- und wärmegedämmt)

Multi-Split-Inverter-Klimaanlagen mit verdeckten Inneneinheiten

Elektrische Fußbodenheizung in den Badezimmern

ETICS-Fassadensystem mit 10 cm Steinwolle-Dämmung

LED-Beleuchtung in allen Räumen

Vorbereitung für Elektroauto-Ladestationen in der Garage

Aufzug, der alle Etagen des Gebäudes verbindet

Das Gebäude bietet direkten Zugang zur Tiefgarage per Aufzug. Alle Wohnungen sind nach Süden ausgerichtet und bieten das ganze Jahr über viel natürliches Licht.

Verfügbare Wohnungen im Projekt:

A1 – 375.000 €

A2 – 265.000 €

A3 – 375.000 €

A4 – 330.000 €

B1 – 390.000 €

B3 – 320.000 €

C2 – 245.000 €

D1 – 790.000 €

D2 – 670.000 €

Lage und Entfernungen:

Zentrum von Primošten und Strand: 750 m

Marina Kremik: 2 km

Flughafen Split: ca. 35 km

Stadt Šibenik: ca. 25 km

Für weitere Informationen oder zur Vereinbarung eines Besichtigungstermins kontaktieren Sie uns gerne.

ID CODE: 190

Iva Kalabrić
Mob: +385995616651
E-mail: iva@materra.estate
www.materra.estate
Merkmale
Art
Wohnung
Vertrag
Verkauf
Etage
Erdgeschoss
Aufzug
Nein
Fläche
90 m²
Zimmer
3
Schlafzimmer
2
Badezimmer
1
Balkon
Nein
Terrasse
Ja
Garage, parkplätze (auto)
1 in lager/garage, 1 parkplatz(e)
Preisinformationen
Preis
€ 330.000
Preis pro m²
3.667 €/m²
Energieeffizienz
  • Baujahr

    2025
  • Energieausweis

    Nicht klassifizierbar
Entdecken Sie jeden Winkel des Anwesens
+11
Zusätzliche Optionen

Inserenten kontaktieren

Oder