Dreizimmerwohnung Čižići, Dobrinj, Dobrinj

€ 265.000
3
80 m²
1
1
Nein
Balkon

Notiz

Anzeige aktualisiert am: 22.01.2026
Beschreibung

This description has been translated automatically and may not be accurate

Referenz: 3-70245

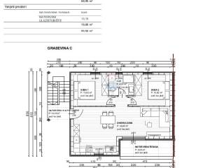
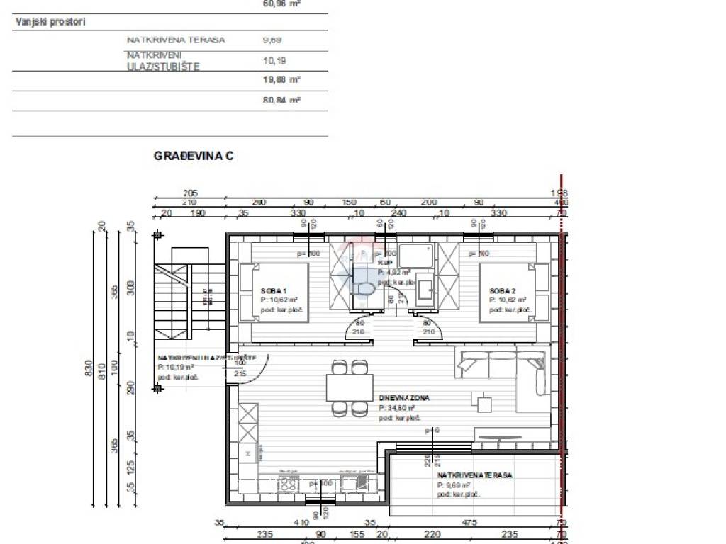
Wohnung Čižići, Dobrinj, 80,84m2

Das Remax Centar Nekretnina bietet eine 80 m² große Zwei-Zimmer-Wohnung an, die sich in einem Neubau in Čižići auf der Insel Krk befindet. Diese Immobilie bietet einen komfortablen und funktionalen Wohnraum in ruhiger Lage, ideal für diejenigen, die in der Nähe des Meeres und abseits des hektischen Treibens der Stadt sein möchten.

Die Wohnung umfasst:
-Wohnzimmer, das mit der Küche und dem Esszimmer verbunden ist
-Zwei Schlafzimmer
-Badezimmer mit Fußbodenheizung
-Überdachte Terrasse
-Gesicherter Parkplatz

Die Wohnung befindet sich in ruhiger Lage, nur wenige Gehminuten vom schönen Strand Čižići entfernt. Diese Gegend ist bekannt für ihr klares Wasser, den heilenden Schlamm in der nahegelegenen Bucht von Soline und die entspannte Atmosphäre, die ideal für einen Urlaub oder einen ganzjährigen Aufenthalt ist.

Klimatisierte Zimmer, die Lage der Immobilie und die Qualität der Bauweise garantieren langfristigen Komfort und Sicherheit.

Dieses Neubauprojekt befindet sich derzeit im Bau, und das voraussichtliche Ende der Arbeiten ist im Juli 2025.

ID CODE: 3-70245

Anita Đaković
Prodajni predstavnik
Mob: +385 91 641 0027
Tel: + 385 51 627 667
E-mail: a.dakovic@remax-crikvenica.hr
remax-centarnekretnina.com
Merkmale
Art
Wohnung
Vertrag
Verkauf
Etage
1 etage
Stockwerke im Gebäude
2
Aufzug
Nein
Fläche
80 m²
Zimmer
3
Schlafzimmer
2
Badezimmer
1
Balkon
Ja
Terrasse
Nein
Klimaanlage
Eigenständig, kalt / warm
Preisinformationen
Preis
€ 265.000
Preis pro m²
3.313 €/m²
Energieeffizienz
  • Baujahr

    2025
  • Klimatisierung

    Eigenständig, kalt / warm
  • Energieausweis

    Nicht klassifizierbar
Zusätzliche Optionen

Inserenten kontaktieren

Oder