1/4


Bauland zur Verkauf
€ 450.000
Anzeige aktualisiert am: 10.03.2026
Beschreibung
Referenz: 300441016-177
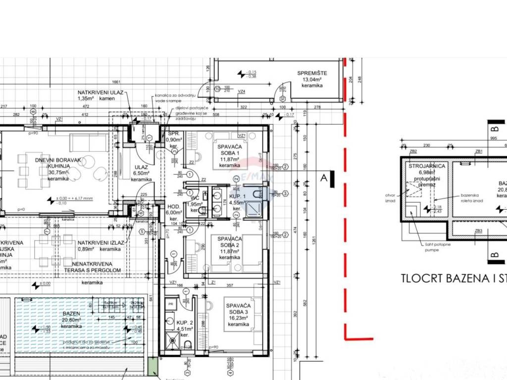
Bauland Umag, 585m2
ID CODE: 300441016-177
Suzana Ranić
Prodajni predstavnik
Mob: +385 91 641 0067
Tel: +385 52 670 295
E-mail: s.ranic@remax-istra.hr
www.remax-centarnekretnina.com
Merkmale
- Vertrag
- Verkauf
- Art
- Bauland
- Fläche
- 585 m²
Preisinformationen
- Preis
- € 450.000
- Preis pro m²
- 769 €/m²
Entdecken Sie jeden Winkel des Anwesens
Zusätzliche Optionen