Einfamilienhaus Pinezići, Krk, Vrh i Zapad, Krk

€ 700.000
5+
410 m²
3+
Nein
Balkon

Notiz

Anzeige aktualisiert am: 22.01.2026
Beschreibung

This description has been translated automatically and may not be accurate

Referenz: 300031068-545

Einfamilienhaus/Wohnhaus Pinezići, Krk, 380m2

Dieses freistehende Haus in Pinezići auf der Insel Krk bietet viel Platz und Komfort und ist ideal als Einfamilienhaus oder Investition für touristische Vermietung.

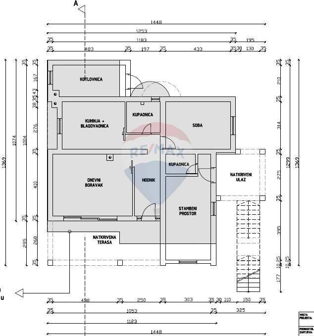
Das Haus besteht aus drei separaten Wohnungen, die jedem Mieter Privatsphäre bieten. Im Erdgeschoss befindet sich eine geräumige Wohnung mit zwei Schlafzimmern, Bad, Küche mit Esszimmer und Wohnzimmer, die zu einer geräumigen Terrasse führt. Auch im Erdgeschoss gibt es ein Studio-Apartment mit Bad.

Im ersten Stock des Hauses gibt es eine Wohnung mit zwei Schlafzimmern, ein Badezimmer, ein geräumiges Wohnzimmer mit Küche und Esszimmer und eine Terrasse mit einem schönen Meerblick. Im zweiten Stock gibt es vier weitere Schlafzimmer, Flur, Bad und Terrasse mit Panoramablick.

Der Garten ist mit verschiedenen mediterranen Pflanzen dekoriert, die ein Gefühl von Ruhe und Privatsphäre vermitteln. Es gibt genügend Platz für den Bau eines Schwimmbades, was die Attraktivität dieser Immobilie weiter erhöht.

Das Haus befindet sich in einer ruhigen und ruhigen Lage, nur 580 Meter vom Meer und dem Strand entfernt, was es ideal für diejenigen macht, die in der Nähe der Adria genießen möchten. Diese Immobilie ist eine ausgezeichnete Gelegenheit für diejenigen, die ein komfortables Zuhause oder eine Investition in touristische Vermietung auf der schönen Insel Krk suchen.

ID CODE: 300031068-545

Mirela Petrović
Prodajni predstavnik
Mob: +385 91 641 3300
Tel: +385 51 309 703
E-mail: m.petrovic@remax-krk.hr
remax-centarnekretnina.com
Merkmale
Art
Einfamilienhaus
Vertrag
Verkauf
Stockwerke im Gebäude
2
Aufzug
Nein
Fläche
410 m²
Zimmer
5+
Schlafzimmer
8
Badezimmer
3+
Balkon
Ja
Terrasse
Nein
Klimaanlage
Eigenständig, kalt / warm
Preisinformationen
Preis
€ 700.000
Preis pro m²
1.707 €/m²
Energieeffizienz
  • Baujahr

    1992
  • Klimatisierung

    Eigenständig, kalt / warm
  • Energieausweis

    Nicht klassifizierbar
Entdecken Sie jeden Winkel des Anwesens
+40
Zusätzliche Optionen

Inserenten kontaktieren

Oder