Mehrfamilienhaus Omišalj, Centar, Omišalj

€ 672.000
5
183 m²
3+
Nein
Balkon

Notiz

Anzeige aktualisiert am: 22.01.2026
Beschreibung

This description has been translated automatically and may not be accurate

Referenz: 300621003-1193

Moderne Villa mit Pool, Insel Krk

Villa zu verkaufen, in der Natur gelegenes Doppelhaus mit eigenem Garten und Pool.
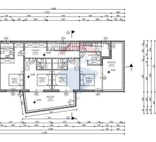
Die Villa befindet sich im nördlichen Teil des Gebäudes mit einem Eingang an der Nordwestfassade.
Sie betreten den Eingangsbereich, von dem aus Sie auf die Toilette, einen kleinen Flur und das Wohnzimmer, Küche u
Esszimmer. Ein kleinerer Flur führt zur Taverne. Die Taverne hat ein Fenster an der Nordwestfassade und eine Tür an
Südostfassade, durch die zur Außenterrasse führt, kann die Taverne als Arbeitszimmer oder Lager genutzt werden.
Es gibt auch eine Waschküche im Tavernenbereich.
Das Wohnzimmer, die Küche und der Essbereich nehmen den größten Teil des Erdgeschosses ein. Es hat gleitende Glasfelsen
südöstliche und nordöstliche Fassaden, durch die Ausgänge zur Außenterrasse. Im nordöstlichen Teil
Terrasse gibt es einen Swimmingpool. In Wohnzimmer, Küche und Esszimmer führt eine Treppe
im 1. Stock.
Im ersten Stock sind weitere Räume vom Flur aus zu erreichen. Das erste Schlafzimmer befindet sich im südlichen Teil des Flurs
Zimmer mit eigenem Bad. Das Badezimmer hat ein Fenster an der Nordwestfassade, während das Zimmer ein Fenster hat
Südostfassade.
Der zweite und dritte Raum liegen in der Mitte. Beide Zimmer haben ein eigenes Bad und Glas
Gleitfelsen an der Südostfassade, durch die der Zugang zum gemeinsamen Balkon erfolgt.
Am nördlichen Ende des Flurs befindet sich das vierte Zimmer. Das Zimmer hat ein eigenes Bad und Ankleideraum und ein Fenster nach Südosten
Fassade, die mit einer Glasschiebewand an der Nordostfassade verbunden ist, durch die der Zugang erfolgt
Nordbalkon.
Das Meer und der Strand sind 1000 Meter entfernt.
Der Agent befindet sich auf der Insel Krk unter der Telefonnummer +385916413300 oder per E-Mail: m.petrovic@remax-krk.hr

ID CODE: 300621003-1193

Mirela Petrović
Prodajni predstavnik
Mob: +385 91 641 3300
Tel: +385 51 309 703
E-mail: m.petrovic@remax-krk.hr
remax-centarnekretnina.com
Merkmale
Art
Mehrfamilienhaus
Vertrag
Verkauf
Stockwerke im Gebäude
2
Aufzug
Nein
Fläche
183 m²
Zimmer
5
Schlafzimmer
4
Badezimmer
3+
Balkon
Ja
Terrasse
Nein
Klimaanlage
Eigenständig, kalt / warm
Preisinformationen
Preis
€ 672.000
Preis pro m²
3.672 €/m²
Energieeffizienz

Energieverbrauch

A+

Entdecken Sie jeden Winkel des Anwesens
+21
Zusätzliche Optionen

Inserenten kontaktieren

Oder