Vierzimmerwohnung Poreč, Luka, Parenzo

€ 505.000
4
125 m²
3
Nein
Terrasse

Notiz

Anzeige aktualisiert am: 05.02.2026
Beschreibung

This description has been translated automatically and may not be accurate

Referenz: 17

Poreč, Wohnung mit Meerblick, nur wenige Minuten vom Strand entfernt

Zum Verkauf steht eine moderne, mehrstöckige Wohnung in einem neu fertiggestellten Wohngebäude. Nur 800 Meter vom Strand und etwa 2 km vom Zentrum von Poreč entfernt, bietet sie eine ruhige Lage mit schneller Anbindung an alle wichtigen Einrichtungen.

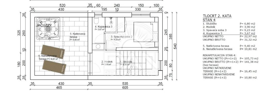
Die Wohnung verfügt über einen eigenen Eingang. Im Erdgeschoss befinden sich ein Eingangsbereich, Küche, Wohn- und Esszimmer, ein zusätzliches WC sowie ein Abstellraum unter der Innentreppe. Große Glasfronten führen auf eine überdachte Terrasse und weiter in einen gepflegten Garten von ca. 50 m² — ideal zum Entspannen im Freien.

Über die Innentreppe gelangt man in den ersten Stock, wo sich zwei Schlafzimmer befinden, jeweils mit eigenem Badezimmer und Zugang zu einer überdachten Terrasse von 6,34 m². Das zweite Stockwerk besteht aus dem Hauptschlafzimmer mit eigenem Bad und einer teilweise überdachten Terrasse mit schönem Meerblick.

Die gesamte Wohnung ist mit elektrischer Fußbodenheizung ausgestattet, und in jedem Raum befindet sich eine Klimaanlage, was ganzjährigen Komfort garantiert.

Dank der hervorragenden Lage in Meeresnähe eignet sich die Immobilie sowohl für Familien als auch als touristische Investition.

Zögern Sie nicht — kontaktieren Sie uns und sichern Sie sich Ihr neues Zuhause in Poreč!

ID CODE: 17

Vedran Jambrešić
Agent s licencom
Mob: +385958018792
E-mail: vedran@dan-realestate.hr
www.dan-realestate.hr
Merkmale
Art
Wohnung
Vertrag
Verkauf
Stockwerke im Gebäude
3
Aufzug
Nein
Fläche
125 m²
Zimmer
4
Schlafzimmer
3
Badezimmer
3
Balkon
Nein
Terrasse
Ja
Garage, parkplätze (auto)
2 parkplatz(e)
Klimaanlage
Eigenständig, kalt / warm
Preisinformationen
Preis
€ 505.000
Preis pro m²
4.040 €/m²
Energieeffizienz
  • Baujahr

    2025
  • Klimatisierung

    Eigenständig, kalt / warm
  • Energieausweis

    Nicht klassifizierbar
Grundriss
Entdecken Sie jeden Winkel des Anwesens
+16
Zusätzliche Optionen

Inserenten kontaktieren

Oder