Zweizimmerwohnung neu, Vodice

€ 180.000
2
61 m²
1
Nein
Terrasse

Notiz

Anzeige aktualisiert am: 05.05.2026
Beschreibung

This description has been translated automatically and may not be accurate

Referenz: S2277

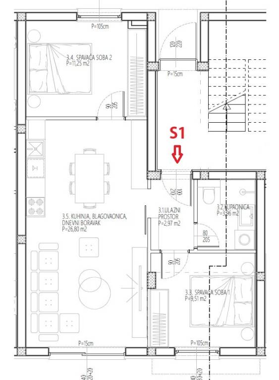
Vodice – Zweizimmerwohnung S1, Erdgeschoss mit Garten

Zum Verkauf steht ein modernes Wohngebäude im Bau mit insgesamt 12 Wohnungen, gelegen an einer ruhigen Lage in Vodice, 1100 m vom Strand und 1600 m vom Stadtzentrum entfernt.
Das Projekt wird nach den neuesten Baustandards ausgeführt, unter Verwendung hochwertiger Materialien und moderner Ausstattung, was eine hohe Energieeffizienz und langfristigen Wert garantiert.

Zur Ausstattung gehören:

- PVC-Fenster mit Dreifachverglasung


- Fliegengitter an allen Öffnungen


- Keramik in Wohnzimmer und Küche


- Laminat in den Schlafzimmern


- Klimaanlage (3,5 kW) im Wohnzimmer


- Fußbodenheizung in den Badezimmern


- Glasgeländer auf den Terrassen


- Anschlussleistung 5,75 kW pro Wohnung


- Dämmsysteme von Sika und Mapei



Das Gebäude befindet sich im Mehrwertsteuersystem, was bedeutet, dass Käufer keine Grunderwerbssteuer zahlen müssen.

Kaufmöglichkeit über Wohnungsbaukredit

Für jede Wohnung ist ein Parkplatz gesichert, mit der Möglichkeit, einen zusätzlichen Parkplatz zum Preis von 5.000 € zu erwerben.

WOHNUNG S1 hat 61,19 m2 Nettowohnfläche inklusive der Berechnungskoeffizienten und besteht aus: Eingang, 2 Schlafzimmern, Badezimmer, Küche und Essbereich, Wohnzimmer, Terrasse, Garten ca. 37 m2 sowie 1 Parkplatz. Der Preis beträgt 180.000 € (der Käufer ist von der Zahlung der 3% Grunderwerbssteuer befreit).

WEITERE VERFÜGBARE EINHEITEN IM OBJEKT:

ERDGESCHOSS:

GESCHÄFTSRAUM 1 hat 71,05 m2 Nettonutzfläche inklusive der Berechnungskoeffizienten und besteht aus: Eingang, 2 Schlafzimmern, Badezimmer, Küche und Essbereich, Wohnzimmer, Terrasse, Garten ca. 100 m2 sowie 1 Parkplatz. Der Preis beträgt 205.000 € (der Käufer ist von der Zahlung der 3% Grunderwerbssteuer befreit).

GESCHÄFTSRAUM 2 VERKAUFT

WOHNUNG S2 VERKAUFT

ERSTES OBERGESCHOSS:

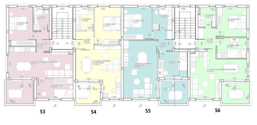
WOHNUNG S3 VERKAUFT

WOHNUNG S4 VERKAUFT

WOHNUNG S5 hat 63,72 m2 Nettowohnfläche inklusive der Berechnungskoeffizienten und besteht aus: Eingang, 2 Schlafzimmern, Badezimmer, Küche und Essbereich, Wohnzimmer, Terrasse sowie 1 Parkplatz. Der Preis beträgt 185.000 € (der Käufer ist von der Zahlung der 3% Grunderwerbssteuer befreit).

WOHNUNG S6 hat 60,76 m2 Nettowohnfläche inklusive der Berechnungskoeffizienten und besteht aus: Eingang, 2 Schlafzimmern, Badezimmer, Küche und Essbereich, Wohnzimmer, Terrasse sowie 1 Parkplatz. Der Preis beträgt 200.000 € (der Käufer ist von der Zahlung der 3% Grunderwerbssteuer befreit).

ZWEITES OBERGESCHOSS:

WOHNUNG S7 hat 62,33 m2 Nettowohnfläche inklusive der Berechnungskoeffizienten und besteht aus: Eingang, 2 Schlafzimmern, Badezimmer, Küche und Essbereich, Wohnzimmer, Terrasse sowie 1 Parkplatz. Der Preis beträgt 175.000 € (der Käufer ist von der Zahlung der 3% Grunderwerbssteuer befreit).

WOHNUNG S8 hat 51,62 m2 Nettowohnfläche inklusive der Berechnungskoeffizienten und besteht aus: Eingang, 1 Schlafzimmer, Badezimmer, Küche und Essbereich, Wohnzimmer, Terrasse sowie 1 Parkplatz. Der Preis beträgt 150.000 € (der Käufer ist von der Zahlung der 3% Grunderwerbssteuer befreit).

WOHNUNG S9 hat 63,72 m2 Nettowohnfläche inklusive der Berechnungskoeffizienten und besteht aus: Eingang, 2 Schlafzimmern, Badezimmer, Küche und Essbereich, Wohnzimmer, Terrasse sowie 1 Parkplatz. Der Preis beträgt 185.000 € (der Käufer ist von der Zahlung der 3% Grunderwerbssteuer befreit).

WOHNUNG S10 hat 60,76 m2 Nettowohnfläche inklusive der Berechnungskoeffizienten und besteht aus: Eingang, 2 Schlafzimmern, Badezimmer, Küche und Essbereich, Wohnzimmer, Terrasse sowie 1 Parkplatz. Der Preis beträgt 200.000 € (der Käufer ist von der Zahlung der 3% Grunderwerbssteuer befreit).
Merkmale
Art
Wohnung | Durchschnittliche immobilienklasse
Vertrag
Verkauf
Stockwerke im Gebäude
2
Aufzug
Nein
Fläche
61 m²
Zimmer
2
Schlafzimmer
2
Badezimmer
1
Balkon
Nein
Terrasse
Ja
Heizung
Unabhängige heizung, fußbodenheizung
Klimaanlage
Eigenständig
Andere Merkmale
  • Gepanzerte Tür
Preisinformationen
Preis
€ 180.000
Preis pro m²
2.951 €/m²
Energieeffizienz
  • Baujahr

    2026
  • Zustand

    Neu / Im Bau
  • Heizung

    Unabhängige heizung, fußbodenheizung
  • Klimatisierung

    Eigenständig
Grundriss
Entdecken Sie jeden Winkel des Anwesens
+9
Zusätzliche Optionen

Inserenten kontaktieren

Oder