Bauland zur Verkauf

€ 580.000
1.000 m²

Notiz

Anzeige aktualisiert am: 11.02.2026
Beschreibung

This description has been translated automatically and may not be accurate

Referenz: 125-93

Bauland Vrbnik, 1.000m2

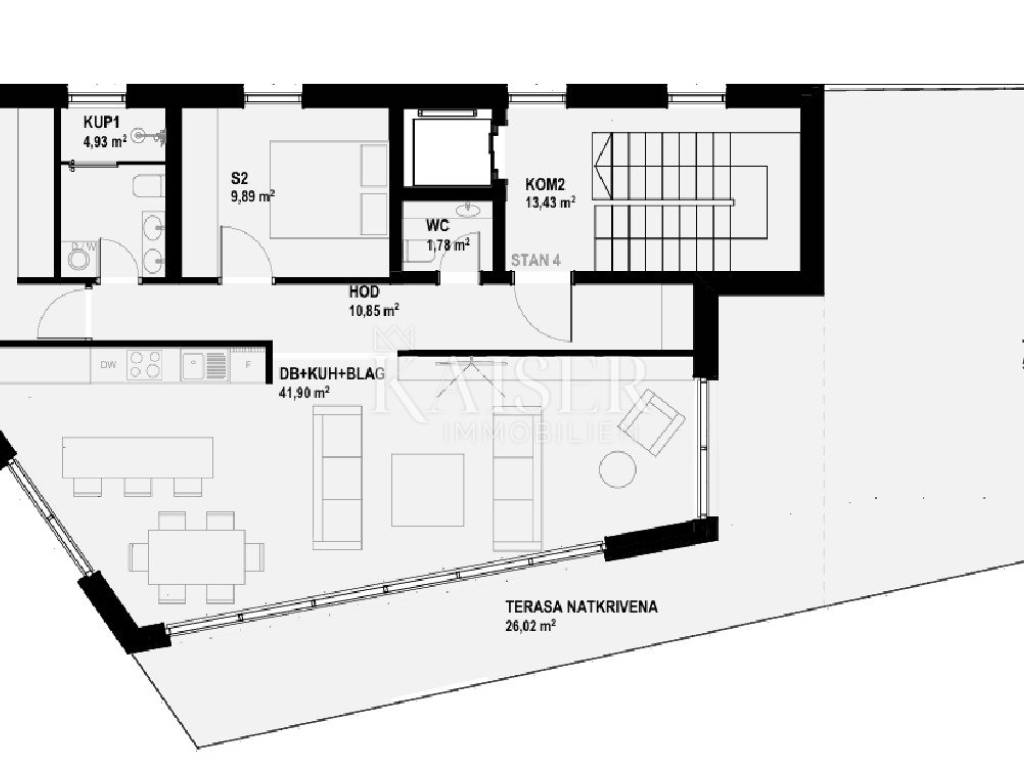
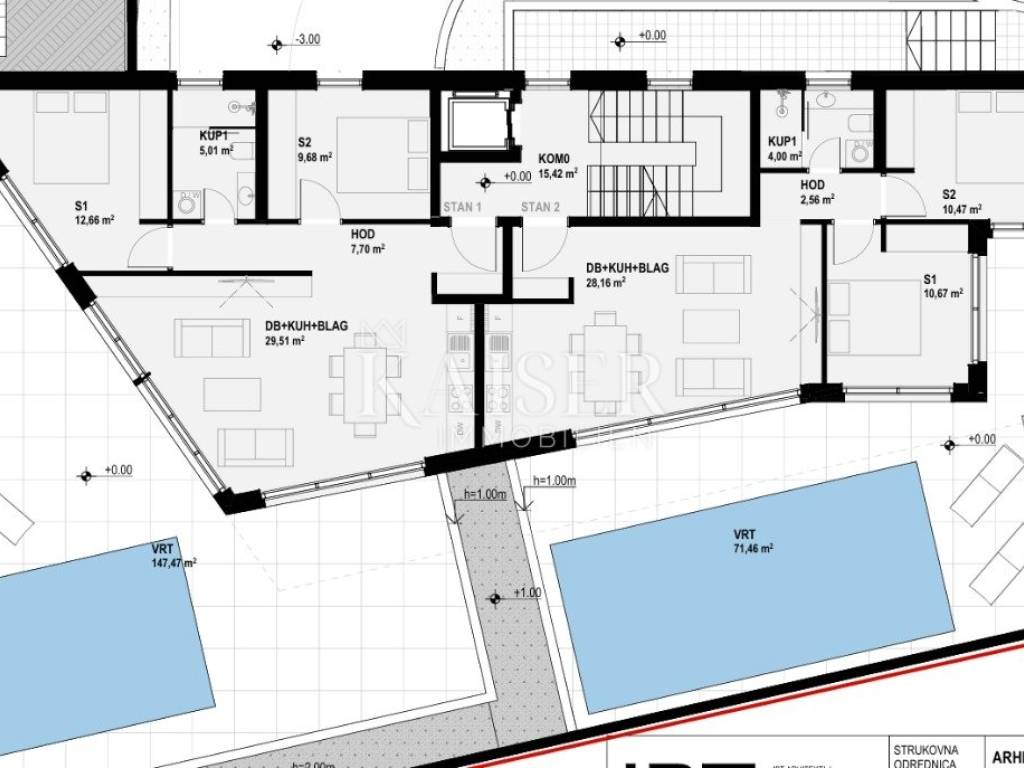
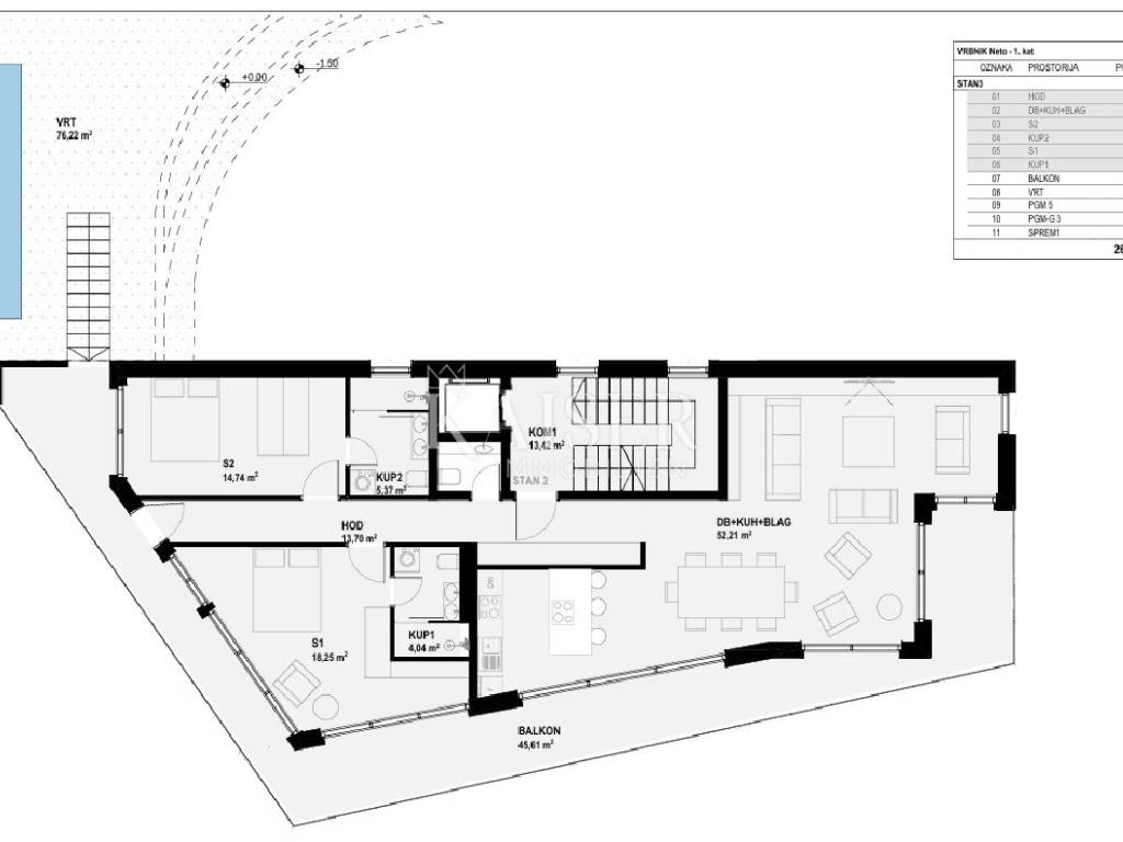
Kaiser Immobilien präsentiert den Verkauf eines Baugrundstücks mit einem Konzeptentwurf für ein modernes Gebäude mit 4 Wohnungen in Vrbnik auf der Insel Krk. In Vrbnik auf der Insel Krk steht ein Baugrundstück 500 m vom Meer entfernt, in einem ruhigen Teil von Vrbnik, umgeben von Natur, mit Meerblick und einem Konzeptentwurf für ein modernes Mehrfamilienhaus mit 4 Wohnungen zum Verkauf. Bei der Gestaltung des Gebäudes wurde der Schwerpunkt auf Luxus, Privatsphäre und Komfort gelegt. Im Erdgeschoss befinden sich zwei geräumige Wohnungen, jede mit eigenem Garten und privatem Pool. Die restlichen beiden Wohnungen befinden sich im ersten und zweiten Stock des Gebäudes. Die Wohnung im 1. OG verfügt zusätzlich über einen eigenen Swimmingpool. Erdgeschosswohnung 1 – Luxuriöse Wohnung mit privatem Pool und großem Garten Diese exklusive Erdgeschosswohnung bietet 78,98 m² Wohnfläche, dazu 147,47 m² privaten Garten und einen 32 m² großen Swimmingpool sowie einen eigenen Parkplatz. Dieses exklusive Apartment befindet sich in einem modernen Apartmentgebäude in Vrbnik auf der Insel Krk und bietet die perfekte Mischung aus Privatsphäre, Luxus und Komfort. Mit 78,98 m² Innenfläche, einem 147,47 m² großen Garten und einem 32 m² großen Swimmingpool bietet es eine einzigartige Gelegenheit, den mediterranen Lebensstil zu genießen. Die Wohnung besteht aus einem großzügigen Wohnzimmer mit Küche und Essbereich (28,51 m²), das offen gestaltet ist, was für viel Tageslicht und ein angenehmes Raumgefühl sorgt. Hinzu kommen zwei Schlafzimmer (12,66 m² und 9,68 m²), ein elegant eingerichtetes Badezimmer (5,01 m²) und ein funktionaler Flur (7,70 m²). Zusätzlichen Platz bietet eine 15,42 m² große Kammer, die sich ideal als Lager oder Arbeitszimmer eignet. Das Besondere an dieser Wohnung ist der große private Garten mit 147,47 m², der zum Entspannen, Sonnenbaden oder geselligen Beisammensein mit Familie und Freunden einlädt. Der Garten umfasst einen 32 m² großen Swimmingpool und schafft somit eine wahre private Oase. Die Wohnung besteht aus: Wohnzimmer mit Küche und Esszimmer (28,51 m²) Zwei Schlafzimmer (12,66 m² und 9,68 m²) Modern eingerichtetes Badezimmer (5,01 m²) Flur (7,70 m²) Abstellraum/Lagerraum (15,42 m²) Gesamtfläche der Wohnung mit Garten: 258,45 m² Wohnung 2 im Erdgeschoss – Moderne Wohnung mit Garten und privatem Pool Diese elegante Wohnung liegt im Erdgeschoss eines modernen Gebäudes und verfügt über 51,06 m² Innenfläche, einen 71,46 m² großen Garten und einen 25 m² großen Swimmingpool. In einem exklusiven Apartmentgebäude in Vrbnik auf der Insel Krk befindet sich dieses elegante Apartment, ideal für alle, die ein komfortables und funktionales Zuhause mit privatem Außenbereich suchen. Die Wohnung verfügt über 51,06 m² Innenfläche und wird von einem 71,46 m² großen Garten und einem 25 m² großen privaten Swimmingpool begleitet, die den perfekten Rahmen zum Entspannen bieten. Der Hauptbereich der Wohnung besteht aus einem Wohnzimmer mit Küche und Esszimmer (23,16 m²), das sich durch eine offene Raumaufteilung und Zugang zu einer Außenterrasse auszeichnet. Hinzu kommen zwei großzügige Schlafzimmer (10,87 m² und 10,47 m²), ein modernes Bad (4,00 m²) sowie ein funktionaler Flur (2,56 m²). Der 71,46 m² große Außenbereich umfasst einen 25 m² großen privaten Swimmingpool, ideal, um die Sommermonate zu genießen. Zur Wohnung gehört ein gesicherter Parkplatz und die Lage bietet Ruhe und Privatsphäre bei gleichzeitiger Nähe zu allen wichtigen Annehmlichkeiten. Die Wohnung besteht aus: Wohnzimmer mit Küche und Esszimmer (23,16 m²) Zwei Schlafzimmer (10,87 m² und 10,47 m²) Modern eingerichtetes Badezimmer (4,00 m²) Flur (2,56 m²) Gesamtfläche der Wohnung mit Garten: 147,52 m² Exklusive Wohnung mit privatem Garten und Swimmingpool im 1. Stock Im ersten Stock einer modern gestalteten Villa befindet sich eine luxuriöse Wohnung mit beeindruckenden 264,16 m² (berechnete Fläche 152 m²). Beim Betreten der Wohnung werden Sie von einem geräumigen Flur (13,70 m²) begrüßt, der zum Herzstück der Wohnung führt – dem Wohnzimmer, das mit der Küche und dem Esszimmer verbunden ist (52,21 m²). Dieser offene und helle Raum vermittelt ein Gefühl von Großzügigkeit. Große Glaswände sorgen für reichlich Tageslicht und öffnen sich zu einem wunderschönen 45,61 m² großen Balkon mit Blick auf das Meer und die Natur. Die Wohnung verfügt über zwei gemütliche Schlafzimmer (18,25 m² und 14,74 m²), zwei elegant eingerichtete Badezimmer (4,04 m² und 5,37 m²) die zusätzlich für einen hohen Komfort sorgen. Ein besonderer Vorteil dieser Wohnung ist der private Garten (76,22 m²), der zukünftigen Eigentümern die Möglichkeit bietet, eine eigene grüne Ecke zu haben und in Kombination mit dem Swimmingpool den unbezahlbaren Luxus des Lebens im Freien bietet. Darüber hinaus sind zur Wohnung ein Abstellraum (8,92 m²) und zwei PKW-Stellplätze gehörend enthalten, was die Zweckmäßigkeit und den Wert der Immobilie zusätzlich steigert. Es besteht aus: Flur – 13,70 m² Wohnzimmer + Küche + Esszimmer (Wohnzimmer + Küche + Esszimmer) – 52,21 m² Schlafzimmer 1 – 18,25 m² Schlafzimmer 2 – 14,74 m² Badezimmer 1 – 4,04 m² Badezimmer 2 – 5,37 m² Balkon – 45,61 m² Garten – 76,22 m² Abstellraum – 8,92 m² Stellplatz 1 – 12,51 m² Stellplatz 2 – 12,59 m² Gesamtfläche der Wohnung: 264,16 m² Berechnungsfläche (mit Koeffizienten): 152,00 m² Luxuriöse Wohnung im 2. Stock mit großzügiger Terrasse Die Wohnung erstreckt sich insgesamt über 209,51 m² (Berechnungsfläche 125,84 m²) und bietet sorgfältig gestaltete Räume, die allen Ansprüchen an modernes Wohnen gerecht werden. Beim Betreten der Wohnung werden Sie von einem Flur (10,85 m²) begrüßt, der zu einem geräumigen Wohnzimmer mit Küche und Esszimmer (41,90 m²) führt. Dieser offene Raum ist dank großer Glaswände, die Zugang zu einer überdachten Terrasse (26,02 m²) bieten, mit natürlichem Licht gefüllt. Die Wohnung verfügt über zwei komfortable Schlafzimmer (13,28 m² und 9,89 m²), ein 4,93 m² großes Badezimmer mit modernen Sanitäranlagen, während sich für mehr Komfort eine zusätzliche Toilette (1,78 m²) in der Nähe des Eingangs befindet. Ein besonderer Pluspunkt dieser Wohnung ist die große Terrasse (50,91 m²), die unglaubliche Möglichkeiten für das Leben im Freien bietet – sei es zum Sonnenbaden, um Zeit mit Familie und Freunden zu verbringen oder um Ihre eigene grüne Oase zu schaffen. Zu den weiteren Vorteilen gehören ein Lagerraum (10,09 m²) und gesicherte Parkplätze (pgm1 12,51 m², pgm 2 12,51 m² und pgm-g 4 -14,84 m²). Vrbnik liegt an der Ostküste der Insel Krk und ist bekannt für seine reiche Geschichte, die engen Gassen und die wunderschönen Strände rund um Vrbnik, wie den Strand Potovošće. Entfernungen von Vrbnik vom Flughafen und einigen größeren Städten: Flughafen Rijeka (Insel Krk): 29,5 km, Rijeka: ca. 50 km. Zagreb: ca. 200 km. Zadar: ca. 251 km. Diese Immobilie stellt eine hervorragende Investitionsmöglichkeit dar, entweder für den Bau und Verkauf einzelner Wohnungen oder für die touristische Vermietung. Alle für den Bau erforderlichen Unterlagen und Genehmigungen wurden eingeholt und bezahlt. Die Käuferprovision wird beim ersten Rechtsabschluss fällig und beträgt 3% zzgl. MwSt. Für weitere Informationen und zur Vereinbarung einer Besichtigung kontaktieren Sie uns. Telefon: +385992510230 E-Mail: marijana.papic@kaiser-immobilien.hr

ID CODE: 125-93

Marijana Papić
Agent posredovanja u prometu nekretnina
Mob: +385992510230, +385995677888
E-mail: marijana.papic@kaiser-immobilien.hr
www.kaiser-immobilien.hr
Merkmale
Vertrag
Verkauf
Art
Bauland
Fläche
1.000 m²
Preisinformationen
Preis
€ 580.000
Preis pro m²
580 €/m²
Entdecken Sie jeden Winkel des Anwesens
+8
Zusätzliche Optionen

Inserenten kontaktieren

Oder