Einfamilienhaus Vodice, Vodice

€ 650.000
4
157 m²
3
Nein

Notiz

Anzeige aktualisiert am: 17.02.2026
Beschreibung

This description has been translated automatically and may not be accurate

Referenz: 137-51

VODICE – LUXUSVILLA MIT SWIMMINGPOOL UND GERÄUMIGEN TERRASSEN

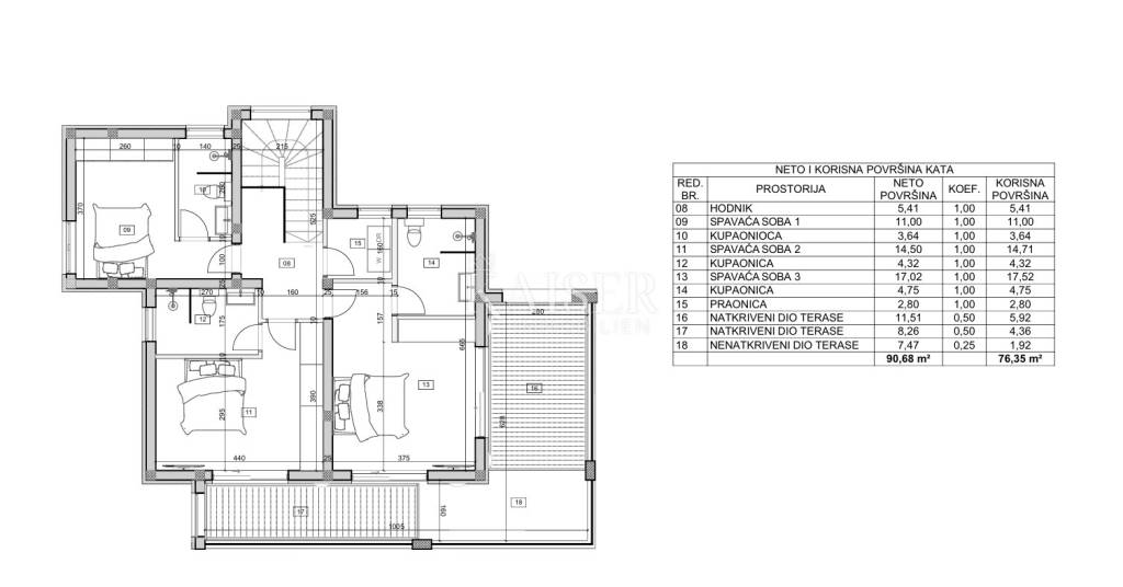
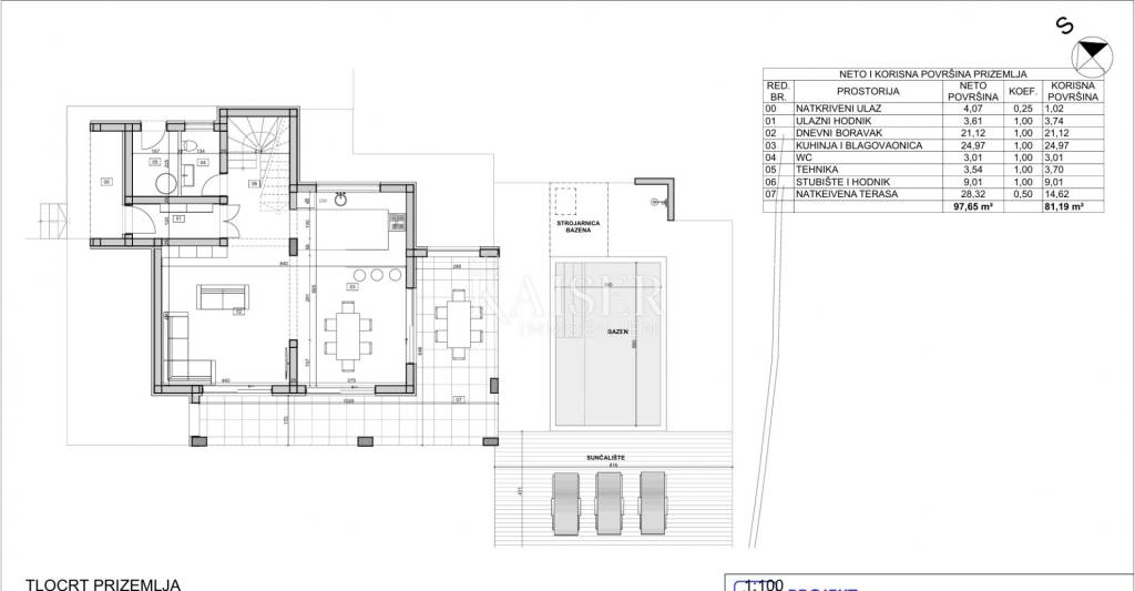
Wir präsentieren Ihnen eine außergewöhnliche Gelegenheit, eine moderne Villa in der idyllischen Umgebung von Vodice zu erwerben. Dieses luxuriös gestaltete Anwesen bietet die perfekte Mischung aus mediterranem Charme, zeitgenössischer Architektur und höchstem Komfort, ideal für das Familienleben, den Urlaub oder als Investition zur touristischen Vermietung. Geräumiges Erdgeschoss – Das Herz des Hauses (Nettofläche: 97,65 m²) Das Erdgeschoss der Villa ist als offener, heller Raum konzipiert, der zum geselligen Beisammensein und Entspannen gedacht ist. Es wird von einem geräumigen Wohnzimmer (21,12 m²) dominiert, das nahtlos in die elegante Küche und das Esszimmer (24,97 m²) übergeht und so das perfekte Ambiente für Familientreffen und Unterhaltung schafft. Von diesen Räumen gibt es einen direkten Zugang zu einer großen überdachten Terrasse (28,32 m² / 14,62 m² Nutzfläche), die Schatten spendet und ein idealer Ort für Mahlzeiten im Freien ist. Weitere Merkmale des Erdgeschosses: Überdachter Eingang (4,07 m² / 1,02 m² Nutzfläche) – ein eleganter Empfang im Heim. Eingangshalle (3,61 m²) – funktional und geräumig. WC (3,01 m²) – praktisch gelegen für Gäste. Technikraum (3,54 m²) – diskret gelegen für Installationen. Treppe und Flur (9,01 m²) – führen in die obere Etage. Komfortable Etage – Oase der Ruhe und Privatsphäre (Nettofläche: 90,68 m²) Diese Etage der Villa ist für Entspannung und Privatsphäre vorgesehen und verfügt über drei geräumige Schlafzimmer und deren Badezimmer sowie zusätzliche Terrassen. Detaillierte Etagenaufteilung: FLUR (5,41 m²) – verbindet alle Räume auf der Etage. SCHLAFZIMMER 1 (11,00 m²) – geräumig und komfortabel. BADEZIMMER (3,64 m²) – elegant eingerichtet. SCHLAFZIMMER 2 (14,50 m²) – mit eigenem Badezimmer. BADEZIMMER (4,32 m²) – neben Schlafzimmer 2. SCHLAFZIMMER 3 (17,02 m²) – das größte Schlafzimmer für kompletten Komfort. BADEZIMMER (4,75 m²) – neben Schlafzimmer 3. WASCHKÜCHE (2,80 m²) – praktisch für den Alltag. ÜBERDACHTER TERRASSENTEIL (11,51 m² / 5,92 m² nutzbar) – ein idealer Ort für den Morgenkaffee. ÜBERDACHTER TERRASSENTEIL (8,26 m² / 4,36 m² nutzbar) – zusätzlicher Raum zum Entspannen. UNÜBERDACHTER TERRASSENTEIL (7,47 m² / 1,92 m² nutzbar) – zum Sonnenbaden und für den Panoramablick. Die gesamte Nettofläche des Hauses (Erdgeschoss + erster Stock) beträgt beeindruckende 188,33 m²! Großzügiges Grundstück für vollkommenen Genuss (619 m²) Der Außenbereich des Erdgeschosses ist mit einem schönen Swimmingpool (24 m²) mit einer geräumigen Liegewiese (97,41 m²) geschmückt, die wie geschaffen ist, um die Sommertage zu genießen und unter der Mittelmeersonne zu entspannen. Der Hof mit einer Gesamtfläche von 619 m² bietet außerdem 263,98 m² Grünfläche, die Privatsphäre und ein natürliches Ambiente gewährleisten. Die gepflasterte Einfahrt und der Parkplatz nehmen 98,55 m² ein und bieten ausreichend Platz für Fahrzeuge. Möglichkeit der persönlichen Note Diese Villa befindet sich derzeit in der letzten Bauphase, was den neuen Eigentümern eine einzigartige Gelegenheit gibt, an der Fertigstellung der Inneneinrichtung mitzuwirken. Wählen Sie Details wie Bodenbelag, Sanitärkeramik, Innenschreinereiarbeiten und andere Elemente, um ein Zuhause nach Ihren eigenen Maßen und in Ihrem Stil zu schaffen. Diese Villa ist das perfekte Zuhause für alle, die Qualität, Luxus und Ruhe suchen und gleichzeitig in der Nähe aller Annehmlichkeiten von Vodice sein möchten. Genießen Sie das moderne Design, die funktionale Raumaufteilung und den schönen Außenbereich mit Swimmingpool. Lassen Sie sich diese einmalige Gelegenheit nicht entgehen! Die Maklerprovision für den Käufer beträgt 3 % zzgl. MwSt. und wird beim Immobilienkauf bei Vertragsabschluss fällig. Besichtigungen der Immobilie sind nur nach vorheriger Unterzeichnung eines Vermittlungsvertrags möglich. Wenn Sie die Immobilie persönlich besichtigen möchten, wenden Sie sich bitte an: Joško Bašić E-Mail: josko@kaiser-immobilien.hr Tel.: +385-91-511-2993 http://kaiser-immobilien.hr/

ID CODE: 137-51

Joško Bašić
Agent posredovanja u prometu nekretnina
Mob: +385915112693, +385995677888
E-mail: josko@kaiser-immobilien.hr
www.kaiser-immobilien.hr
Wenn Sie mehr wissen möchten, können Sie mit Joško Bašić. sprechen
Merkmale
Art
Einfamilienhaus
Vertrag
Verkauf
Stockwerke im Gebäude
1
Aufzug
Nein
Fläche
157 m²
Zimmer
4
Schlafzimmer
3
Badezimmer
3
Balkon
Nein
Terrasse
Nein
Preisinformationen
Preis
€ 650.000
Preis pro m²
4.140 €/m²
Energieeffizienz

Energieverbrauch

A+

Grundriss
Entdecken Sie jeden Winkel des Anwesens
+14
Zusätzliche Optionen

Inserenten kontaktieren

Oder